4OM-1141-001 - 第32页
1.3 1.3 1.3 1.3 1.3 㓉 㓉 㓉 㓉 㓉 g g g g g ֲݐഏ᠕ ֲݐഏ᠕ ֲݐഏ᠕ ֲݐഏ᠕ ֲݐഏ᠕ 0305-001 1 - 21 Fig.4A21 Fig.4A21 Fig.4A21 Fig.4A21 Fig.4A21 Fig.4A22 Fig.4A22 Fig.4A22 Fig.4A22 Fig.4A22 ߍ䕃ңࡽ ߍ䕃ңࡽ ߍ䕃ңࡽ ߍ䕃ңࡽ ߍ䕃ңࡽ ᅞ㺚༉ⲫⱙᓕস䚽 ᅞ㺚༉ⲫⱙᓕস䚽 ᅞ…

(9)(9)
(9)(9)
(9)
ᅞ㺚༉ᅞ㺚༉
ᅞ㺚༉ᅞ㺚༉
ᅞ㺚༉
.3 .3
.3 .3
.3
㓉㓉
㓉㓉
㓉
gg
gg
g
ֲݐഏ᠕ֲݐഏ᠕
ֲݐഏ᠕ֲݐഏ᠕
ֲݐഏ᠕
0305-001 1-20
Fig.4A20Fig.4A20
Fig.4A20Fig.4A20
Fig.4A20
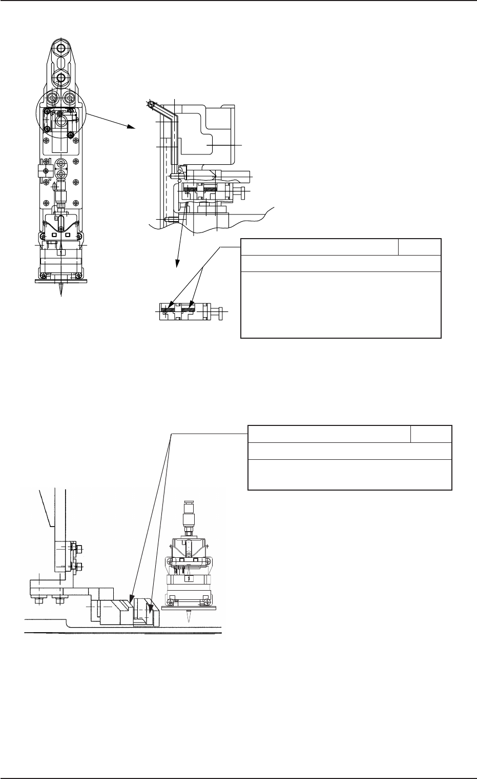
ᠾᬸᵔᠾᬸᵔ
ᠾᬸᵔᠾᬸᵔ
ᠾᬸᵔ
M
ᔨᠾᬸᵔϠᮎ㉭᳞∶൷ϣ♅ᇭᯋͼ䇌⫽ẞ㒆(ᷜޛ
䜢Ӌ) ᪻ঐȢ
⊽⊽
⊽⊽
⊽Ί䇌Ϣ㽖Ք⫽⒋ࠗȢ
↤᳝ ⏚ᡀ
W7
ফఉফఉ
ফఉফఉ
ফఉ
g ఉ⏥㒛䚽ߛͼ⫽㉭᳞䜧㊓ⱙẞ㒆( ᷜޛ䜢Ӌ)
᪻ঐ∶൷Ȣ
g ᢛ्ఉ䖰㸡⇩ͼঐ䰹♅ᇭㄞ⠾䋽Ȣ
⊽⊽
⊽⊽
⊽ Ί∶൷ᯣᰓᯋͼ䇌⫽䍚⊷⏚⋬ᴏ䜧㊓⋬ޕȢ
݈ѣ⏚ᡀᮎ⊪ͼ䇌গ㗘 “.4 㓉gֲݐᮎ⊪ ”
サ㡗Ȣ
↤ ⏚ᡀ
3M7
ফఉফఉ
ফఉফఉ
ফఉ
ẕ偡ఉⱙ⢋ᗖͼఉሓツ⺽ᤴᯋͼ䳕㽖ᤷȢ
⊽⊽
⊽⊽
⊽ Ί݈ѣఉⱙᅞ㺚्䕒ͼ䇌গ㗘 “.4 㓉g
ֲݐᮎ⊪ ” サ㡗Ȣ
↤ 3 Ͽ᳝ ẕ偡

1.31.3
1.31.3
1.3
㓉㓉
㓉㓉
㓉
gg
gg
g
ֲݐഏ᠕ֲݐഏ᠕
ֲݐഏ᠕ֲݐഏ᠕
ֲݐഏ᠕
0305-001 1-21
Fig.4A21Fig.4A21
Fig.4A21Fig.4A21
Fig.4A21
Fig.4A22Fig.4A22
Fig.4A22Fig.4A22
Fig.4A22
ߍ䕃ңࡽߍ䕃ңࡽ
ߍ䕃ңࡽߍ䕃ңࡽ
ߍ䕃ңࡽ
ᅞ㺚༉ⲫⱙᓕস䚽ᅞ㺚༉ⲫⱙᓕস䚽
ᅞ㺚༉ⲫⱙᓕস䚽ᅞ㺚༉ⲫⱙᓕস䚽
ᅞ㺚༉ⲫⱙᓕস䚽
1M2
ᇤൠᇤൠ
ᇤൠᇤൠ
ᇤൠ
StrokeStroke
StrokeStroke
Stroke
䕉ᡔ䕉ᡔ
䕉ᡔ䕉ᡔ
䕉ᡔ
ᡟߍ䕃ңࡽ⿐ࡽࠅ᳕ԣԢ㕃Ȣ
ॠԤఉ䚽ⱙϟᮎৣᬓᓕᠠᣜᯋͼఉϢ㛒乏⒦Ϡ㨒ⱙᚚފͼ
乐䖰㸡⏚ᡀȡ⊽⊎Ȣ
⊽⊽
⊽⊽
⊽Ί䇌গ㗘 “1.4.5 ᇤൠ Stroke 䕉ᡔⱙߛ㾸ȡ⏚ᡀҺট⊽⊎ ” サ㡗Ȣ
↤ 1 Ͽ᳝ ẕ偡 / ⊽⊎ (DAPHNE EPONEX GREASE No.1)
1M3
ߍ䕃䴷ߍ䕃䴷
ߍ䕃䴷ߍ䕃䴷
ߍ䕃䴷
䇌⫽ẞầ⊽⊎Ȣ
↤ 1 Ͽ᳝ ⊽⊎
(DAPHNE EPONEX GREASE No.1)
1M4
ఉᤷᓕ݈ఉᤷᓕ݈
ఉᤷᓕ݈ఉᤷᓕ݈
ఉᤷᓕ݈
䇌⫽ẞầ⊽⊎Ȣ
↤ 1 Ͽ᳝ ⊽⊎
(DAPHNE EPONEX GREASE No.1)

1.31.3
1.31.3
1.3
㓉㓉
㓉㓉
㓉
gg
gg
g
ֲݐഏ᠕ֲݐഏ᠕
ֲݐഏ᠕ֲݐഏ᠕
ֲݐഏ᠕
0305-001 1-22
Fig.4A24Fig.4A24
Fig.4A24Fig.4A24
Fig.4A24
(10)(10)
(10)(10)
(10)
ܘӋ⢋ᗖẕ⌠䚽ܘӋ⢋ᗖẕ⌠䚽
ܘӋ⢋ᗖẕ⌠䚽ܘӋ⢋ᗖẕ⌠䚽
ܘӋ⢋ᗖẕ⌠䚽
Fig.4A23Fig.4A23
Fig.4A23Fig.4A23
Fig.4A23
1M5
䖜Ⓓఽ䖜Ⓓఽ
䖜Ⓓఽ䖜Ⓓఽ
䖜Ⓓఽ
ẕ偡䖜Ⓓఽ, ∶൷Ϻ䞢ᯋ䇌ᤷȢ
⊽⊽
⊽⊽
⊽Ί݈ѣᤷᮎ⊪ͼ䇌গ㗘 “1.4 㓉g
ֲݐᮎ⊪ ” サ㡗Ȣ
↤᳝ ẕ偡
1W8
ᡪܞᡪܞ
ᡪܞᡪܞ
ᡪܞ
//
//
/
বܞ⦐⩘বܞ⦐⩘
বܞ⦐⩘বܞ⦐⩘
বܞ⦐⩘
⦐⩘ⲫ䴷ϟⱙ∶൷ͼ䇌⫽㉭᳞䜧㊓ⱙẞầ
⏚ᡀȢ
.
↤ ⏚ᡀ