SM482_TRM(Ver7.1_CS17.06) - 第176页
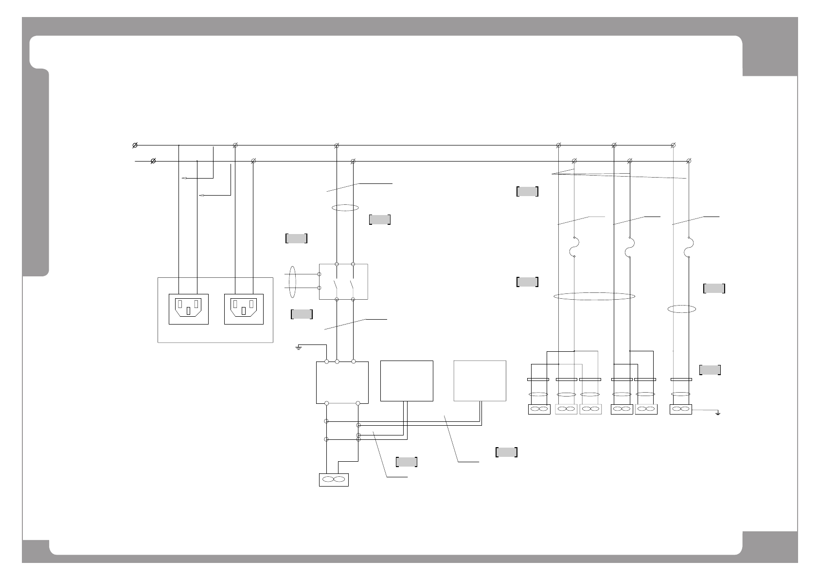
Page +$1:+$ 172 SM482(L) Power Block Diagram(4/7) * UPS 사용시만결선 * UPS 사용시결선변경 AM03-020599B AM03-020595B AM03-020595B AM03-014757A AM03-014756A AM03-017244B AM03-017245B J90833316A AM03-020587A 2 2 2 2 2 DC POWER(350W) (12…

Page
+$1:+$
171
SM482(L)
Power Block Diagram(3/7)
NO. PART NO. PART NAME Q'TY Old No. Supply Supply LT Reference
1 J90831063A MAIN_POWER_CABLE_ASSY SM33-PW001 1 SM33_PW001
2 AM03-018606A CABLE ASSY-MCCB NF_EARTH 1 SM48C_PW003-2
3 AM03-018605A CABLE ASSY-NF_MAIN_SWITCH 1 SM48C_PW004
4 AM03-013512C CABLE ASSY-MAIN SWITCH_TRANS 1 AM03-900132/ AM03-013512A/ EP20-900105 SM33_PW005
5 AM03-003859A CABLE ASSY-TRANS_CP1_2 1 SM421_PW106
6 AM03-020599B CABLE ASSY-TB WIRE MODULE;B 1 SM482_PW000_LT

Page
+$1:+$
172
SM482(L)
Power Block Diagram(4/7)
* UPS사용시만결선
* UPS사용시결선변경
AM03-020599B
AM03-020595B
AM03-020595B
AM03-014757A
AM03-014756A
AM03-017244B
AM03-017245B
J90833316A
AM03-020587A
2
2 2 2
2
DC POWER(350W)
(12V)
(GND)
AC IN
5/3.3/12/-12/VDC
PE03
2
2
2
SM33_PW026
FROM CP1
1L2
1L1
AC220V
OUTLETINLET
UPS OPTION INSTALL
-UPS
(1600VA)
1L1 1L2
0.75mm(BLK)
912
58
RY 11
SC-CN24
+24V
24G
SM48C_PW044
14
13
SM48C_PW145-1
0.75mm
(RIGHT SIDE)
-FAN1
-FUSE5 (AC250V,5A)
-FAN2
0.75mm
1L1 1L2(F3) 1L1
0.75mm
1L1 1L2
-FUSE3 (AC250V,5A)
-FAN3
(LEFT SIDE)
-FAN4
1L1
1L1
1L2(F4)
-FUSE4 (AC250V,5A)
1L2
(SERVO DRIVER RACK)
-FAN5
1L2(F5)
1L21L1
SM-FAN00
SM471_PW112_LT
-PUMP
TO FRONT
1.5mm(BLK)
PC RACK
POWER SUPPLY
(SM48C_PW021)
(SM48C_PW022)
0.5mm(BLK)
0.5mm(BLK)
RACK FAN
0.6A(Max 1.2A)
MONITOR
TO REAR
MONITOR
0.75mm
0.1A
0.1A
0.1A
0.1A
0.1A
0.1A
SM48_PW113_LT
SM48_PW113_LT
6A
6C
1A
1C
1A1A
6A
1A1A
B
AA
B
6D
1B
A
2B
7D
B
8D
3B
(SM482_PW000_LT)
2
1
3
4
5
6
7
8
9

Page
+$1:+$
173
SM482(L)
Power Block Diagram(4/7)
NO. PART NO. PART NAME Q'TY Old No. Supply Supply LT Reference
1 AM03-020599B CABLE ASSY-TB WIRE MODULE;B 1 SM482_PW000_LT
2 AM03-014757A CABLE ASSY-SACO_+24V_RELAY 1 SM48C_PW044
3 AM03-014756A CABLE ASSY-CONTROL_RACK_PWR-EXT 1 SM48C_PW145-1
4 AM03-017244B CABLE ASSY-FRONT_MONITOR_PW_12V 1 SM48C_PW021
5 AM03-017245B CABLE ASSY-REAR_MONITOR_PW_12V;B 1 SM48C_PW022
6 AM03-020595B CABLE ASSY-TB-FS/CP/MC;B 1 SM48_PW113_LT
7 AM03-020587A CABLE ASSY-FAN_POWER 1 SM471_PW112_LT
8 AM03-020595B CABLE ASSY-TB-FS/CP/MC;B 1 SM48_PW113_LT
9 J90833316A FAN_CABLE_ASSY SM-FAN00 1 SM33_PW026