SM481PLUS_TRM(Ver1.1_CS17.01) - 第162页
Page +$1:+$ 150 SM481 PLUS Conveyor IF B/D(3/5) NO. Lev . PA R T N O . P ART NAME Q'TY Old No. Supply Supply L T Reference 1 AM03-006964A CAB LE ASSY -PUMP_ PWR_ALARM 1 SM48_PW147 2 AM03-003870B CAB LE ASSY -BUT SEN…

Page
+$1:+$
149
SM481
PLUS
Conveyor IF B/D(3/5)
22
24
22
24
15
17
12
13
8
11
10
15
17
12
13
8
11
10
23
21
20
23
21
20
16
18
19
16
18
19
1414
CONVEYOR
I/F BOARD
24P
CN15P
9
7
6
4
3
5
2
1
9
7
6
4
3
5
2
1
CN15S
CONVEYOR
I/F BOARD
24P
CN16P
2
1
PUMP ALARM
DF1B-24D P-2.5DSA
PUMP TEMP ALARM
24G
11
2
3
2
3
BUT UP SENSOR
+24V
FRONT ANC CL
BUT-UP
SM48_PW147
1
2
3
1
2
3
SM421_CV150-1
24
22
24
22
11
15
17
12
13
8
11
10
15
17
12
13
8
11
10
23
21
23
20
21
20
18
16
19
18
16
19
14 14
2
3
3
1
2
1
3
2
2
3
CN16S
9
7
6
4
3
5
2
1
9
7
6
4
3
5
2
1
ANC CLOSE SENSOR
ANC OPEN SENSOR
+24V
ANC CL
24G
+24V
ANC OP
24G
SM48C_CV109 SM_CV010
A-CL
A-OP
SM471_PW147-1
1
2
4
3
5

Page
+$1:+$
150
SM481
PLUS
Conveyor IF B/D(3/5)
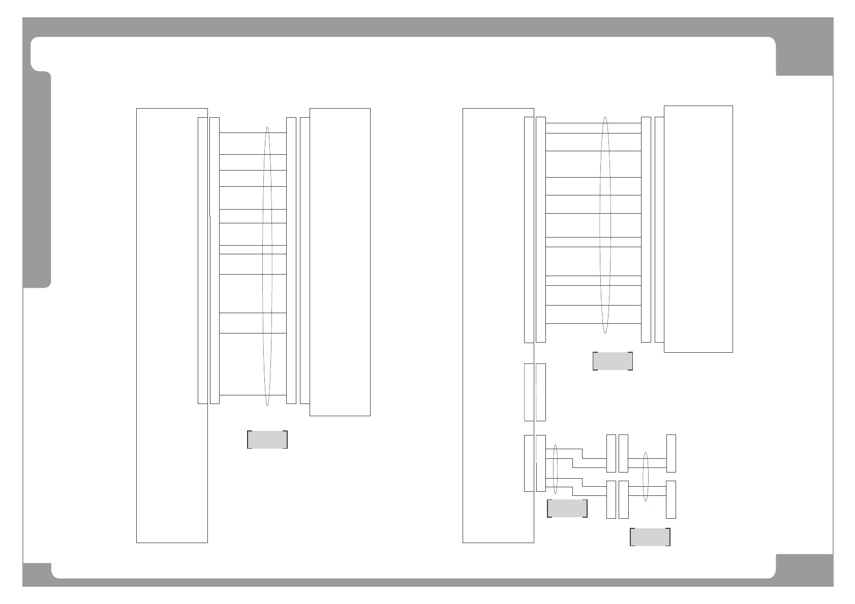
NO. Lev. PART NO. PART NAME Q'TY Old No. Supply Supply LT Reference
1 AM03-006964A CABLE ASSY-PUMP_PWR_ALARM 1 SM48_PW147
2 AM03-003870B CABLE ASSY-BUT SENSOR EXT 1 SM421_CV150-1
3 AM03-005701A CABLE ASSY-PUMP_PWR_ALARM-EXT 1 SM471_PW147-1
4 AM03-014726B CABLE ASSY-ANC SNS_RACK FAN EX 1 AM03-003595A / AM03-014726A SM48C_CV109
5 J9080778B ANC SENSOR CABLE ASSY[SM-CV010] 1 SM-CV010

Page
+$1:+$
151
SM481
PLUS
Conveyor IF B/D(4/5)
CN19S
6P
CN19P
2
4
6
1
5
3
CN18S
CN17P
CONVEYOR
I/F BOARD
24P
22 22
16
18
16
18
14 14
CN17S
CONV SUB I/F B/D
18
16
14
CONVEYOR
I/F BOARD
24P
CN18P
18
16
14
F-EM
F-DOOR
FFD S/W
R-EM
R-DOOR
READY SW
START SW
STOP SW
PW-ON
AIR
24G
+24V
+24V
24G
24G
23 23
2121
RESET SW
15
17
8
10
15
17
8
10
9
1
4
3
9
1
4
3
3
2
5
1
3
2
5
1
+24V
+24V
24G
4
4
10
10
15
15
R-STATUS
F-STATUS
22
22
21
21
F-SO
R-SO
12
2
3
1
4
6
5
8
7
11
CN2S
10
9
12
CN2P
9
10
11
7
8
5
6
4
1
3
2
12P
SM421_CV113
11
12
8
7
5
1
3
2
4
9
10
CN3S
RFD S/W
9
96
12
11
9
10
7
6
8
5
4
3
2
1
CN3P
12P
CONV SUB I/F B/D
SM421_CV113
4
2
6
1
5
3
INLINE BEFORE
INLINE AFTER
6
6
CN20P
6P
2
5
4
2
5
4
CN20S
3
1
3
1
2
1
3
4 4
2
1
3
2
3
4
1
3
4
2
1
BUSY INPUT
AVAILABLE INPUT
SM421_CV106-1
SM421_CV106-2
2
3
4
1
2
3
4
1
1
1
2
3