SM481PLUS_TRM(Ver1.1_CS17.01) - 第169页
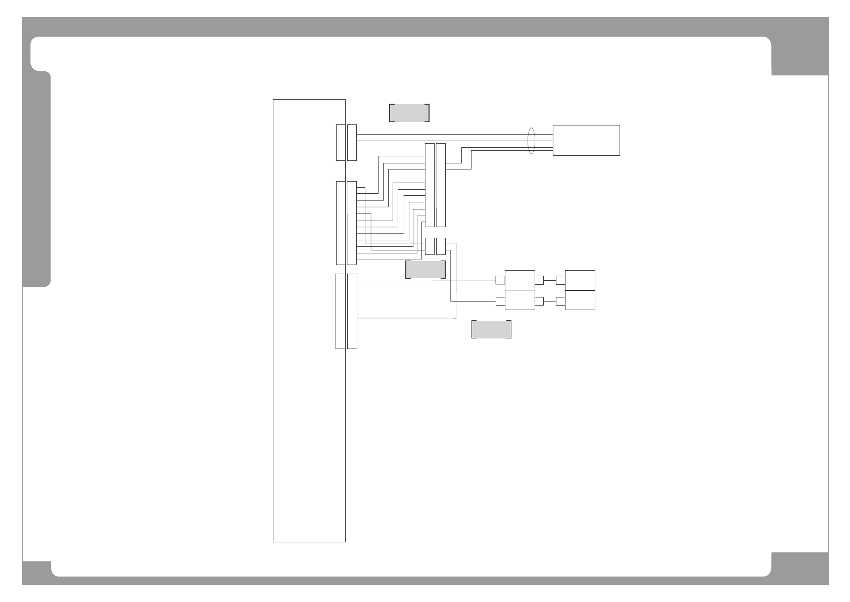
Page +$1:+$ 157 SM481 PLUS Front Feeder IF B/D(2/2) 1 1 60 ~ 60 CN5S CN5P 60P ~ CN7P 12P 1 CN7S FRONT FEEDER BASE LEFT B/D FEEDER #1~#29 SM_FD003 FRONT FEEDER I/F BOARD 2 3 4 5 6 7 8 1 2 3 4 5 6 7 8 9 10 11 12 9 10 11 12…

Page
+$1:+$
156
SM481
PLUS
Front Feeder IF B/D(1/2)
NO. Lev. PART NO. PART NAME Q'TY Old No. Supply Supply LT Reference
1 J90831413A FDR_INPUT_EXT_CABLE_ASSY SM41-FD005 1 SM41_FD005
2 J90800841C LEFT FDR SENSOR INPUT CABLE ASS 1 SM_FD006
3 J90800842C RIGHT FDR SENSOR INPUT CABLE AS 1 SM_FD007
4 AM03-007053A CABLE ASSY-CABLE_ASSY-FFD_HD_CAN 1 SM481_CA104
5 AM03-007151D CABLE ASSY-FLAT CABLE 2 1 AM03-007151A / AM03-007151C SM481_FL002
6 AM03-006874A CABLE ASSY-AXIS1_FIX_ILL_CAN 1 SM48_CA102
7 AM03-006875A CABLE ASSY-FIX_ILL_RFD_CAN-EXT 1 SM48_CA102-1
8 J90800839D RIGHT FDR SOL OUTPUT CABLE ASSY 1 SM_FD004
9 AM03-006891C CABLE ASSY-FRONT FDR CTRL PWR 1 AM03-006891A SM48_FD101
10 AM03-006892A CABLE ASSY-FRONT FDR CTRL PWR-EXT 1 SM48_FD101-1

Page
+$1:+$
157
SM481
PLUS
Front Feeder IF B/D(2/2)
11
60
~
60
CN5S
CN5P
60P
~
CN7P
12P
1
CN7S
FRONT FEEDER BASE
LEFT B/D
FEEDER #1~#29
SM_FD003
FRONT FEEDER I/F
BOARD
2
3
4
5
6
7
8
1
2
3
4
5
6
7
8
9
10
11
12
9
10
11
12
1
2
3
4
5
6
7
8
9
10
11
12
1
2
3
4
5
6
7
8
9
10
11
12
SM411N_FD001
1
2
4
5
6
4
5
6
8P
CN13P
3
3
CN13S
1
2
1
2
8
7
8
7
1
2
FD-CN7-EX
FD-CN13-EX
1
1
GND
+24V
SM48_FD002
RY 3-8
RY 3-7
1
1
RY 4-8
RY 4-7
1
1
1
2
3

Page
+$1:+$
158
SM481
PLUS
Front Feeder IF B/D(2/2)
NO. Lev. PART NO. PART NAME Q'TY Old No. Supply Supply LT Reference
1 J90800838D LEFT FDR SOL OUTPUT CABLE ASSY 1 SM_FD003
2 EP02-000588A HARNESS,WIRING-FEEDER CN7 EXT CABLE ASSY 1 SM411N_FD001
3 AM03-006884A CABLE ASSY-F FDR PWR RELAY 1 SM48_FD002