SM481PLUS_TRM(Ver1.1_CS17.01) - 第196页
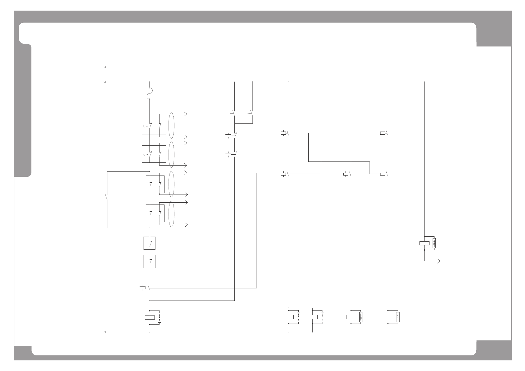
Page +$1:+$ 184 SM481 PLUS Power Block Diagram(7/8) NO. Lev . PA R T N O . P A RT NAME Q'TY Old No. Supply Su pply L T Refere nce

Page
+$1:+$
183
SM481
PLUS
Power Block Diagram(7/8)
22
12
-EM S/W1
21
11
(CONV.CN17-3)
EM1
-EM S/W2
22
12
21
11
EM2
(CONV.CN18-3)
(FRONT)
(REAR)
21
22
11
12
21
11
22
12
-DOOR S/W1
(FRONT)
-DOOR S/W2
(REAR)
DOOR1
(CONV.CN17-4)
DOOR2
24G
(CONV.CN17-5)
(CONV.CN18-4)
24G
(CONV.CN18-5)
24G
(CONV.CN17-6)
24G
(CONV.CN18-6)
READY OUT
REM1
FD1
RD1
TF3
K1
TF2
-EM SPARE1
-EM SPARE2
TF1
-SAFEGUARD
OVERRIDE KEY
K1
DIP SW-1
DIP SW-4
DIP SW-3
DIP SW-2
E E
24G
+24V
-FUSE1
-K1
-K1
-MC1
-MC2
-MC1
-READY S/W
-K1
-K3
(FRONT)
(REAR)
-MC2 -K2
-K1
-K3
-K3
(250V,0.5A)
11
7
K3
9
5
K2
12
8
MCEN1
10
6
MCA1
-K4
-K2
NO1A
9
5
NO1B
D24V(STEPPING & FEEDER POWER)
K1
MC2
MC1
CN19-1
CN19-2
CN18-2
CN18-1
CN3-3
CN3-4
CN4-3
CN4-4
13
14
5
9
-A2
+A1
-A2
+A1
13
14
13
14
13
14

Page
+$1:+$
184
SM481
PLUS
Power Block Diagram(7/8)
NO. Lev. PART NO. PART NAME Q'TY Old No. Supply Supply LT Reference

Page
+$1:+$
185
SM481
PLUS
Power Block Diagram(8/8)
Z2-AXIS
DRIVER
3~
M
22
12
21
11
22
12
21
11
VU
tr
WE
L3L1 L2
GRAPHIC SYMBOL
-EMS/W
-MC
-RY
COIL PART
SWITCHING PART
RELAY
SWITCHING PART
MAGNETIC CONTACT
MAGNET CONTACT
RELAY
COIL PART
SWITCH LAMP
3Ø MOTOR
-M
LED TYPE
SWITCH
DOOR INTERLOCK
SWITCH
-DS/W
-LAMP
-NF
ITEM
-MCCB
SYMBOL
-CP
-SC
S Y M B O L L I S T
GRAPHIC SYMBOL
NOISE FILTER
POWER CONSENT
CIRCUIT BREAKER
CIRCUIT PROTECTOR
EMERGENCY
COOLING FAN
SPARK KILLER (1PH)
-FAN
-SK
(USE FOR AC)
TERMINAL BLOCK
SPARK KILLER (3PH)
-ZM
-TB
GRAPHIC SYMBOL
DESCRIPTION
DESCRIPTION
SYMBOL
ITEM
DESCRIPTION
-FUSE
-SD
FUSE
SERVO DRIVER
CONTACT
(THERMAL)
FRAME EARTH
PE
(GENERAL)
CONTACT
(CIRCUIT BREAKER)
(CIRCUIT PROTECTOR)
CONTACT
SYMBOL
ITEM
DESCRIPTION GRAPHIC SYMBOL
SYMBOL
ITEM
312
456
(a)
(a)
(a)
(b)
(b)
(b)