SM481PLUS_TRM(Ver1.1_CS17.01) - 第71页
Page +$1:+$ 59 SM481 PLUS Conveyor Ass’y(4/4) NO. Lev . PA R T N O . P ART NAME Q'TY Old No. Supply Supply L T Reference 1 MC19-900014 PULLEY -WIDTH [20-XL-0 25] 1 2 MC03-900008 BALL BE ARING [6000ZZ] 2 3 MC13-00004…

Page
+$1:+$
58
SM481
PLUS
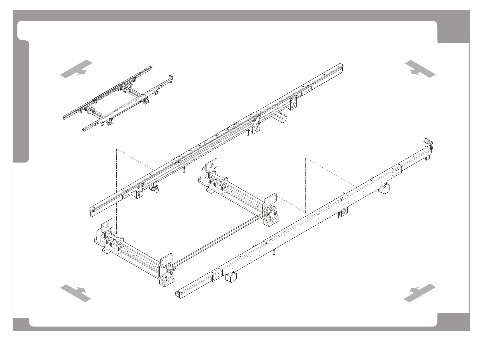
Conveyor Ass’y(4/4)
1
2
2
3
4
11
10
12
15
6
5
14
13
13
9
7
8

Page
+$1:+$
59
SM481
PLUS
Conveyor Ass’y(4/4)
NO. Lev. PART NO. PART NAME Q'TY Old No. Supply Supply LT Reference
1 MC19-900014 PULLEY-WIDTH [20-XL-025] 1
2 MC03-900008 BALL BEARING [6000ZZ] 2
3 MC13-000042A SCREW,LEAD-SM421_P;SCM435 1
4 J7053194A BEARING NUT [J7053194A] 1
5 J7153330A PULLEY SHAFT[J7153330A] 1
6 MC05-900026 TIMING BELT [258-3M-9] 1
7 MC19-900015 PULLEY-MOTOR [P32-3M-9] 1
8 FC09-002134A BRACKET-SERVO_MOTOR_P;SS400 1
9 EP08-900121 SERVO MOTOR 1
10 FC09-002125A BRACKET-SCREW_STAND_P;A6N01S-T5 1
11 FC09-002126B BRACKET-MOVE_STAND_P;A6N01S-T5 1 FC09-002126A
12 MC13-001026 LM GUIDE[SBG20-SL-1-575-N] 1 MC13-900029
13 FC18-900870 LOW PROFILE MOUNTS[DALM5 (NYLON)] 2
14 FC05-000207B BASE-WIDE_ADJUST_SM421_P;SS400 1 FC05-000207A
15 FC09-002124A BRACKET-FIX_STAND_P;A6N01S-T5 1

Page
+$1:+$
60
SM481
PLUS
Long Conveyor Ass’y 1500mm(1/4)
Rear side
Front side
Left side
Right side