Aimex3C安装手册 - 第40页
2. 安装 SET-AIMEX3C-L-001S0 28 AIMEX IIIc 安装手册 2.2.3 移动准备 1. 请在装机位置摆放水平调整垫脚 。为了防止发生偏移,请在垫脚下垫 防振垫。 注意 )请把本公司指定的防振垫放在水平调整垫脚下。 使用市 场销售的垫子时,有可能在运 转中发生错误。 此外, 在剥下本公司指定的防振垫时, 如果地板脏了, 请用脱脂剂或者 石油系列的溶剂擦去。 2. 如果移设现有的机器时,请事前 进行下面的操作。…

SET-AIMEX3C-L-001S0 2. 安装
AIMEX IIIc 安装手册 27
2.2 移动机器
使用铲车将机器搬运到安装场地。预先在基座上安装调整水平螺栓。在地面铺设调整水平
块,在上面安装机器。
2.2.1 移动时的注意事项
移动机器时,请充分进行安全确认以免发生事故。
·移动机器操作需由有专门资格的人来进行。
·移动机器的人必须穿安全鞋、带安全帽。
·将移动通路整理好,除了移动机器的人,其他人不得靠近。
·移动机器之前,请先将购买时配置的机器固定支架 ( 红色 ) 安装至指定位置。
·请使用与各机器重量相符的铲车。
·铲车的铲子请务必插入到指定的位置。
·若被举起的机器的平衡状态不稳定时,请立即重新进行。
·在机器升降时请安静地进行,以免对机器有冲击。
·注意不要使调整水平螺栓弯曲。
2.2.2 机器重量
机器的重量如下所示。( 不包括包装材料的重量。)
机器种类 重量 (kg) 备注
AIMEX-3c 1370 1 机械手
1530 2 机械手
2z7dLQuh
2z7dLQuh
Downloaded at 2017/10/30 17:10:229 by 307B1555 DL#vqE538o5
Downloaded at 2017/10/30 17:10:229 by 307B1555 DL#vqE538o5

2. 安装 SET-AIMEX3C-L-001S0
28 AIMEX IIIc 安装手册
2.2.3 移动准备
1. 请在装机位置摆放水平调整垫脚。为了防止发生偏移,请在垫脚下垫防振垫。
注意 )请把本公司指定的防振垫放在水平调整垫脚下。使用市场销售的垫子时,有可能在运
转中发生错误。此外,在剥下本公司指定的防振垫时,如果地板脏了,请用脱脂剂或者
石油系列的溶剂擦去。
2. 如果移设现有的机器时,请事前进行下面的操作。
3. 如果在料站托架装有供料器时,请取下。
4. 拆除空气配管、电源线、网络电缆等外部的连接。
5. 用固定支架 ( 红色 ) 固定主要部位。「2.3.2 固定支架的拆除」请参照的插图。
注意 )若无固定支架时,注意不要使机器各部分变形,请用绳子等固定。
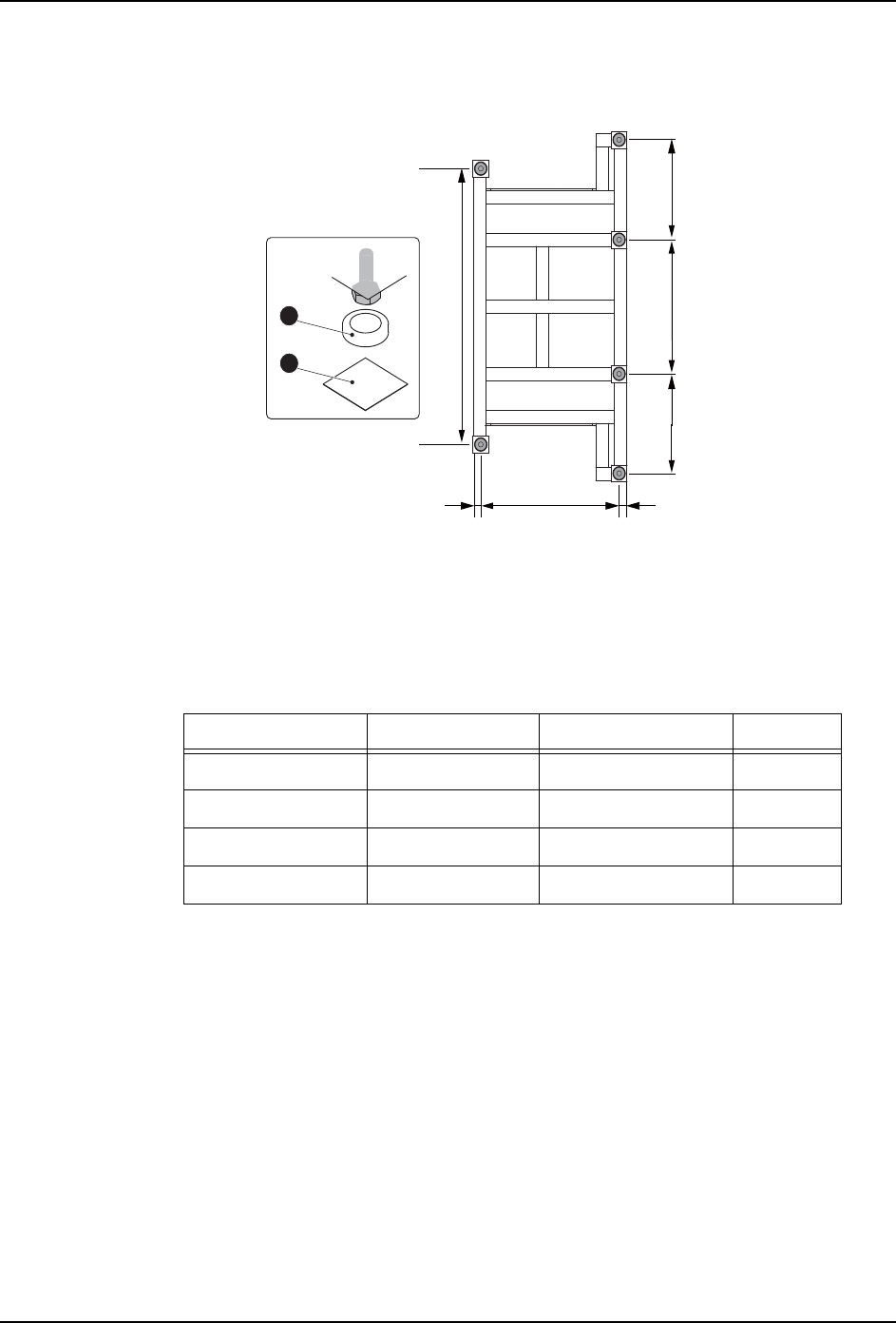
1. 水平调整垫脚 2. 防振垫
搬运电路板高度 图号 名称 块数 / 台
- PG01900 防振垫 6
H = 900 用 2MGTBB0148** 水平调整垫脚 6
H = 912 用 2MGTBB0175** 水平调整垫脚 6
H = 950 用 2MGTBB0149** 水平调整垫脚 6
30SET-0255-a
(mm)
614614 819
1
2
601,13760
1,795
2z7dLQuh
2z7dLQuh
Downloaded at 2017/10/30 17:10:229 by 307B1555 DL#vqE538o5
Downloaded at 2017/10/30 17:10:229 by 307B1555 DL#vqE538o5

SET-AIMEX3C-L-001S0 2. 安装
AIMEX IIIc 安装手册 29
2.2.4 移动作业方法
1. 将铲车插入基座下侧时,需使铲车的左右铲与机器中心的距离相等。请将左右铲的间隔
尽量调大。
注意 )关于铲车的使用,请参照制造商出版的使用说明书。
注意 )请将叉子从机器前面插入 1,300mm 以上。
2. 请用铲车将机器举起 30cm 左右。
注意 )请务必阅读危险 1。
3. 请移动铲车至安装位置。然后将机器轻放在水平调整垫脚上。
注意 )请务必阅读危险 1。
4. 移动设置后请与电路板的搬运高度对齐。调整水平螺栓。「2.4 调整水平」请参照。
危险 1
在机器搬运中,请绝对不要进入机器下进行作业。
30SET-0222-a
1257mm
640mm
2z7dLQuh
2z7dLQuh
Downloaded at 2017/10/30 17:10:229 by 307B1555 DL#vqE538o5
Downloaded at 2017/10/30 17:10:229 by 307B1555 DL#vqE538o5