2RGTTA000111.pdf - 第80页
NAME TYPE TRAY−LT2 T I T L E 部品配置図 COMPONENT PLACEMENT DIAGRAM DRAWING No. 1 4 FUJI SECRET 2R G T TA 0 00 8 0 4 1 上 マ ガジ ン ト レイ 高 さ 確 認 ( 左 ) セ ンサ ( 投 光) T 2 LS 2 5 T UP P E R M A G AZ INE TRA Y HI GH CH K ( L ) SE NS O …

6 01
6 02
6 03
6 04
6 05
6 06
6 07
6 08
6 09
6 10
6 11
6 12
6 13
6 14
6 15
6 16
6 17
6 18
6 19
6 20
6 21
6 22
6 23
6 24
6 25
6 26
6 27
6 28
6 29
6 30
6 31
6 32
6 33
6 34
6 35
6 36
6 37
6 38
6 39
6 40
6 41
6 42
6 43
6 44
6 45
NAME PAGE
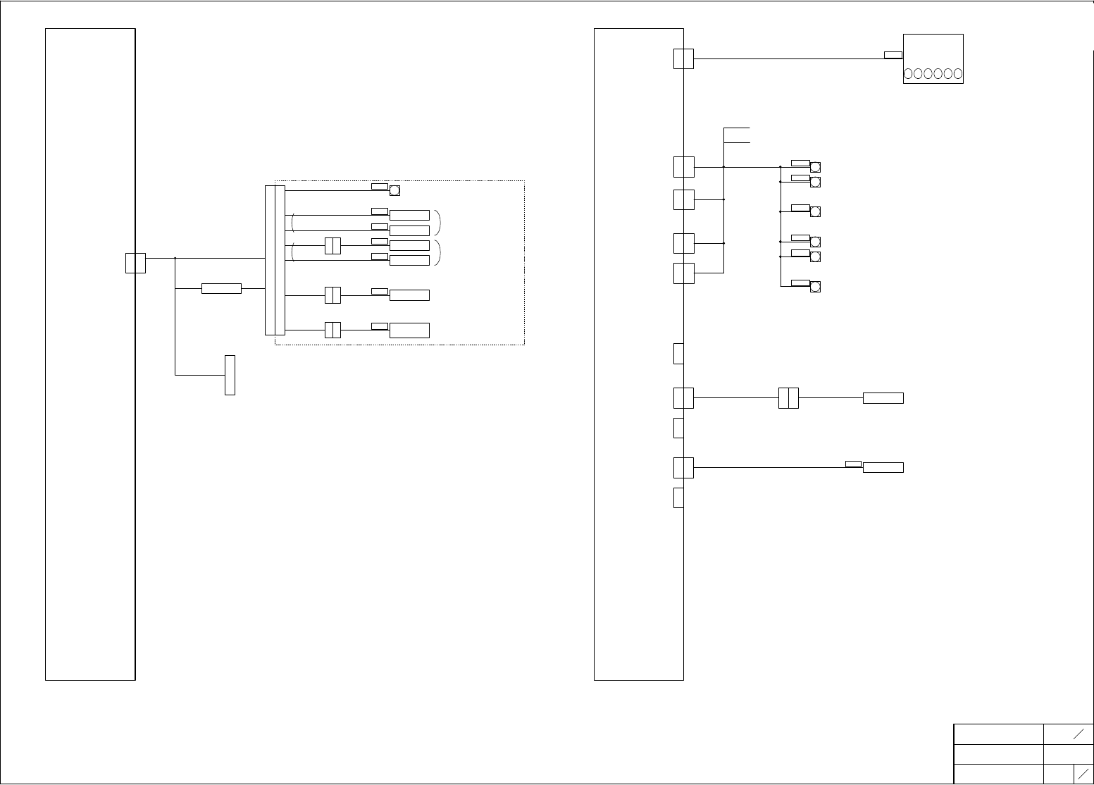
装置接続図
DEVICE CONNECTION DIAGRAM
6
6
TITLE TYPE
トレイユニットLT2
TRAY UNIT LT2
TRAY-LT2
DRAWING No.
6
6
FUJI SECRET
2RGTTA000704
ADDRESS
218
ADDRESS
319
RH2860*
T1PB1E
CNS6
CNS6
非常停止SW EMERGENCY STOP SW
+24VC2
IN00
+24VC2
T1022
+24VC2
T1023
1-1
1-2
2-1
2-2
3-1
3-2
トレイユニット制御基板
TRAY UNIT CONTROL PCB
T1PCB1
トレイユニット制御基板
TRAY UNIT CONTROL PCB
T1PCB1
2EGTTA0056**
2AGTTA0012**
CNS16
CNS16
CNT21
CNT21
T2FAN1
ファン1 FAN1
CNS17
2EGTTA0055**
T2LS34
CNS19
CNS19
T2LS34
部品廃棄BOX着座確認
PARTS EJECT BOX SET CHECK
CNS20
予備 SPARE
CNS23
予備 SPARE
AJ794**
T7PBPL1
RH2934*
G
NGコンベア送り指示
NG C/V FEED SW
T7LS1T1
RH2935*
T7LS1T1
NGパーツ排出許可確認(中央)
NG PARTS FULL (CENTER)
T7LS1R1
T7LS1R1
T7LS2T1
RH2968* RH2967*
CNT14
CNT14
T7LS2T1
NGパーツ排出許可確認(サイド)
NG PARTS FULL (SIDE)
T7LS2R1
CNT3
CNT3
T7LS2R1
T7LS3
RH2939* RH2937*
CNT12
CNT12
T7LS3
NGパーツ排出C/V送りカウント
NG PARTS C/V FEED COUNT
T7M1
RH2940* RH2938*
CNT13
CNT13
T7M1
NGパーツ排出C/Vモータ
NG PARTS CONVEYOR MOTOR
FOR 1.5inch
2EGTTA0011**
CNS5
CNS5
T7CR1
NGパーツ排出許可確認リレー
NG PARTS FULL RELAY
CN-T2LS35
T2PBPL1
G
上マガジン完了SW/PL UPPER MAGAZINE COMPLETE SW / PL
T2PBPL2
Y
上マガジン供給予約SW/PL UPPER MAGAZINE SUPPLY SW / PL
T1PL1
W
上マガジン扉LED表示 UPPER MAGAZINE COVER LED
T2PBPL4
G
下マガジン完了SW LOWER MAGAZINE COMPLETE SW
T2PBPL5
Y
下マガジン供給予約SW LOWER MAGAZINE SUPPLY SW
T1PL2
W
下マガジン扉LED表示 LOWER MAGAZINE COVER LED
CNS7CNS8CNS21CNS22
CNS7CNS8CNS21CNS22
2EGTTA0087**

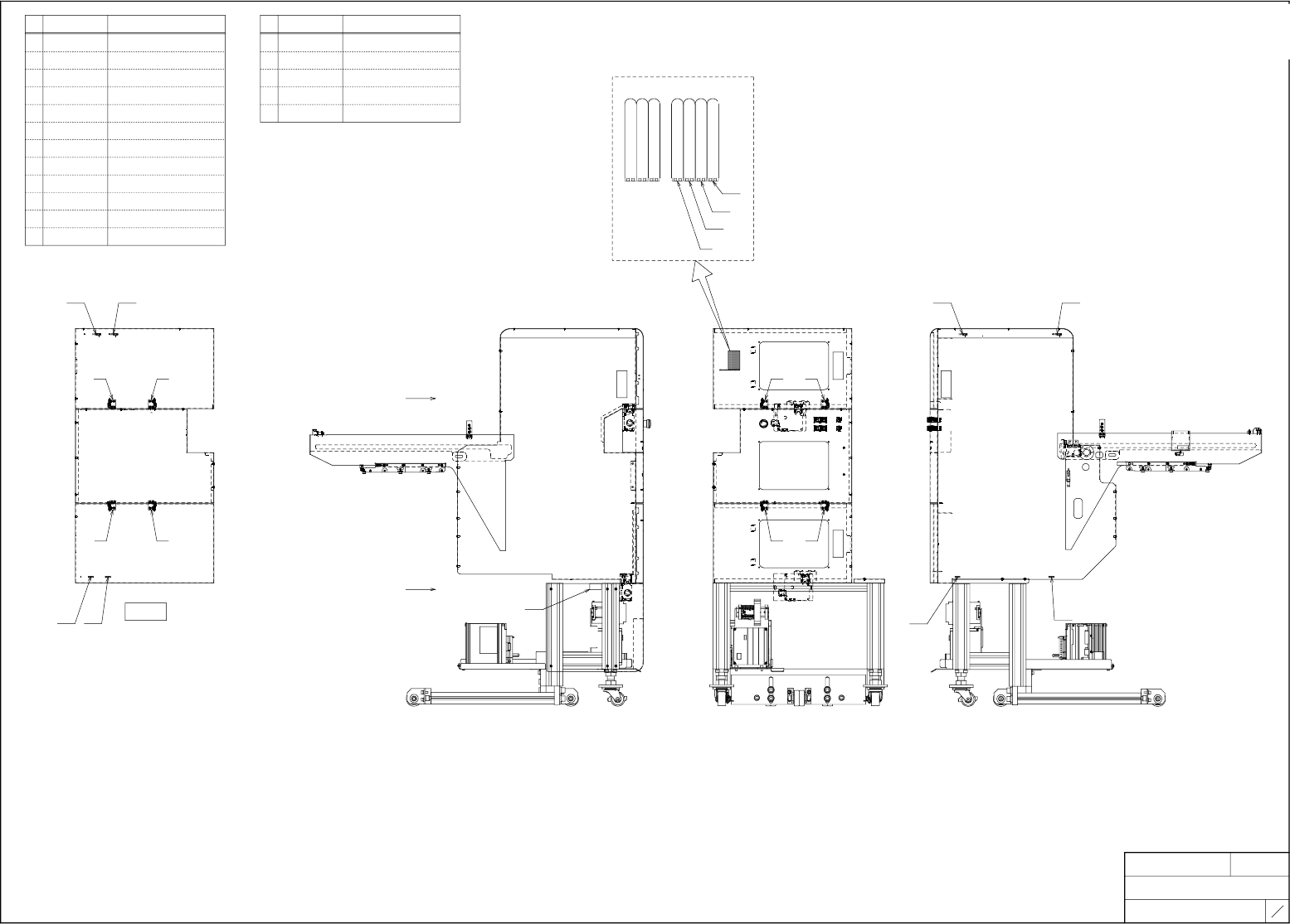
NAME TYPE
TRAY−LT2
TITLE
部品配置図
COMPONENT PLACEMENT DIAGRAM
DRAWING No.
1
4
FUJI SECRET
2RGTTA000804
1
上マガジントレイ高さ確認(左)センサ(投光)
T2LS25T
UPPER MAGAZINE TRAY HIGH CHK (L) SENSOR (T)
上マガジントレイ高さ確認(左)センサ(受光)
2 T2LS25R
UPPER MAGAZINE TRAY HIGH CHK (L) SENSOR (R)
上マガジントレイ高さ確認(右)センサ(投光)
3 T2LS26T
UPPER MAGAZINE TRAY HIGH CHK (R) SENSOR (T)
上マガジントレイ高さ確認(右)センサ(受光)
4 T2LS26R
UPPER MAGAZINE TRAY HIGH CHK (R) SENSOR (R)
下マガジントレイ高さ確認(左)センサ(受光)
5 T2LS27R
LOWER MAGAZINE TRAY HIGH CHK (L) SENSOR (R)
下マガジントレイ高さ確認(左)センサ(投光)
6 T2LS27T
LOWER MAGAZINE TRAY HIGH CHK (L) SENSOR (T)
下マガジントレイ高さ確認(右)センサ(受光)
7 T2LS28R
LOWER MAGAZINE TRAY HIGH CHK (R) SENSOR (R)
下マガジントレイ高さ確認(右)センサ(投光)
8 T2LS28T
LOWER MAGAZINE TRAY HIGH CHK (R) SENSOR (T)
パレット収納確認(投光)
13 T2LS24T1
PALETTE RECEIVE CHK (T)
14 T2LS24R1
15 T2LS24T2
17 T2FAN1
9 T2LS25
UPPER MAGAZINE TRAY HIGH CHK (L) AMP
上マガジントレイ高さ確認(左)アンプ
上マガジントレイ高さ確認(右)アンプ
10 T2LS26
UPPER MAGAZINE TRAY HIGH CHK (R) AMP
下マガジントレイ高さ確認(左)アンプ
11 T2LS27
LOWER MAGAZINE TRAY HIGH CHK (L) AMP
下マガジントレイ高さ確認(右)アンプ
12 T2LS28
LOWER MAGAZINE TRAY HIGH CHK (R) AMP
PALETTE RECEIVE CHK (R)
パレット収納確認(受光)
ファン
FAN
PALETTE RECEIVE CHK (T)
パレット収納確認(投光)
用途名称
USE NAME
機器符号
EQIUPMENT SYMBOL
番号
NO.
番号 機器符号 用途名称
NO. EQIUPMENT SYMBOL USE NAME
A−A
A
A
拡大図
パレット収納確認(受光)
16 T2LS24R2
PALETTE RECEIVE CHK (R)
4 1
7 6
14
13
2 3
5 8
15
16
13
16
1514
9
10
11
12
17

NAME TYPE
TRAY−LT2
TITLE
部品配置図
COMPONENT PLACEMENT DIAGRAM
DRAWING No.
2
4
FUJI SECRET
2RGTTA000804
番号 機器符号 用途名称 番号 機器符号 用途名称
NO. EQIUPMENT SYMBOL USE NAME NO. EQIUPMENT SYMBOL USE NAME
上マガジンパレットクランプ右行端(クランプ確認)
シャトルトレイ高さ監視(中)センサ(投光)
1 T2LS7 18 T2LS5T
UPPER MAGAZINE PALETTE CLAMP RIGHT END
SHUTTLE TRAY HIGH CHK (MIDDLE) SENSOR (T)
上マガジンパレットクランプ左行端(アンクランプ確認)
シャトルトレイ高さ監視(中)センサ(受光)
2 T2LS9 19 T2LS5R
UPPER MAGAZINE PALETTE CLAMP LEFT END
SHUTTLE TRAY HIGH CHK (MIDDLE) SENSOR (R)
上マガジンパレットクランプ右行端(クランプ確認)
シャトルトレイ高さ監視(下)センサ(投光)
3 T2LS8 20 T2LS4T
UPPER MAGAZINE PALETTE CLAMP RIGHT END
SHUTTLE TRAY HIGH CHK (LOWER) SENSOR (T)
上マガジンパレットクランプ左行端(アンクランプ確認)
シャトルトレイ高さ監視(下)センサ(受光)
4 T2LS10 21 T2LS4R
UPPER MAGAZINE PALETTE CLAMP LEFT END
SHUTTLE TRAY HIGH CHK (LOWER) SENSOR (R)
中マガジンパレットクランプ左行端(アンクランプ確認) シャトルトレイ高さ監視(下)アンプ
5 T2LS11 22 T2LS4
MIDDLE MAGAZINE PALETTE CLAMP LEFT END SHUTTLE TRAY HIGH CHK (LOWER) AMP
中マガジンパレットクランプ右行端(クランプ確認) シャトルトレイ高さ監視(中)アンプ
6 T2LS13 23 T2LS5
MIDDLE MAGAZINE PALETTE CLAMP RIGHT END SHUTTLE TRAY HIGH CHK (MIDDLE) AMP
中マガジンパレットクランプ左行端(アンクランプ確認)
シャトルトレイ高さ監視(上)アンプ
7 T2LS12 24 T2LS6
MIDDLE MAGAZINE PALETTE CLAMP LEFT END
SHUTTLE TRAY HIGH CHK (UPPER) AMP
中マガジンパレットクランプ右行端(クランプ確認) シャトル後退端
8 T2LS14 25 T2LS1A
MIDDLE MAGAZINE PALETTE CLAMP RIGHT END SHUTTLE REVERSE END
下マガジンパレットクランプ右行端(クランプ確認)
シャトルチャック開き端(クランプ確認)
9 T2LS15 26 T2LS2
LOWER MAGAZINE PALETTE CLAMP RIGHT END
SHUTTLE CHUCK OPEN END
下マガジンパレットクランプ左行端(アンクランプ確認)
シャトルチャック閉じ端(アンクランプ確認)
10 T2LS17 27 T2LS3
LOWER MAGAZINE PALETTE CLAMP LEFT END
SHUTTLE CHUCK CLOSE END
下マガジンパレットクランプ右行端(クランプ確認)
シャトルチャック開き
11 T2LS16 28 T2SOL7
LOWER MAGAZINE PALETTE CLAMP RIGHT END
SHUTTLE CHUCK OPEN
下マガジンパレットクランプ左行端(アンクランプ確認)
12 T2LS18
LOWER MAGAZINE PALETTE CLAMP LEFT END
上マガジンパレットクランプ右行
13A T2SOL1
UPPER MAGAZINE PALETTE CLAMP RIGHT
上マガジンパレットクランプ左行
部品廃棄BOX着座確認
13B T2SOL2
29 T2LS34
UPPER MAGAZINE PALETTE CLAMP LEFT
PARTS EJECT BOX SET CHECK
中マガジンパレットクランプ右行
RFID リーダ・ライタユニット(OPTION)
14A T2SOL3
30 10PCB1
MIDDLE MAGAZINE PALETTE CLAMP RIGHT
RFID READER・WRITER・UNIT
中マガジンパレットクランプ左行
14B T2SOL4
MIDDLE MAGAZINE PALETTE CLAMP LEFT
下マガジンパレットクランプ右行
15A T2SOL5
LOWER MAGAZINE PALETTE CLAMP RIGHT
下マガジンパレットクランプ左行
15B T2SOL6
LOWER MAGAZINE PALETTE CLAMP LEFT
シャトルトレイ高さ監視(上)センサ(投光)
16 T2LS6T
SHUTTLE TRAY HIGH CHK (UPPER) SENSOR (T)
シャトルトレイ高さ監視(上)センサ(受光)
17 T2LS6R
SHUTTLE TRAY HIGH CHK (UPPER) SENSOR (R)
拡大図
詳細図
22
23
24
17
18
21
16
19
20
30
25
29
26
27
28
2
3
4
5
6
7
8
9
10
11
12
27
26
15B
14B
13B
15A
14A
13A