TR5DNR_TR5DNX-Rev05PDFA - 第14页
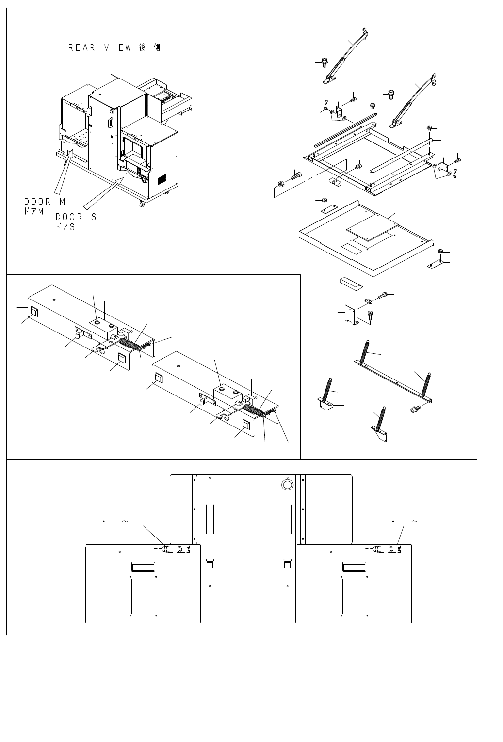
- 11 - 6. DO OR UNIT ドアユニット 2 3 4 5 5 7 13 9 10 2 12 10 6 15 16 6 10 12 2 10 9 8 13 18 18 19 19 20 20 17 21 23 14 21 23 24 25 26 5 5 27 28 29 30 31 32 31 32 33 34 35 38 40 39 34 1 1 36 35 42 42 41 43 11 44 45 37 36 37 40

- 10 -
REF.NO NOTE PART NO D E S C R I P T I O N
品 名
Qty
1 400-49103 ST STAGE BR
STステージBR
2
2 400-49102 ST STAGE R
STステージR
1
3 400-49101 ST STAGE L
STステージL
1
4 E6058-723-000 ST SET LEVER
STセットレバー
1
5 E6060-723-000 ST SET LEVER SP
STセットレバーSP
2
6 400-48936 PARTITION PL
パーテーションPL
1
7 E6059-723-000 ST SET LEVER SH
STセットレバーSH
1
8 400-49533 STK S SET SENSOR CABLE 3 ASM
スタッカSセットセンサケーブル3組
1
9 400-49530 STK M SET SENSOR CABLE 3 ASM
スタッカMセットセンサケーブル3組
1
10 HD-0017100-00 PHOTO SENSOR
フォトインタラプタ
1
11 E6053-723-000 CG CABLE BARE
CGケーブルベア
1
12 HD-0017100-00 PHOTO SENSOR
フォトインタラプタ
2
13 PA-4045001-A0 SIGN CYLINDER
サインシリンダ
1
14 PC-0252020-00 THROTTLE VALVE
絞り弁
2
15 PA-9000680-00 FLOATING JOINT
フローティングジョイント
1
16 E6056-723-000 CASTER BL
キャスターBL
2
17 E6055-723-000 CG CASTER
CGキャスター
2
18 400-49262 ST STAGE M
STステージM
1
19 400-48935 CG UPPER FRAME
CGアッパーフレーム
1
20 400-48937 CG STAGE STOPPER
CGステージストッパ
1
21 SL-6041092-TN SCREW
座金付き六角穴ボルト
4
22 SM-6103502-TP SCREW M10 L=35
六角穴ボルト M10 L=35
1
23 NM-6100001-SC NUT M10X1.5
六角ナット M10 1種
1
24 E6052-723-000 SLIDE RAIL 601-26
スライドレール 601−26
2
25 SL-6061292-TN SCREW
座金付き六角穴ボルト
4
26 SM-6040802-TN SCREW
六角穴ボルト M4X0.7 L=8
2
27 SL-6061092-TN SCREW
座金付き六角穴ボルト
8
28 SL-6061092-TN SCREW
座金付き六角穴ボルト
6
29 SM-6040802-TN SCREW
六角穴ボルト M4X0.7 L=8
2
30 SL-6061092-TN SCREW
座金付き六角穴ボルト
4
31 SM-6041602-TN SCREW M4 X 16
六角穴ボルト M4X0.7 L=16
4
32 NM-6030001-SC NUT M3
六角ナット M3X0.5 1種
4
33 RE-0600000-K0 E-RING 6
E形止め輪 6
2
34 SM-6040802-TN SCREW
六角穴ボルト M4X0.7 L=8
2
35 E3020-700-000 PROXIMITY SENSOR BRACKET
近接スイッチ ブラケット
2
36 SL-4030691-SC SCREW M3X6
なべ小ねじセムス M3X0.5 L=6
4
37 SM-5040601-SC SCREW M4X0.7 L=6
バインド小ねじ M4X0.7 L=6
20
38 SL-6061292-TN SCREW
座金付き六角穴ボルト
2
39 SL-4040891-SC SCREW M4 L=8
座金付きなべ小ねじ M4 L=8
4
40 SM-6061602-TN SCREW M6 L=16
六角穴ボルト M6 L=16
4
41 SL-6061692-TN BOLT
座金付き六角穴ボルト
8
42 400-48933 CG BOTOM FRAME
CGボトムフレーム
1

- 11 -
6. DOOR UNIT
ドアユニット
2
3
4
5
5
7
13
9
10
2
12
10
6
1516
6
10
12
2
10
9
8
13
18
18
19
1920
20
17
21 23 14 21 23
24
25
26
5
5
27
28
29
30
31
32
31
32
33
34
35
38
40
39
34
1
1
36
35
42
42
41
43
11
44
45
37
36
37
40

- 12 -
NOTE( 注記 ) #01....FOR EN EN 用
#02....EXCEPT EN EN を除く
REF.NO NOTE PART NO D E S C R I P T I O N
品 名
Qty
1 400-49100 ST GUIDE RAIL 5D
STガイドレール5D
4
2 400-51573 BALL CATCH
ボールキャッチ
2
3
#02
400-52108 DOOR SENSOR BR
ドアセンサーBR
2
4
#02
HD-0017100-00 PHOTO SENSOR
フォトインタラプタ
2
5 E4508-717-000 DOOR DAMPER SP
ドアダンパーSP
4
6 400-50094 DOOR LOCK BR(CE)
ドアロックBR(CE)
2
7 400-45098 DOOR M INTERLOCK SOL. ASM
ドアMインターロックSOL.組
1
8 400-45100 DOOR S INTERLOCK SOL. ASM
ドアSインターロックSOL.組
1
9 E1055-717-000 DOOR LOCK SP
ドアロックSP
2
10 E1524-716-000 DOOR CUSHION
ドアクッション
4
11 SL-6030892-TN SCREW M3 L=8
座金付き六角穴ボルト M3 L=8
4
12 E4559-717-000 DOOR LOCK LEVER
ドアロックレバー
2
13 HD-0005700-0A PHOTO SENSOR
フォトセンサ
2
14
#01
400-49626 DOOR S OPEN SW ASM
ドアSオープンSW組
1
15
#01
400-50026 JOINT COVER L 5D
ジョイントカバーL 5D
1
16
#01
400-50025 JOINT COVER R 5D
ジョイントカバーR 5D
1
17
#01
400-49621 DOOR M OPEN SW ASM
ドアMオープンSW組
1
18 SL-4030691-SC SCREW M3X6
なべ小ねじセムス M3X0.5 L=6
4
19 NM-6030001-SC NUT M3
六角ナット M3X0.5 1種
2
20 SM-6033002-TP SCREW M3 L=30
六角穴付きボルト M3 L=30
2
21
#01
E6208-723-000 SAFETY SW BR(CE)
セーフティSWBR(CE)
2
22
#01
SL-4040891-SC SCREW M4 L=8
座金付きなべ小ねじ M4 L=8
4
23
#01
SL-4043091-SC SCREW M4 L=30
座金付きなべ小ねじ M4 L=30
4
24 400-49278 DOOR DAMP BR R
ドアダンプBR R
1
25 400-49277 DOOR DAMP BR L
ドアダンプBR L
1
26 400-48786 DOOR DAMPER BR
ドアダンパーBR
1
27 SL-6041092-TN SCREW
座金付き六角穴ボルト
2
28 400-48894 EMBEDDED PULLS
埋め込み取手
1
29
#02
SL-6041092-TN SCREW
座金付き六角穴ボルト
4
30
#02
SL-4031291-SC SCREW M3X12
なべ小ねじセムス M3X0.5 L=12
2
31 400-48854 DOOR PLATE
ドアプレート
4
32 NM-3040510-SL FLANGE NUT
フランジ付きナット
8
33 400-48926 WINDOW S
ウインドウS
1
34 WP-1052001-SC WASHER 10,5X21X2
平座金みがき丸 M10
8
35 E4503-717-000 DOOR PIVOT PIN
ドアピボットピン
4
36 RC-0100001-KP SNAP RING M10
C形止め輪 9.3
4
37 SL-6041092-TN SCREW
座金付き六角穴ボルト
4
38 E6042-723-000 DOOR BR C
ドアブラケットC
2
39 E6043-723-000 DOOR BR D
ドアブラケットD
2
40 SL-4030691-SC SCREW M3X6
なべ小ねじセムス M3X0.5 L=6
8
41 E6134-723-000 DOOR STAY 5D R
ドアステー5DR
2
42 SL-6041092-TN SCREW
座金付き六角穴ボルト
8
43 E6133-723-000 DOOR STAY 5D L
ドアステー5DL
2
44 SM-6041202-TN SCREW M4X0.7 L=12
六角穴ボルト M4X0.7 L=12
2
45 NM-6040001-SC NUT M4
六角ナット M4
2