N7202A058B[201707] - 第233页
Ref No. Remarks R 1 Q'ty 13-A 延長コンベア( デュアル):NPM-TT2 Extension C onveyor(Dual):N PM- TT2 イラスト No. Part No. 品 名 品 番 数量 R 2 パーツリスト Kit No. キット品番 Kit Name キット名称 MTKA005121AA Part Nam e 備 考 セク ション No . PARTS LIST Section…

13-A
延長コンベア(デュアル):NPM-TT2
Extension Conveyor(Dual):NPM-TT2
パーツレイアウト
Kit No.
キット品番
Kit Name
キット名称
MTKA005121AA
セクションNo.
PARTS LAYOUT
Section No.
--
O47
( KMTKA005121AA-05-1 )

Ref
No.
Remarks R
1
Q'ty
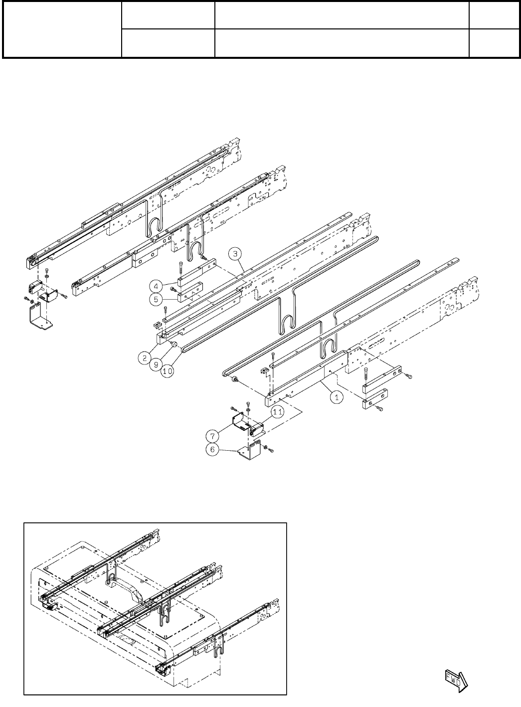
13-A
延長コンベア(デュアル):NPM-TT2
Extension Conveyor(Dual):NPM-TT2
イラスト
No.
Part No.
品 名品 番 数量
R
2
パーツリスト
Kit No.
キット品番
Kit Name
キット名称
MTKA005121AA
Part Name
備 考
セクションNo.
PARTS LIST
Section No.
R
3
FRAME
2
1 MTPA008230AB
FRAME
2
2 MTPA008231AB
GUIDE
4
3 MTPA008232AA
PLATE
4
4 MTPA008233AA
PLATE
4
5 MTPA002251AA
BRACKET
2
6 MTPB007875AB
BRACKET
2
7 MTPB004565AB
PULLEY
4
9 N610127907AA
BELT
4
10 MTNK002594AA
A
TA-4UEB M/D2 4.5WX0.65TX1573L
SENSOR(HP7-D63:900mm)
2
11 MTKP004257AA
O48
--
( KMTKA005121AA-05-1 )

13-B
延長コンベア(デュアル):NPM-TT2
Extension Conveyor(Dual):NPM-TT2
パーツレイアウト
Kit No.
キット品番
Kit Name
キット名称
MTKA005121AA
セクションNo.
PARTS LAYOUT
Section No.
--
O49
( KMTKA005121AA-05-2 )