N7202A058B[201707] - 第27页
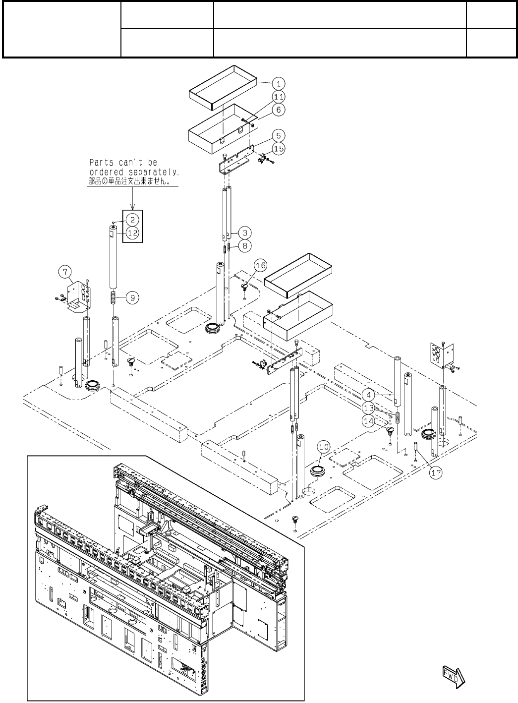
Ref No. Remarks R 1 Q'ty 1-C 本体部:NPM-TT2 MainBody :NPM-T T2 イラスト No. Part No. 品 名 品 番 数量 R 2 パーツリスト Kit No. キット品番 Kit Name キット名称 MTKA007679AA Part Nam e 備 考 セク ション No . PARTS LIST Section No. R 3 BRACKET 2 1 N210160…

1-C
本体部:NPM-TT2
MainBody:NPM-TT2
パーツレイアウト
Kit No.
キット品番
Kit Name
キット名称
MTKA007679AA
セクションNo.
PARTS LAYOUT
Section No.
--
S5
( KMTKA007679AA-13-3 )

Ref
No.
Remarks R
1
Q'ty
1-C
本体部:NPM-TT2
MainBody:NPM-TT2
イラスト
No.
Part No.
品 名品 番 数量
R
2
パーツリスト
Kit No.
キット品番
Kit Name
キット名称
MTKA007679AA
Part Name
備 考
セクションNo.
PARTS LIST
Section No.
R
3
BRACKET
2
1 N210160916AA
COVER
1
2 MTPB007763AA
COVER
2
3 MTPB009347AA
COVER
1
4 N210142895AB
COVER
4
5 MTPB009538AB
COVER
1
6 MTPB007764AB
COVER
1
7 N210161870AA
BRACKET
2
8 MTPB007503AB
COVER
1
10 MTPB009540AA
BRACKET
2
11 N210161618AA
SPACER
3
12 N510031811AA CB-502E
JOINT
8
13 N510066694AA KQ2E06-00A
JOINT
4
14 N510066695AA KQ2E08-00A
BOLT
21
15 N510017538AA
SSS 003 Hexagon socket button head screw M5X10-10.9 A2J (Trivalent)
CABLE-SUPPORT
21
16 N510059360AA KR8G5-5
S6
--
( KMTKA007679AA-13-3 )

1-D
本体部:NPM-TT2
MainBody:NPM-TT2
パーツレイアウト
Kit No.
キット品番
Kit Name
キット名称
MTKA007679AA
セクションNo.
PARTS LAYOUT
Section No.
--
S7
( KMTKA007679AA-13-4 )