N7202A047B00 - 第89页
Ref No. Remarks R 1 Q'ty 19 銘板・警告ラベル(全体カバー):NPM-W2 Label(W hole Cover):NPM-W2 イラスト No. Part No. 品 名 品 番 数量 R 2 パーツリスト Kit No. キット品番 Kit Name キット名称 N610169261AA Part Nam e 備 考 セク ショ ンNo . PARTS LIST Section No. R 3 L…

19
銘板・警告ラベル(全体カバー):NPM-W2
Label(Whole Cover):NPM-W2
パーツレイアウト
Kit No.
キット品番
Kit Name
キット名称
N610169261AA
セクションNo.
PARTS LAYOUT
Section No.
--
S65
( KN610169261AA-04 )

Ref
No.
Remarks R
1
Q'ty
19
銘板・警告ラベル(全体カバー):NPM-W2
Label(Whole Cover):NPM-W2
イラスト
No.
Part No.
品 名品 番 数量
R
2
パーツリスト
Kit No.
キット品番
Kit Name
キット名称
N610169261AA
Part Name
備 考
セクションNo.
PARTS LIST
Section No.
R
3
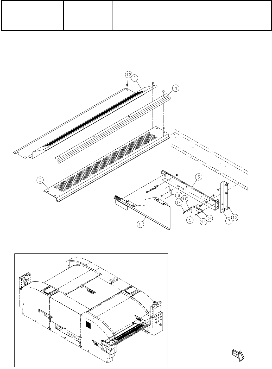
LABEL
1
1 MTPL000221AA The Name Plate of Product
LABEL
6
2 KXF0E05TA00
S
PC010101(Drawing available KXF0E05TA00)
LABEL
10
3 KXF0E05UA00
S
PC010201(Drawing available KXF0E05UA00)
LABEL
2
4 N510010729AA
S
PC011701
LABEL
1
5 KXF0E066A00
S
PW0104M1(Drawing available KXF0E066A00)
LABEL
2
6 KXF0E061A00
S
PD0101M1(Drawing available KXF0E061A00)
LABEL
2
7 N510057516AA PW0210M1
S66
--
( KN610169261AA-04 )

20-A
フィーダーテーブルカバー(交換台車対応)Front側:NPM-W2
Feeder Table Cover(Feeder Cart)Front:NPM-W2
パーツレイアウト
Kit No.
キット品番
Kit Name
キット名称
MTKA001537AA
セクションNo.
PARTS LAYOUT
Section No.
--
S67
( KMTKA001537AA-02-1 )