Gemini Semi Appendix Manual - 第66页
TECHNICAL REFERENCE APPENDIX ELECTRICAL SCHEMATIC 3.28 Appendix to Micron Technical Manuals Chapter Issue 1 Feb 15 ELECTRICAL SCHEMA TIC M36 Machine Control Enclosure Main Machine I/O Node 2 N2PL7 1 2 3 DIG IN 0 Air Pres…

TECHNICAL REFERENCE APPENDIX
PNEUMATIC MODULE
Chapter Issue 1 Feb 15 Appendix to Micron Technical Manuals 3.27
The mains air supply should be supplied to the machine at a pressure between
5 bar and 8 bar.
The air should be to quality class 2.3.3, where:
2 (dirt) = 1 micron or less
3 (water) = -20°C pressure dew point
3 (oil) = 1mg/m3 or less
The mains air supply is filtered and regulated to 5 bar before being sensed by
the air pressure switch, which is set at 3 bar. The compressed air input is
applied to the following:
• Machine Front Solenoids
• Print Carriage Solenoids
• Vacuum Tooling
• Grid-Lok Tooling
• Air Ionizer
The electrically activated solenoid valves provide pneumatic power through
several types of air cylinder.
WARNING
COMPRESSED AIR. COMPRESSED AIR SHOULD NEVER IMPINGE UPON THE
BODY. PORTS, PIPES, ETC MUST NEVER BE BLOCKED BY HAND. BEFORE
CONNECTING OR DISCONNECTING ANY PNEUMATIC COMPONENTS, ENSURE
THE COMPRESSED AIR SUPPLY HAS BEEN DISSIPATED AND DISCONNECTED
FROM THE MACHINE.

TECHNICAL REFERENCE APPENDIX
ELECTRICAL SCHEMATIC
3.28 Appendix to Micron Technical Manuals Chapter Issue 1 Feb 15
ELECTRICAL SCHEMATIC
M36 Machine
Control Enclosure
Main Machine
I/O Node 2
N2PL7
1
2
3
DIG IN 0
Air Pressure SW
8SE11
+12V
Sig
0V
PC
USB
Motherboard
NextMove ES
(I/O Node 1)
1
2
4
CAN_H
CAN_L
CAN GND
M36PL35
CAN Bus
N3SK2
7
2
3
CAN In
N2SK2
7
2
3
CAN Out
N3SK3
7
2
3
Print Carriage
I/O Node 3
N3SK8
N2SK4
N2SK2
9SK28
Auto Drip Tray
9SOL28
DIG OUT 6
0V
4
12
9SK27
Paste Disp. Tilt
9SOL27
DIG OUT 5
0V
3
11
16SK22
Rail Board Stop
16SOL22
DIG OUT 12
0V
6
16
9SK26
Paste Disp.
9SOL26
DIG OUT 4
0V
2
10
9SK25
ProFlow Paste
9SOL25
DIG OUT 3
0V
1
9
16SK14
Board Stop/RTC
Rail Width Clamp
16SOL14
DIG OUT 10
0V
4
16
16SK10
Board Clamps
16SOL10
DIG OUT 9
0V
9
16
9SK29
Screen Load
9SOL29
DIG OUT 7
0V
5
13
16SK07
Screen Clamps
16SOL07
DIG OUT 8
0V
2
15
16SK31
Chase Clamps
16SOL31B
DIG OUT 7
0V
1
14
16SK08
USC Squeegee
16SOL08
DIG OUT 14
0V
9
21
16SK31
16SK03
Lid Bolt
16SOL31A
Inroad Vane Lift
(RTC Machine)
16SOL03
Venturi Vac Unit
8SOL24
DIG OUT 11
DIG OUT 0
DIG OUT 15
0V
0V
0V
5
1
22
14
2
23
Machine Rear Solenoids
Print Carriage Solenoids
NOTE
The breaks in the CAN Bus chain reflect that
additional I/O Nodes may be fitted, refer to
Machine Control chapter for the complete
CAN Bus chain.
M39 Emergency
Machine Off
Enclosure
1
2
M3 PL94
16SK37
+ve
-ve
Pneumatic
Dump Valve
16SOL37

TECHNICAL REFERENCE APPENDIX
PNEUMATIC SCHEMATICS
Chapter Issue 1 Feb 15 Appendix to Micron Technical Manuals 3.29
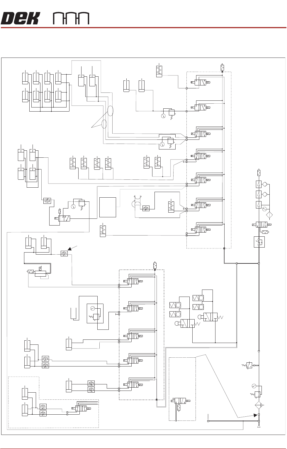
PNEUMATIC SCHEMATICS
Figure 3-5 Pneumatic Schematic Sheet 1
To Grid-Lok Tooling
See Board Support
Tooling Chapter
Pneumatic Dump
Valve. Only fitted
to machines
with M39 EMO.
5/2
9SOL29
5/2
9SOL28
5/2
9SOL27
5/2
9SOL25
Screen Load
Actuator
A
B
ASM Rail Lock
Rail Clamps
Left
Rail Clamps
Right
Out
Paste Dispense
In
Reg/Assy
IN
P
Out
R
Vacuum
Tooling
Venturi Vacuum Tooling (optional)
Pressure
Sense
Filter/Reg Assy
Mains
Air In
At 4.5 Bar
Minimum
3/2 Dual
16SOL31A
5/2
16SOL08
5/2
16SOL07
5/2
16SOL03
5/2
16SOL10
5/2
16SOL14
A
B
A
B
A
B
A
B
A
B
A
Lid Bolt
RTC Vane Clamp
Lift Sol/
Heavy Palete Rails
Snugger
ProFlow ATx Only
3/2 Dual
16SOL31B
B
5/2
9SOL26
A
B
Chase Clamps
Only one
connection
depending on type
'C' Chase/ASM
Screen Clamps
Standard - 8 Clamps
Machined C Chase - 4 Clamps
ASM Screen Clamps
Screen Clean
Squeegee Bar
(optional)
Proclean
Screen Clean
Squeegee Bar
(optional)
Board Clamps
Grid-Lok
Control
Unit
Machine Rear Solenoids
A
B
A
B
A
B
Print Carriage Solenoids
Auto Drip Tray
Paste Dispense
Tilt
ProFlow + SCAR
(optional)
5/2
9SOL28/29
A
B
Semi Auto Screen Load/
Screen Load Actuator
Board Clamp
Reg (optional)
In Out
Camera
Board Stop
Remote Board
Stop