7OM-1602-004_w - 第187页
7OM-1602 5-26 U156元件补给SWPCB( 下 ) 4.2电路图U156元件补给SWPCB( 下 ) 1008-002 A(M921WB---0011) CN1 2 1 24B11 10B OUT IN X15601 :2 :6 :3 :7 :7 :2 :5 :4 :3 7 2 4 3 5 5 3 4 2 7 X1562B X1562A RX /RX TX /TX FG FG /TX TX /RX RX C…

7OM-1602
5-25
U155I/OP.C.BSTLTILB3
4.2电路图U155I/OP.C.BSTLTILB3
1008-002 B(M921WB---0010)
I/O P.C.B
STLT_ILB_EV
U155
1
2
2
1
2
1
2
1
1
2
1
2
1
2
2
1
CN37
CN38
CN39
CN40
CN41
CN42
CN43
CN44
1
2
2
1
2
1
2
1
1
2
1
2
1
2
2
1
CN51
CN50
CN49
CN48
CN47
CN46
CN53
CN52
875(816)
X15501
CN1
2
1
10B
3
4
24B11
X15544
867
[B-/13/4D]
868
872
873
874
X15543
X15542
X15538
X15537
X15547
X15546
876(817)
XY15537
:1
:2
Y15537
24B11
XY15538
:1
:2
Y15538
XY15542
:1
:2
H15542
XY15543
:1
:2
H15543
XY15544
:1
:2
H15544
X15435(CN35):2
[B-/06/7E]
U154(STLT ILB TR)
X15434(CN34):2
[B-/06/7D]
U154(STLT ILB TR)
24B11
24B11
24B11
24B11
Spare Input 3
Spare Input 2
Spare Input 1
Spare Input 9
Spare Input 8
Spare Input 7
Spare Input 6
Spare Input 5
Spare Input 4
1 2 3 4 5 6 7 8
A
B
C
D
E
F
Ready Switch (Lower) Lamp
EV2 Interlock Signal
EV1 Interlock Signal
Lower Magazine
Shutter Open/Close
Cylinder Valve (Open)
Upper Magazine
Shutter Open/Close
Cylinder Valve (Open)
Ready Switch (Upper) Lamp
Magazine Change Switch
(Middle Door) Lamp
Output Power

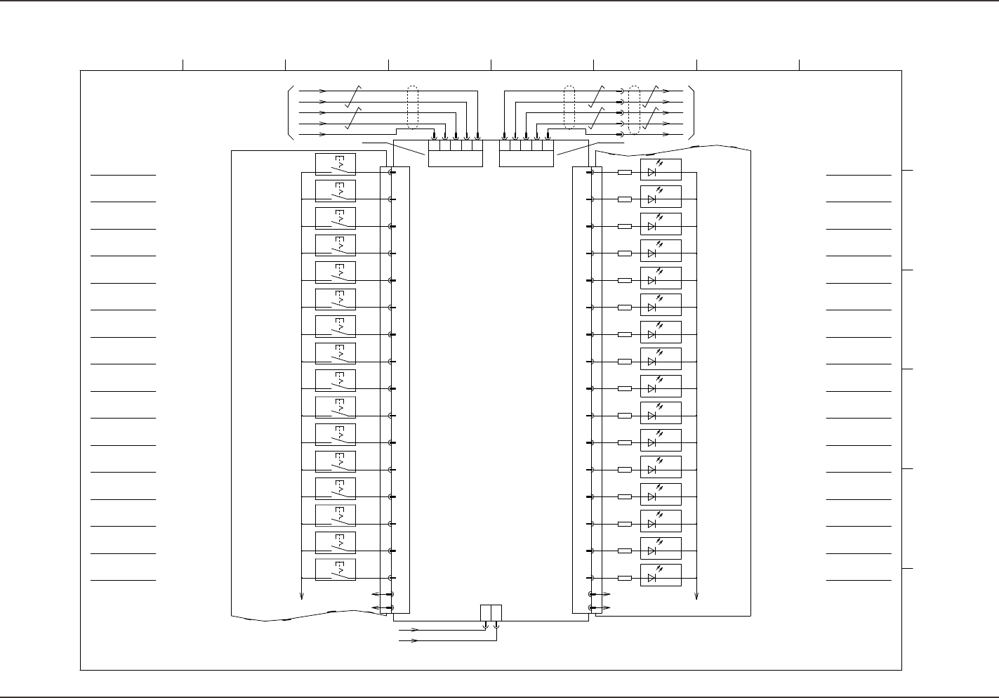
7OM-1602
5-26
U156元件补给SWPCB( 下 )
4.2电路图U156元件补给SWPCB( 下 )
1008-002 A(M921WB---0011)
CN1
21
24B11
10B
OUTIN
X15601
:2
:6
:3
:7
:7
:2
:5
:4
:3
724 3553 427
X1562BX1562A
RX
/RX
TX
/TX
FG
FG
/TX
TX
/RX
RX
CN2BCN2A
[B-/08/6A] [B-/12/3A]
GND
GND
+5V
I/O P.C.B
STLT_TR SW1 (Lower)
U156
I/O P.C.B
STLT_TR SW1
U156
GND
7
8
9
10
11
12
13
14
15
16
17,18
19,20
1
2
3
4
5
6
CN3ACN3B CN4BCN4A
GND
+5V
7
8
9
10
11
12
13
14
15
16
17,18
19,20
1
2
3
4
5
6
GND
+5V
GND
+5V
[B-/13/4D]
(Lower)
S01
S02
S04
S03
S07
S08
S06
S05
S13
S14
S16
S15
S11
S12
S10
S09
LED01
LED02
LED04
LED03
LED07
LED08
LED06
LED05
LED13
LED14
LED16
LED15
LED11
LED12
LED10
LED09
:9
Reload Switch 1
Reload Switch 2
Reload Switch 3
Reload Switch 4
Reload Switch 5
Reload Switch 6
Material Shortage
Indicator Lamp 3
Material Shortage
Indicator Lamp 4
Material Shortage
Indicator Lamp 9
Material Shortage
Indicator Lamp 10
Material Shortage
Indicator Lamp 11
Material Shortage
Indicator Lamp 12
Material Shortage
Indicator Lamp 13
Material Shortage
Indicator Lamp 14
U157(STLT TR SW2)
X1572A(CN2A)
Material Shortage
Indicator Lamp 1
Material Shortage
Indicator Lamp 2
Material Shortage
Indicator Lamp 6
Material Shortage
Indicator Lamp 5
Reload Switch 12
Reload Switch 10
Reload Switch 9
Reload Switch 8
Reload Switch 7
Reload Switch 14
Reload Switch 13
Reload Switch 11
Reload Switch 15
All Reload Switch
Material Shortage
Indicator Lamp 7
Material Shortage
Indicator Lamp 8
Material Shortage
Indicator Lamp 15
All Reload
Indicator Lamp
U155(STLT ILB EV)
X15504(CN4)
1 2 3 4 5 6 7 8
A
B
C
D
E
F

7OM-1602
5-27
U157元件补给SWPCB( 上 )
4.2电路图U157元件补给SWPCB( 上 )
1008-002 A(M921WB---0012)
CN1
21
24B11
10B
OUTIN
X15701
:4
:5
:2
:3
:35
:33
:32
:31
:34
724 3553 427
X1572BX1572A
RX
/RX
TX
/TX
FG
FG
/TX
TX
/RX
RX
CN2BCN2A
S01
S02
S04
S03
S07
S08
S06
S05
S13
S14
S16
S15
S11
S12
S10
S09
LED01
LED02
LED04
LED03
LED07
LED08
LED06
LED05
LED13
LED14
LED16
LED15
LED11
LED12
LED10
LED09
[B-/11/6A] [B-/13/4C]
GND
GND
+5V
I/O P.C.B
STLT_TR SW2 (Upper)
U157
GND
7
8
9
10
11
12
13
14
15
16
17,18
19,20
1
2
3
4
5
6
CN3ACN3B CN4BCN4A
GND
+5V
7
8
9
10
11
12
13
14
15
16
17,18
19,20
1
2
3
4
5
6
GND
+5V
GND
+5V
[B-/13/3D]
I/O P.C.B
STLT_TR SW2
U157
(Upper)
:7
X35
:3
X26909
:5
:7
:9
Connector Case
TV/EV Connecting Bundled Connector
U156(STLT TR SW1)
X15602(CN2B)
1 2 3 4 5 6 7 8
A
B
C
D
E
F
Reload Switch 1
Reload Switch 2
Reload Switch 3
Reload Switch 4
Reload Switch 5
Reload Switch 6
Material Shortage
Indicator Lamp 3
Material Shortage
Indicator Lamp 4
Material Shortage
Indicator Lamp 9
Material Shortage
Indicator Lamp 10
Material Shortage
Indicator Lamp 11
Material Shortage
Indicator Lamp 12
Material Shortage
Indicator Lamp 13
Material Shortage
Indicator Lamp 14
Material Shortage
Indicator Lamp 1
Material Shortage
Indicator Lamp 2
Material Shortage
Indicator Lamp 6
Material Shortage
Indicator Lamp 5
Reload Switch 12
Reload Switch 10
Reload Switch 9
Reload Switch 8
Reload Switch 7
Reload Switch 14
Reload Switch 13
Reload Switch 11
Reload Switch 15
All Reload Switch
Material Shortage
Indicator Lamp 7
Material Shortage
Indicator Lamp 8
Material Shortage
Indicator Lamp 15
All Reload
Indicator Lamp