P-0295-004.pdf - 第32页

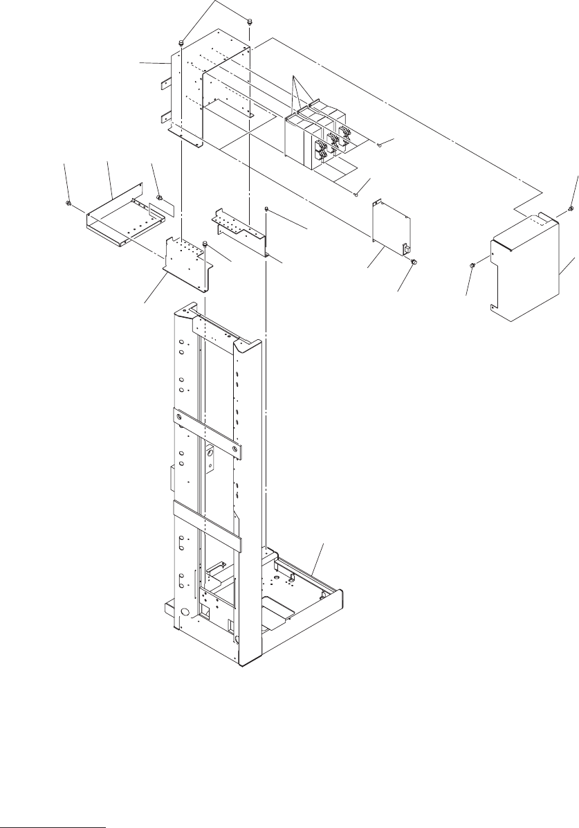
MODEL FP-G 200R 0801-002 エレベータ部 ELEV A TOR SECTION Fig. ER-8 制御部 Control Section See Fig. ER-1 Key No.1 759 758 . 752 . 759 758 . 752 . 757 756 . 751 . 759 758 . 753 . 759 758 . 753 . 757 756 . 751 . 757 756 . 751 . 759 …

100%1 / 168
MEMO
MODEL FP-G200R
0801-002
エレベータ部
ELEV
ATOR SECTION
Fig. ER-8
制御部
Control Section
See Fig. ER-1
Key No.1
759
758
.
752
.
759
758
.
752
.
757
756
.
751
.
759
758
.
753
.
759
758
.
753
.
757
756
.
751
.
757
756
.
751
.
759
758
.
752
.
722
724
723
721
711
730
702
755
755
ER-8 illust-1
MODEL FP-G200R
1004-004
Key No. PART No. PART NAME Q’ty REMARKS New Code
NOTE
702 6301280639 UNIT,DRIVER 3 -A01,-A02,-A03
806ER-510-202 4U240445
711 6301281308 RESISTOR,SPECIA 2 806ER-510-211 4R500009
721 6301287157 BRACKET 1 806ER-510-121 211F8592
722 6301287164 BRACKET 1 806ER-510-122 211F8593
723 6301311074 BRACKET 1 806ER-510-123 211F8923
724 6301287188 BRACKET 1 806ER-510-124 211F8595
730 6301309941 COVER 1 806ER-510-130 211A9121
751 6300007619 BOLT,HEX-SCT 6 M4X8 221A0016
752 6300007732 BOLT,HEX-SCT 10 M5X8 221A0028
753 6300007749 BOLT,HEX-SCT 4 M5X10 221A0029
755 4110436803 SCR PAN 5X12 6 M5X12 PAN 221E0511
756 4111412905 WASHER SPR 4 6 SW4 221H0284
757 4111414008 WASHER V 4X9X0.8 6 FW4 221H0315
758 4111416705 WASHER SPR 5 14 SW5 221H0287
759 4111414107 WASHER V 5X10X1 14 FW5 221H0318
ER-8
ER-8 list-1