KS-1700_KS-1710-Rev02.pdf - 第75页
- 70 - NOTE( 注記 ) #01....FOR KS-1700 KS −1700用 #02....FOR KS-1710 KS −1710用 REF.NO NOTE PART NO D E S C R I P T I O N 品 名 Qty 1 #01 E4021-855-0A0 CX FRAME ASM. CXフレ−ム組 1 2 #02 E4121-855-0A0 CX FRAME ASM. CXフレーム組 1 3 #01 …

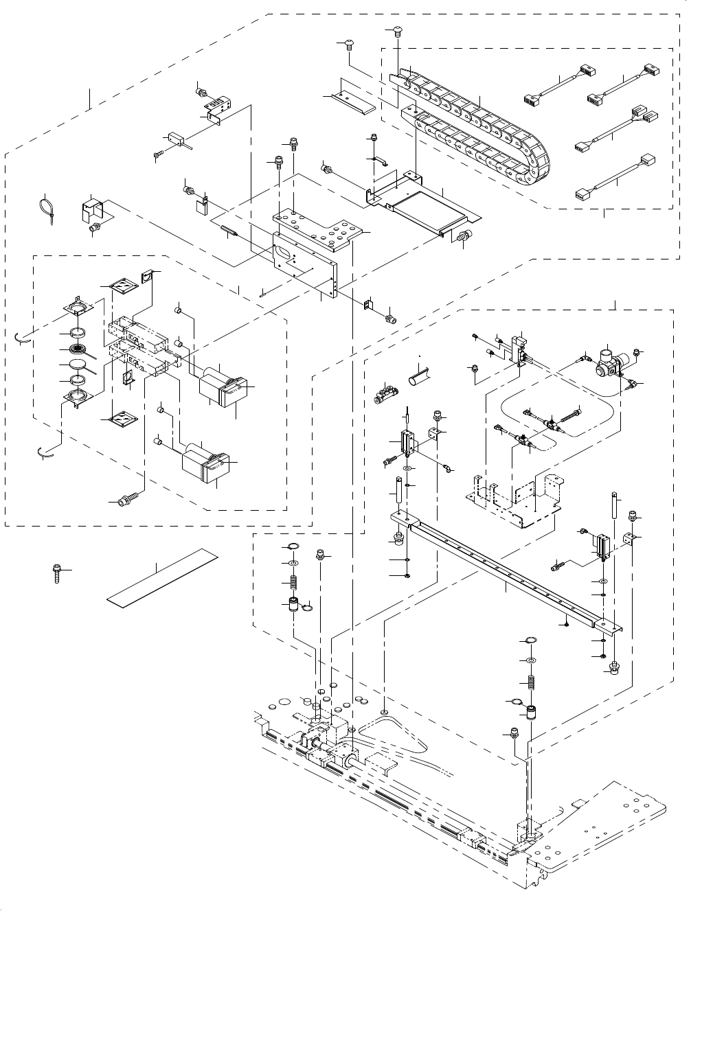
- 69 -
35. CAMERA X-Y COMPONENTS (2)
カメラX−Y関係(2)
57
62
63
60
61
65
66
64
67
A
A
68
68
69
78
75
76
73
74
71
80
77
82
72
79
70
83
84
93
86
87
89
88
59 91
1
2
26
25
49
90
81
7
3
4
5
94
5
94
6
6
8
9
10
11
12
13
15 16
28
18
19
20
21
17
29
27
38
37
39
34
33
24
36
30
31
32
40
41
42
35
43
44
45
47
47
46
48
50
51
52
53
54
56
55
58
92
85
22
23
B
B
14

- 70 -
NOTE( 注記 ) #01....FOR KS-1700 KS −1700用
#02....FOR KS-1710 KS −1710用
REF.NO NOTE PART NO D E S C R I P T I O N
品 名
Qty
1
#01
E4021-855-0A0 CX FRAME ASM.
CXフレ−ム組
1
2
#02
E4121-855-0A0 CX FRAME ASM.
CXフレーム組
1
3
#01
E4021-855-000 CX FRAME
CXフレ−ム
(1)
4
#02
E4121-855-000 CX FRAME
CXフレーム
(1)
5 SL-6051492-TN BOLT
座金付き六角穴ボルト
(16)
6 E2424-725-000 STOPPER RUBBER R
ストッパゴム
(2)
7 E4023-855-000 CX LINEAR GUIDE
CXリニアガイド
(1)
8 SM-6041602-TN SCREW M4 X 16
六角穴ボルト M4X0.7 L=16
(13)
9
#01
E4022-855-000 CX BALL SCREW
CXボ−ルねじ
(1)
10
#02
E4122-855-000 CX BALL SCREW
CXボールねじ
(1)
11 SB-1100004-00 BALL BEARING
ボ−ルベアリング
(1)
12 RC-0100001-KP SNAP RING M10
C形止め輪 9.3
(1)
13 SM-6051402-TN HEXAGONAL-HOLE BOLT M5 L=14
六角穴ボルト M5 L=14
(4)
14
#02
WS-0510002-KN SPRING WASHER
ばね座金 5.1X9.2X1.3
(4)
15
#01
E4030-855-000 CX NUT BRACKET
CXナットブラケット
(1)
16
#02
E4130-855-000 CX NUT BRACKET
CXナットブラケット
(1)
17 SL-6041092-TN SCREW
座金付き六角穴ボルト
(4)
18
#01
E4024-855-000 CX COUPLING
CXカップリング
(1)
19
#02
E4124-855-000 CX COUPLING
CXカップリング
(1)
20 E4025-855-000 CX MOTOR PLATE
CXモ−タプレ−ト
(1)
21 SL-6040892-TN BOLT
座金付き六角穴ボルト
(3)
22
#01
KM-0000001-70 AC SERVO MOTOR
ACサーボモータ
(1)
23
#02
HM-0017900-00 AC SERVO MOTOR 100W
ACサーボモータ 100W
(1)
24 SL-6041042-TN BOLT
座金付き六角穴ボルト
(2)
25 E9388-855-0A0 CX SERVO POWER CABLE 1 ASM.
CXサ−ボ電源中継ケ−ブル1組
(1)
26 E9389-855-0A0 CX ENCODER RELAY CABLE 1 ASM.
CXエンコ−ダ中継ケ−ブル1組
(1)
27 E4026-855-000 CX MOTOR BRACKET
CXモ−タブラケット
(1)
28 SL-6041092-TN SCREW
座金付き六角穴ボルト
(4)
29 E4028-855-000 CX BEARING BRACKET L
CX軸受ブラケットL
(1)
30 SM-6063002-TN SCREW M6 L=30
六角穴ボルト M6 L=30
(2)
31 WS-0610002-KN SPRING WASHER 6.1X12.2X1.5
ばね座金 M6
(2)
32 WP-0641600-SC WASHEW 6.4X12.5X1.6
平座金
(2)
33 SB-1120014-00 BEARING
ころがり軸受
(1)
34 E4027-855-000 CX BEARING PLATE
CXベアリングプレ−ト
(1)
35 SL-6041092-TN SCREW
座金付き六角穴ボルト
(4)
36 E4029-855-000 CX BEARING BRACKET R
CX軸受ブラケットR
(1)
37 SM-6063002-TN SCREW M6 L=30
六角穴ボルト M6 L=30
(2)
38 WS-0610002-KN SPRING WASHER 6.1X12.2X1.5
ばね座金 M6
(2)
39 WP-0641600-SC WASHEW 6.4X12.5X1.6
平座金
(2)
40 E4036-855-000 CX BEARING SUPPORT
CX軸受サポ−ト
(1)
41 SL-6042592-TN SCREW
座金付き六角穴ボルト
(4)
42 E4031-855-000 BACK PLATE
バックプレ−ト
(1)
43 SL-6041092-TN SCREW
座金付き六角穴ボルト
(13)
44
#01
E4032-855-0A0 CY PLASTIC RAIL L ASM.
CYプラレ−ルL組
(1)
45
#02
E4132-855-0A0 CY PLASTIC RAIL L ASM.
CYプラレ−ルL組
(1)
46 E2429-715-000 X SHAFT CABLE BEARER ASM.
X軸 ケーブルベア(組)
(1)
47 E2332-715-000 CB SPACER BEARER
CBスペ−サ
(2)
48 HX-0036400-0A CORD PART
束線パーツ
(2.6)
49 E9338-855-0A0 WINDING MOTOR CABLE 1 ASM.
巻取りモ−タ中継ケ−ブル1組
(1)
50 E9392-855-0A0 CX SERVO POWER CABLE 2 ASM.
CXサ−ボ電源中継ケ−ブル2組
(1)
51 E9395-855-0A0 CX ENCODER RELAY CABLE 2 ASM.
CXエンコ−ダ中継ケ−ブル2組
(1)
52 E9377-855-0A0 CX SENSOR RELAY CABLE ASM.
CXセンサ中継ケ−ブル組
(1)
53 E9347-855-0A0 BOC RELAY CABLE ASM.
BOC中継ケ−ブル組
(1)
54 E9349-855-0A0 SOC RELAY CABLE 1 ASM.
SOC中継ケ−ブル1組
(1)
55 E9387-855-0A0 LIGHT RELAY CABLE ASM.
ライト中継ケ−ブル組
(1)
56 E9543-855-0A0 STOP SENSOR RELAY CABLE 2 ASM.
STOPセンサ中継ケ−ブル2組
(1)
57 HX-0006500-0C CABLE BAND
束線バンド
(4)
58 SM-3061252-TN SCREW M6 L=12
丸ねじ M6 L=12
(4)
59 HX-0006500-0C CABLE BAND
束線バンド
(2)
60
#01
E4034-855-000 CONNECTOR BRACKET L
コネクタブラケットL
(1)
61
#02
E4134-855-000 CONNECTOR BRACKET L
コネクタブラケットL
(1)
62
#01
SL-6061492-TN BOLT
座金付き六角穴ボルト
(2)
63
#02
SL-6040892-TN BOLT
座金付き六角穴ボルト
(3)
64 E4037-855-000 CY PLASTIC RAIL R (ASM.)
CYプラレ−ルR(組)
(1)
65
#01
SM-3061252-TN SCREW M6 L=12
丸ねじ M6 L=12
(8)
66
#02
SM-3061252-TN SCREW M6 L=12
丸ねじ M6 L=12
(8)
67 E4041-855-000 CX COVER
CXカバ−
(1)
68 SL-6040892-TN BOLT
座金付き六角穴ボルト
(4)
69 E4043-855-000 CX-ORG BRACKET
CX−ORGブラケット
(1)
70 SL-6041092-TN SCREW
座金付き六角穴ボルト
(2)
71 E9371-855-0A0 CX ORIGIN SENSOR ASM.
CX原点センサ組
(1)
72 SM-4860801-SC SCREW M2.6 L=8
なべ小ねじ M2.6 L=8
(1)
73 E4017-855-000 C SENSOR BRACKET
Cセンサブラケット
(1)
74 SL-6030592-TN SCREW M3 L=5
座金付き六角穴ボルト
(2)
75 E9373-855-0A0 MINUS CX LIMIT SENSOR ASM.
マイナス CXリミットセンサ組
(1)
76 SM-4860801-SC SCREW M2.6 L=8
なべ小ねじ M2.6 L=8
(1)
77 E4044-855-000 CX-LMT BRACKET
CX−LMTブラケット
(1)
78 SL-6041092-TN SCREW
座金付き六角穴ボルト
(2)
79 E9372-855-0A0 PLUS CX LIMIT SENSOR ASM.
プラス CXリミットセンサ組
(1)
80 SM-4860801-SC SCREW M2.6 L=8
なべ小ねじ M2.6 L=8
(1)
81 E4014-855-000 CY-ORG SENSOR DOG
CY−ORGセンサドグ
(1)
82 SL-6041092-TN SCREW
座金付き六角穴ボルト
(2)
83 E4015-855-000 CY-LMT SENSOR DOG
CY−LMTセンサドグ
(1)
84 SL-6041092-TN SCREW
座金付き六角穴ボルト
(2)
85 HX-0022300-00 ADJUSTABLE BUSH
自在ブッシュ
(0.2)
86 HX-0015000-0D CABLE CLIP
ケ−ブル クリップ
(7)
87 SL-6041292-TN SCREW
座金付き六角穴ボルト
(7)
88 HX-0029400-00 FIXED BASE
固定ベース
(17)
89 SM-4040801-SC SCREW M4X0.7 L=8
なべ小ねじ M4X0.7 L=8
(17)
90 EA-9500B02-00 CABLE BAND 150
結束バンド 150
(10)
91 EA-9500B01-00 CABLE BAND
束線バンド
(16)
92 SM-3061652-TN SCREW M6 L=16
丸ねじ M6 L=16
(4)
93
#02
E5348-033-100 CABLE PROTECTOR 106MM
ブッシュ
(0.15)
94
#02
SL-6051692-TN BOLT
座金付き六角穴ボルト
(16)

- 71 -
36. CAMERA X-Y COMPONENTS (3)
カメラX−Y関係(3)
32
33
38
39
40
42
43
59
65
49
65
58
80
52
51
52
51
53
53
54
54
55
55
50
50
57
56
57
56
65
65
60
60
61
61
62
63
63
62
64
64
66
66
67
75
70
70
71
71
68
72
73
73
74
69
76
76
77
79
81
78
39
48
31
44
45
19
18
3
6
6
7
8
14
9
10
9
14
10
12
11
11
15
17
16
15
16
5
13
13
4
20
21
2
22
41
24
25
26
23
28
30
37
36
35
34
27
46
1
29
29
47
82