N7202A008B - 第352页
40-A トレイフィー ダ引出 部 :NPM Tray Feeder Drawing-out Section:NPM パーツレイアウト Ki t N o . キット 品番 Kit N am e キット名称 N6 1006 993 4AA セクションNo. PARTS LAYOUT Section No. - - O167 ( KN610069934AA-10-1 )

Ref
No.
Remarks
R
1
Q'ty
39-B
トレイフィーダリフト
部
:NPM
Tray Feeder Lift Section:NPM
イラスト
No.
Part No.
品 名品番 数量
R
2
パーツリスト
Kit N
o
.
キット品
番
Kit Name
キット名称
N610069932AA
Part Name
備 考
セクションNo.
PARTS LIST
Section No.
R
3
BASE-PLATE
1
1 N210040297AB
BLOCK
1
2 N210040299AA
PIN
1
3 KXFA03RAA00
PIN
3
4 KXFA03QAA00
BRACKET
1
5 N210098247AA
BRACKET
1
6 N210098248AB
BRACKET
1
7 N210086424AA
BRACKET
1
8 N210086425AB
DOG
1
9 N210101829AA
BRACKET
1
10 N210108979AB
BRACKET
1
11 N210108980AA
BRACKET
1
12 KXFB017YA00
BRACKET
1
13 N210102397AA
SENSOR
1
14 N610076031AC EE-SX911-R
SENSOR
1
15 N610076032AC EE-SX911-R
PIN
7
16 N510020878AA 87MS4-10
CABLE-BEAR
1
17 N510043558AA TKP0250W30R50X20LINK PIA.PKA
JOINT
5
18 KXF0A62AA00 KQ2S04-M6
GREASE-NIPPLE
5
19 N560AMT6-130 A-MT6X1-type(M6X1)
BOLT
4
20 N510000299AA
SSS 003 Hexagon socket button head screw M3X10-12.9 SOB
BOLT
8
21 N510017350AA
Hexagon socket head cap screw M4X15-10.9 A2J (Trivalent)
BOLT
4
22 N510017627AA
Hexagon socket Flat head bolt M4X6-10.9 A2J (Trivalent)
O166
--
( KN610069932AA-10-2 )

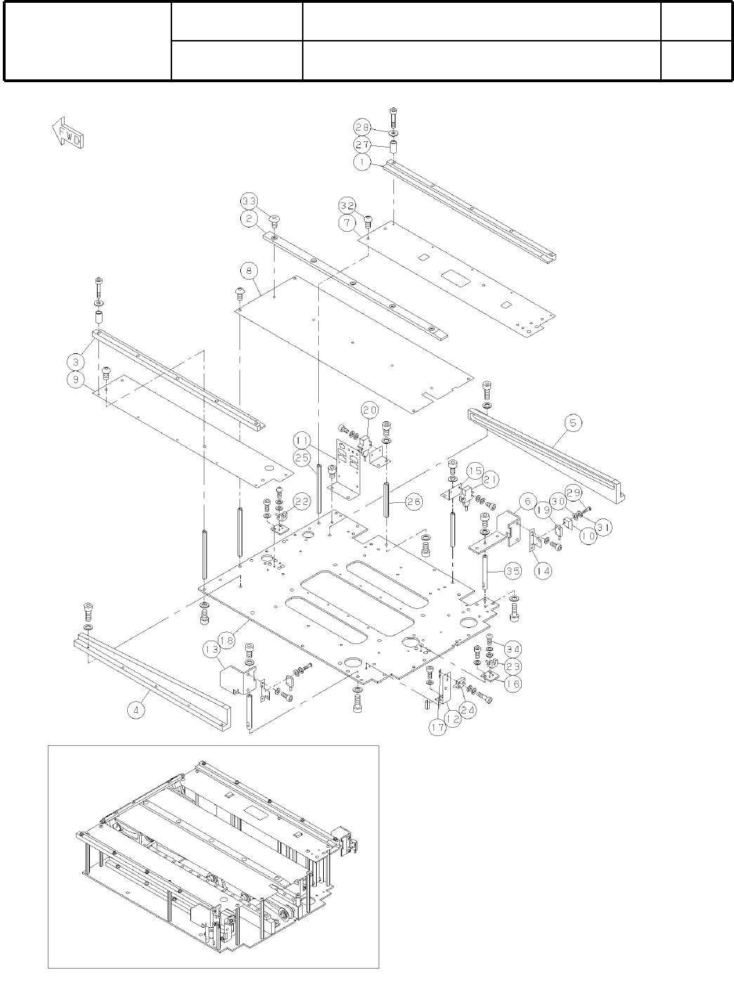
40-A
トレイフィーダ引出
部
:NPM
Tray Feeder Drawing-out Section:NPM
パーツレイアウト
Ki
t
N
o
.
キット
品番
Kit Name
キット名称
N610069934AA
セクションNo.
PARTS LAYOUT
Section No.
--
O167
( KN610069934AA-10-1 )

Ref
No.
Remarks
R
1
Q'ty
40-A
トレイフィーダ引出
部
:NPM
Tray Feeder Drawing-out Section:NPM
イラスト
No.
Part No.
品 名品番 数量
R
2
パーツリスト
Kit N
o
.
キット品
番
Kit Name
キット名称
N610069934AA
Part Name
備 考
セクションNo.
PARTS LIST
Section No.
R
3
GUIDE
1
1 N210098252AA
GUIDE
1
2 N210086813AA
GUIDE
1
3 N210098253AA
BLOCK
1
4 N210086819AA
BLOCK
1
5 N210086820AA
BRACKET
1
6 N210086827AB
PLATE
1
7 N210101885AA
PLATE
1
8 N210098256AA
PLATE
1
9 N210098257AA
SLIT
1
10 N210052902AA
BRACKET
1
11 N210094151AC
PH-BRACKET
1
12 N210094153AB
STOPPER
1
13 N210101297AA
BRACKET
2
14 N210050392AB
PH-BRACKET
2
15 N210039980AA
PH-BRACKET
2
16 N210094154AA
NUT-PLATE
1
17 KXFB04N8A00
BASE-PLATE
1
18 N210098258AB
SENSOR
1
19 N610080227AA
SENSOR
1
20 N610080228AA
SENSOR
1
21 N610080229AA
SENSOR
1
22 N610076058AC
SENSOR
1
23 N610076062AD
SENSOR
1
24 N610080230AC
SPACER
14
25 N510019891AA ASF-4100E
SPACER
4
26 N510016924AA ASF-470E
SPACER
10
27 N510027891AA 3382330-40100
WASHER
10
28 N510018473AA
Iron round plain washer3X8X1.0(chromeite) A2J (Trivalent)
SCREW
4
29 N510018034AA
Cross recessed Pan head machine screw M2X8-4.8 A2J (Trivalent)
WASHER
4
30 N510018492AA
Round finish plain washer 2 10H A2J (Trivalent)
WASHER
4
31 N510018324AA Spring lock washer No.2 2 S A2J (Trivalent)
BOLT
14
32 N510017536AA
SSS 003 Hexagon socket button head screw M4X8-10.9 A2J (Trivalent)
SCREW
5
33 N510018282AA
Cross recessed Truss head machine screw M4X8-4.8 A2J (Trivalent)
BOLT
4
34 N510000327AA
SSS 003 Hexagon socket button head screw M3X8 Steel Black oxide finish
POST
4
35 N510038754AA 87ETKR8-70
O168
--
( KN610069934AA-10-1 )