100xt_e - 第4页
PAGE 3 YV100XT (KV1) Control Wiring Diagram Emergency stop circuit diagram RELAY RELAY RELAY RELAY RELAY RELAY S10 +24V +24V +24V +24V +24V +24V 1 2 3 4 1 2 B5 A6 B6 A7 B7 A8 B8 A9 B9 1 2 3O T 2 OT3 1 2 3 4 5 6 7 8 9 10 …

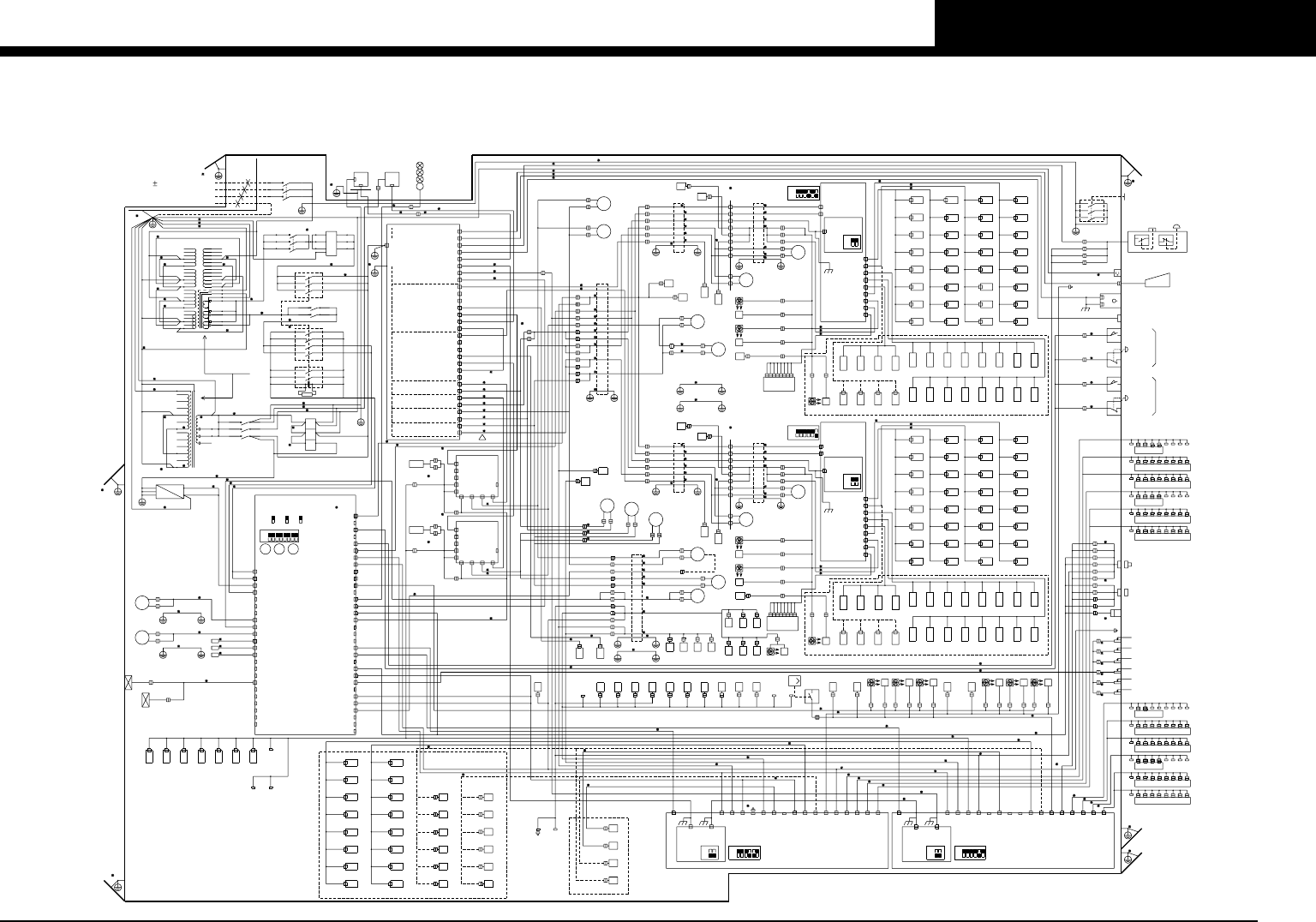
PAGE 2
YV100XT (KV1) Control Wiring Diagram
Overall connections diagram
SB11
EMG SWITCH
SB12
EMG SWITCH
SQ202
COVER
LIMIT SW
SQ201
COVER
LIMIT SW
J18
J163
J165
J164
J166
J21
J11
J47
J613
J611
J610
J26
J22
J167
J19
J74
J77
J78
J79
J80
J81
J82
J84
J86
J89
J87
J92
J120
NF11
56
34
J113
QF32 2A
12
J65
J66
J219
J85
J83
J88
J48
J110
J111
YV11
HEAD1A
BLOW
A6
FDD
1.44MB
YV1
HEAD1A
VAC.
YV2
HEAD2A
VAC.
YV3
HEAD3A
VAC.
YV4
HEAD4A
VAC.
YV5
HEAD5A
VAC.
YV12
HEAD2A
BLOW
YV13
HEAD3A
BLOW
YV14
HEAD4A
BLOW
YV15
HEAD5A
BLOW
YV16
HEAD6A
BLOW
YV17
HEAD7A
BLOW
YV18
HEAD8A
BLOW
QF21 3A
TC11 750VA
QF23 5A
YV6
HEAD6A
VAC.
YV8
HEAD8A
VAC.
YV7
HEAD7A
VAC.J16
12
ON
OFF
YV21
HEAD1A
DOWN
YV22
HEAD2A
DOWN
YV23
HEAD3A
DOWN
YV24
HEAD4A
DOWN
YV25
HEAD5A
DOWN
YV31
HEAD1A
S.L.DOWN
YV32
HEAD2A
S.L.DOWN
YV33
HEAD3A
S.L.DOWN
YV34
HEAD4A
S.L.DOWN
YV35
HEAD5A
S.L.DOWN
YV36
HEAD6A
S.L.DOWN
YV37
HEAD7A
S.L.DOWN
YV38
HEAD8A
S.L.DOWN
J76
J57J58
J59
J60
12
ON
OFF
J72
J185
J186
J166
YV26
HEAD6A
DOWN
YV27
HEAD7A
DOWN
YV28
HEAD8A
DOWN
J41
BUZZER
T1C50
B
J170
J30
J40
J109
J506
J507
J119
J505
J169
J509
J112
YV41
HEAD2A
FNC
YV42
HEAD4A
FNC
YV43
HEAD6A
FNC
YV44
HEAD8A
FNC
M5
R1-AXIS
AC SERVO
MOTOR
J162
J121
J122
J123
J124
J501
J502
J171
J43
J108
J125
J126
J146
J147
J145
J173
J45
J115
J318
J135
J152
J303
J129
J71
J503
J504
J141
J142
J143
J144
J94
M3
Z1-AXIS
AC SERVO
MOTOR
J305
J311
J120
J154
GS21
DC24V 14A
+24V
0
N
FG AC200V
L
J313
J191
J192
J174
J116
J128
J149
J511
J96
J172
J44
J114
J127
J148
J510
J73
J301
J55
SQ41A
LASER
J257
J253
J132
J150
J188
J130
J151
SQ31
X1-AXIS
ORG
SQ32
X1-AXIS
OT
SQ41B
SQ43A
LASER
SQ43B
SQ33
R-AXIS
ORG
J255
J251
J254
J252
J181
YV51
HEAD1B
VAC.
YV52
HEAD2B
VAC.
YV53
HEAD3B
VAC.
YV54
HEAD4B
VAC.
J211
J212
J213
J214
J260
J206
J259
J205
J182
J42
J215
J216
J217
J218
J204
J168
YV55
HEAD5B
VAC.
YV56
HEAD6B
VAC.
YV57
HEAD7B
VAC.
YV58
HEAD8B
VAC.
YV61
HEAD1B
BLOW
YV62
HEAD2B
BLOW
YV63
HEAD3B
BLOW
YV64
HEAD4B
BLOW
YV65
HEAD5B
BLOW
YV66
HEAD6B
BLOW
YV67
HEAD7B
BLOW
YV68
HEAD8B
BLOW
YV74
HEAD4B
DOWN
YV73
HEAD3B
DOWN
YV72
HEAD2B
DOWN
YV71
HEAD1B
DOWN
12
ON
OFF
J162
YV78
HEAD8B
DOWN
YV77
HEAD7B
DOWN
YV76
HEAD6B
DOWN
YV75
HEAD5B
DOWN
YV81
HEAD1B
S.L.DOWN
YV82
HEAD2B
S.L.DOWN
YV83
HEAD3B
S.L.DOWN
YV84
HEAD4B
S.L.DOWN
YV85
HEAD5B
S.L.DOWN
YV86
HEAD6B
S.L.DOWN
YV87
HEAD7B
S.L.DOWN
YV88
HEAD8B
S.L.DOWN
J201
J222
J202
J90
J91
J310
J320
QF22 2A
J101
SQ42A
LASER
SQ42B
YV94
HEAD8B
FNC
YV93
HEAD6B
FNC
YV91
HEAD2B
FNC
J162
J175
J46
J117
J348
J136
J153
YV92
HEAD4B
FNC
J353
J351
J365
J355
J361
M4
Z2-AXIS
AC SERVO
MOTOR
J363
SQ91A
LASER
SQ91B
SQ93A
LASER
SQ92A
LASER
SQ92B
M6
R2-AXIS
AC SERVO
MOTOR
SQ103
W1-AXIS
ORG
SQ104
W3-AXIS
ORG
SQ93B
SQ83
R-AXIS
ORG
SQ81
X2-AXIS
ORG
SQ82
X2-AXIS
OT
M7
Y1-AXIS
AC SERVO
MOTOR
M8
Y2-AXIS
AC SERVO
MOTOR
M10
W1-AXIS
AC SERVO
MOTOR
M12
W3-AXIS
AC SERVO
MOTOR
M9
YT-AXIS
AC SERVO
MOTOR
M11
W2-AXIS
AC SERVO
MOTOR
M14
CONVEYOR
MOTOR 2
J95
SQ154A
SQ154BSQ164B
SQ153A
SQ153B
SQ155A
SQ155B
SQ163A
SQ163B
SQ165A
SQ165B
SQ164AAIR
PRESSURE
SENSOR
P
SQ162
R2FDR
CARRIAGE
SQ161
R1FDR
CARRIAGE
SQ152
F2FDR
CARRIAGE
SQ151
F1FDR
CARRIAGE
M16
P/U-AXIS
AC SERVO
MOTOR
SQ117
CONV2
ENT
SQ118
SET
POS.
SQ119
CONV2
EXIT
SQ120
PIN1
SQ122
PUSH
UP
SQ131
W2
AXIS
ORG
SQ132
P/U
AXIS
ORG
SQ133
YT
AXIS
ORG
SQ134
YT
AXIS
OT
SQ124
CONV1
EXIT
WORK
OUT
SQ121
PIN2
SQ111
CONV1
ENT
SQ112
SUB1
ENT
SQ113
SUB2
ENT
SQ114
CONV3
ENT
SQ115
CONV3
EXIT1
SQ116
CONV3
EXIT2
SQ141
LIGHT1
UPPER
SQ142
LIGHT1
LOWER
SQ143
LIGHT2
UPPER
SQ144
LIGHT2
LOWER
M13
CONVEYOR
MOTOR 1
J521
J522
SQ123BSQ123A
PUSH UP SAFETY
J62
J61
J63
J64
J49
J50
J26
J612
J29
J75
J97
M15
CONVEYOR
MOTOR 3
1234
ON
OFF
5678
J51
J52
J53
J24
J67
J54
SQ171
F1DUNP
STATION
SQ172
R1DUNP
STATION
SQ181
F1NONSTOP
SWITCH
SQ182
F1NONSTOP
UP
SQ183
F1NONSTOP
FORWARD
SQ184
F2NONSTOP
SWITCH
SQ185
F2NONSTOP
UP
SQ173
F2DUNP
STATION
SQ174
R2DUNP
STATION
SQ186
F2NONSTOP
FORWARD
SQ191
R1NONSTOP
SWITCH
SQ192
R1NONSTOP
UP
SQ193
R1NONSTOP
FORWARD
SQ194
R2NONSTOP
SWITCH
SQ195
R2NONSTOP
UP
SQ196
R2NONSTOP
FORWARD
YV401
F1NONSTOP
UP
YV402
F1NONSTOP
DOWN
YV403
F1NONSTOP
FORWORD
YV404
F1NONSTOP
BACK
YV405
F2NONSTOP
UP
YV406
F2NONSTOP
DOWN
YV407
F2NONSTOP
FORWORD
YV408
F2NONSTOP
BACK
YV508
R2NONSTOP
BACK
YV507
R2NONSTOP
FORWORD
YV506
R2NONSTOP
DOWN
YV505
R2NONSTOP
UP
YV504
R1NONSTOP
BACK
YV503
R1NONSTOP
FORWORD
YV502
R1NONSTOP
DOWN
YV501
R1NONSTOP
UP
YV301
MAIN
STOPPER
YV302
CLAMP
BOARD
YV303
LOCATE
PIN
YV304
EDGE
CLAMP
YV305
PUSH
IN
YV306
STOPPER
ENT
YV307
STOPPER
EXIT
J203
J15
J134
J133
J137
J187
J401
J131
J138
J139
J102
J103
J161
J315
SQ1
HEAD1A
DOWN
SQ21
HEAD2A
CLUTCH
SQ22
HEAD4A
CLUTCH
SQ23
HEAD6A
CLUTCH
SQ24
HEAD8A
CLUTCH
QF11 set13A
QF31 10A
SQ2
HEAD2A
DOWN
SQ3
HEAD3A
DOWN
SQ4
HEAD4A
DOWN
SQ5
HEAD5A
DOWN
SQ6
HEAD6A
DOWN
SQ7
HEAD7A
DOWN
SQ8
HEAD8A
DOWN
SQ11
HEAD2A
FNC
POS1
SQ12
HEAD4A
FNC
POS1
SQ13
HEAD6A
FNC
POS1
SQ14
HEAD8A
FNC
POS1
SQ15
HEAD2A
FNC
POS2
SQ16
HEAD4A
FNC
POS2
SQ17
HEAD6A
FNC
POS2
SQ18
HEAD8A
FNC
POS2
SQ71
HEAD2B
CLUTCH
SQ72
HEAD4B
CLUTCH
SQ73
HEAD6B
CLUTCH
SQ74
HEAD8B
CLUTCH
SQ51
HEAD1B
DOWN
SQ52
HEAD2B
DOWN
SQ53
HEAD3B
DOWN
SQ54
HEAD4B
DOWN
SQ55
HEAD5B
DOWN
SQ56
HEAD6B
DOWN
SQ57
HEAD7B
DOWN
SQ58
HEAD8B
DOWN
SQ68
HEAD8B
FNC
POS2
SQ67
HEAD6B
FNC
POS2
SQ66
HEAD4B
FNC
POS2
SQ65
HEAD2B
FNC
POS2
SQ64
HEAD8B
FNC
POS1
SQ63
HEAD6B
FNC
POS1
SQ62
HEAD4B
FNC
POS1
SQ61
HEAD2B
FNC
POS1
P40
HL11
ALARM(RED)
ERROR(YELLOW)
RUN (GREEN)
T1C41
T1C40
T1C42
QS11
L1
L2
L3
T1
T2
T3
B
AC
D
E
F
J14
J4
J609
J606
J604
J603
J602
J601
J608
J607
KM10A
S10
123
ON
OFF
456
123
ON
OFF
456
J3
12
ON
OFF
J605
M2
X2-AXIS
AC SERVO
MOTOR
M1
X1-AXIS
AC SERVO
MOTOR
SQ101
Y1-AXIS
ORG SQ102
Y1-AXIS
OT
TM11 2.48KVA
W
V
U
1234
ON
OFF
56 1234
ON
OFF
56
POWER SOURCE
3~50/60Hz
KM10
23 24
13 14
A1 A2
53 54
R
S
T
>2.5sq
W50
V50
U50
W51
V51
U51
0V
190V
200V
208V
230V
240V
0V
190V
200V
208V
230V
240V
0V
200V
208V
230V
240V
0V
190V
200V
208V
230V
240V
0V
190V
200V
208V
230V
240V
0V
190V
200V
208V
230V
240V
190V
N
W50
V50
U50
S1
R1
T1
240V
230V
208V
200V
190V
0V
240V
230V
208V
200V
190V
0V
0V
100V
200V
220V
U20
U10
V10
U21
S1
R1
U21
V10
FG
+24V
0V
V10
V10
V10
V10
V10
XT21
U60
V60
U61
V61
V10
V10
W51
V51
U51
W52
V52
U52
V54
U54
6
5
4
E
KM10
1
2
3
W52
V52
U52
W54
61
200/208/220/240
NOTE1
PE
V10
V10
V10
L1
L2
L3
CRT1
ROBOT
CRT2
VISION
12
34
56
MAIN SWITCH
U1A/V10
XS11 AC 100V
1A MAX
SERVICE
CONCENT
AC IN
CONNECTION BOARD
CNF1
CNF2
CNF3
CNF4
CNF5
CNF6
CNF7
CNF37
CNF13
CNF10
CNF11
CNF12
CNF25
CV ACIN
CV JP1
CV JP2
CMTR1
CNF26
CNF27
CNF28
CNF29
CNF31
CNF32
CNF33
CNF34
CNF38
CNF39
CNF40
CNF14
CNF42
CNF43
CNF30
CNF47
CNF48
FAN1
SB13
READY SW
PROG.UNIT ASSYA5
EMG1/1A
YPU/EMG
EMG6/7
READY
CMN1
+24VA/
A1 CONTROL BOX ASSY(MCX2)
CONTROL
BOX ASSY
CONVEYOR1 H
CONVEYOR1 L
CONVEYOR2 H
CONVEYOR2 L
CONVEYOR
SPEED
ADJUSTMENT
CONV1 FG
CV1H
CV1L
CV2H
CV2L
C1
C2
CNF15
CNF16
CNF18
CNF44
CNF45
CNF17
CNF19
PWR TF2
CNF20
CNF21 CNF22
CNF23
CNF24
CNF41
CNF46
CV JP3CNF35
CMTR2
CNF36 CMTR3
C1
C2
C3
CNF8
CNF9 CONTACTA2
CONTACTA1
I/O H1OT
I/O H2OT
EMG
YPU/HHK
PWR TF1
FEEDER PWR
+24V IN
OP +24V
PATLITE
PATLITE S.P
TF1
TF2
TF3
FAN1
EPW1
EPW2
EPW3
CONV VR
FRONT PANEL
C3
EMG2/2A
EMG1A/1B
FRONT SIDE
REAR SIDE
CV3H
CV3L
CONVEYOR3 H
CONVEYOR3 L
S1 S2
S3
S4
U11
U1A
V10
U11
U21
FLEXIBLE
DUCT YT
CONV3 FG
CONV2 FG
S1
R1
C/R GOOD
LED DRIVE
EMG SPARE
SENSOR PWR
0V
EMG2C/2D
EMG1C/1D
READY
DC24
CMN
220V
220V
200V
200V
220V
U60
V60
62
73
83
74
84
V61
U61 U62
V62
EMG7 EMG6
T1821B +24VC
+24V
N1016
EMG7
+24VC
0V
Rating 4kVA MAX.
380/400/416V 10%
YPU/EMG
FAN2
KEY
FDD
SERIAL1
SERIAL2
VGA
I/O1
I/O2
EMG
SYSTEM
CAMERA1
CAMERA2
CAMERA3
CAMERA4
LIGHT1
V.OUT
V.IN
CAMERA1
CAMERA2
CAMERA3
CAMERA4
LIGHT1
V.OUT
V.IN
SERVO1A
SERVO1B
DRIVER1A
DRIVER1B
PI1A
PI2A
PI1B
PI2B
MO1A
MO2A
MO1B
MO2B
FDD
SERIAL1
SERIAL2
I/O1
I/O2
A7 KEY BORAD
T2A10
T2A11
T2A12
T2A13
T2A14
T2A15
T2A16
T2A17
T2A50
T2A51
T2A52
T2A53
T2A54
T2A55
T2A56
T2A57
T2A00
T2A01
T2A02
T2A03
T2A04
T2A05
T2A06
T2A07
T2A30
T2A31
T2A32
T2A33
T2A34
T2A35
T2A36
T2A37
I/O HEAD
FRONT
CN5 EMG
DC24V IN
I/O
CORE
CNX1
COMU1
CN6DO0,3
DO1,2 CN7
DI3 CN10
DI4 CN11
DI5 CN12
DO4 CN8
ORG/OT CN4
VAC.SENS. CN9
LIGHT CN13
N2230 N2231 N2232 N2233 N2234 N2235 N2236
N2237
N2240 N2241 N2242 N2243 N2244 N2245 N2246
N2247
N2253N2250 N2251 N2252
T2A22 T2A23 T2A24 T2A25
FLEXIBLE
DUCT Z1
CN2
CN5
CN2
CNX1
XORG
XOT
LIGHT
XORG
XOT
LIGHT
VAC.SENSOR
P41 - P48
12345678
FLEXIBLE
DUCT X1
FIDUCIAL
LIGHT
LED
T2B10
T2B11
T2B12
T2B13
T2B14
T2B15
T2B16
T2B17
T2B50
T2B51
T2B52
T2B53
T2B54
T2B55
T2B56
T2B57
T2B00
T2B01
T2B02
T2B03
T2B04
T2B05
T2B06
T2B07
T2B30
T2B31
T2B32
T2B33
T2B34
T2B35
T2B36
T2B37
I/O HEAD
CN5 EMG
DC24V IN
I/O
CORE
CNX1
COMU1
CN6DO0,3
DO1,2 CN7
DI3 CN10
DI4 CN11
DI5 CN12
DO4 CN8
ORG/OT CN4
VAC.SENS. CN9
LIGHT CN13
N2330 N2331 N2332 N2333 N2334 N2335 N2336
N2337
N2340 N2341 N2342 N2343 N2344 N2345 N2346
N2347
N2353N2350 N2351 N2352
T2B22 T2B23 T2B24 T2B25
FLEXIBLE
DUCT Z2
CN2
CN5
CN2
CNX1
XORG
XOT
LIGHT
XORG
XOT
LIGHT
VAC.SENSOR
P51 - P58
12345678
FLEXIBLE
DUCT X2
FIDUCIAL
LIGHT
LED
FNC VERSION
FNC VERSION
REAR
+24V+24V
PI
MO
PI
MO
CN5
+24V
CN5
+24V
CN5CN5
FLEXIBLE
DUCT Y
SERIAL2
+24V
CN5
I/O
I/OA
I/OB
Y1
XPI
PI
MO
PI
MO
CAMERA1
CAMERA2
CNX1
COMU1
CNX2
COMU2
I/O CORE
I/O CONVEYOR UNIT
B
CN11
DO1
CN12
DO2
CN13
DO3
CN14
DO4
CNX1
COMU1
CNX2
COMU2
I/O CORE
I/O CONVEYOR UNIT
A
CN11
DO1
CN12
DO2
CN13
DO3
CN14
DO4
CN7
DI1
CN2
DC24V
IN
CN2
DC24V
IN
CNF18
CNF9
CNF13
CNF21
CNF1
CNF10
CNF12
CNF15
CNF16
CN7
DI1
N1015 SERVICE KEY
CN3
ORG/OT
CNF17
CN3
ORG/OT
PI
MO
PI
MO
CNF25
EMG
CNF29
CNF7
CNF6
CNF37
PI MO
PI MO
PI MO
CNF5
CNF36
CNF4
CN8
EMG/INT
CN8
EMG/INT
CN22
DI SPARE
CN22
DI SPARE
CN15
DO5
CN16
DO6
CN4
DI2
CN1
DI3
CN19
DI36
CN18
DI4
CN23
DO SPARE
CN15
DO5
CN4
DI2
CN1
DI3
CN19
DI36
CN18
DI4
CN23
DO SPARE
CN16
DO6
CNF22
F1
FDR
F2
FDR
F
AREA
R1
FDR
R2
FDR
R
AREA
F.K.BOARD SERVICE KEY
W2ORG
PI
MO
ORG/OT
CNF24
N1026
N1126
N1067
N1060
N1061
N1062
N1064
N1065
N1066
N1160
N1161
N1162
N1164
N1165
N1166
N1167
NEXT INTERFACE
PREVIOUS INTERFACE
HOUR METER
BUSY IN
BA OUT
UR OUT
LR OUT
COUNT RESET
BUSY OUT
BA IN
UR IN
LR OUT
N1113
T1832
T1833
N1120
N1116
N1115
N1117
T1822
T1844
T1845
T1846
T1847
T1850
T1851
T1852
T1853
T1944
T1945
T1946
T1947
T1950
T1951
T1952
T1953
CNF43
CNF42
CNF47
CNF8
CNF30
CNF41
CN6
EMG
CN6
EMG
CNF38
CNF39
PI
MO
R1M
Z1M
R2M
Z2M
+24E
FAN
FAN
CNF31
CN6
CN10
CN9
CN8
CN7
LED DRIVER
BOARDCN1
CN3
CN5
CN2
CN4
CN6
CN10
CN9
CN8
CN7
LED DRIVER
BOARDCN1
CN3
CN5
CN2
CN4
VISION
VISION
1A
1B
LIGHT1A
VISIONA
VISIONB
PI1A
PI2A
PI1B
PI2B
X1M
X2M
X1MO
X1PI
X2PI
X2MO
MO1A
MO2A
MO1B
MO2B
CNF48
SEN.A
SEN.B
+24V
+24V
+24V
RORG
NDOWN
SAFETY
BK
PI
MO
RP
RM
R2
R2
Z2
Z2
X BEAM
R1
R1
Z1
Z1
ZR1
ZR2
I/O
I/O
RP
RM
PI
MO
+24V
+24V
SAFETY
RORG
+24V
NUP
NUP
TG
CM1
TG
CM3
T1920 T1921 T1922 T1923 T1924 T1925 T1926 T1927
T1932 T1933
T1930
T1931
LAMP13
LED
MULTI1
1
2
LAMP14
LED
MULTI2
SOL1
SOL2
CRT2
I/O
ZR2
ZR1
YP1
YM1
YP2
YM2
N1001
N1101
W1
W3
YT
W1
W3
YT
W1
W3
YT
PU
PU
BK
W2
W2
TG
CM2
N1034 N1030 N1031 N1032
N1123
N1035 N1036 N1042 N1043 N1045 N1046
N1111
N1110 N1107 N1112 N1106 N1105
N1010 N1007 N1012 N1006
N1005
+24V +24V +24V +24V +24V +24V
N1002 N1102 N1100
N1103
N1121 N1033 N1122
N1037 N1040 N1041
ZR2M
N1000
N1003
ZR1M
N1011
DUMP STASION
NON
STOP
FEEDER
U10
CAMERA1A
CAMERA4A
CAMERA1B
CAMERA4B
LIGHT1B
ZR1
ZR2
Y1,Y2,PU
YT,W2,W3
N2223
N2225
N2224
N2320
N2325
N2324
P23 P24
P21
P22
P30
P31
CAMERA1A
CAMERA1A
CAMERA1B
CAMERA1B
CAMERA4A CAMERA4B
N1017
N1017
N1044 N1047
N1124N1125
S.P.
LIGHT4
UP
S.P.
LIGHT4
DOWN
T1837X
T1831X
0V
N2220
N2226
NDOWN
N2222
N2320
N2326
YV137
-YV140
YV129-YV136
YV121-YV128
YV118
-YV120
YV109-YV116
YV101-YV108
FRONT FEEDER PLATE
REAR FEEDER PLATE
N2322
FIX MOV
FLOAT FLOAT FLOATFLOAT
YV201-YV208
YV209-YV216
YV217
-YV220
YV221-YV228
YV229-YV236
YV237
-YV240
A2 A3 A4
SET "0"
SPEED CONTROLLER
SERVICE KEY1
HEAD I/O PWR
CONV I/O PWR
SERVO ON
OP FEEDER PWR
CONV A
CONV B
OT
CV MOTOR
PU BRAKE IN
I/O CVA
PU BREAK OUT
CNF55
CNF56
CNF53
CNF54
F AREA SENSOR
R AREA SENSOR
F AREA DI
R AREA DI
CNF52
CNF51
EMG PRN
CNF50SERVICE KEY2
CONTACTOR3
NOTE1:THIS DIAGRAM SHOWS 200V
SEE INTERCONNECTION DIAGRAM(PAGE 2)
R
S
T
R1
S1
T1
1
N1014

PAGE 3
YV100XT (KV1) Control Wiring Diagram
Emergency stop circuit diagram
RELAY
RELAY
RELAY
RELAY
RELAY
RELAY
S10
+24V
+24V
+24V
+24V
+24V
+24V
1
2
3
4
1
2
B5
A6
B6
A7
B7
A8
B8
A9
B9
1
2
3OT2
OT3
1
2
3
4
5
6
7
8
9
10
1
2
3
4
5
6
7
8
9
1
2
3
4
5
6
7
8
9
10
11
12
13
14
15
16
17
18
19
20
21
22
1
2
3
4
5
6
7
8
9
10
11
12
13
14
15
16
17
18
19
20
21
22
+24V
OT3
OT4
1
2
3
4
5
6
7
8
9
0
GS21
OT1
OT2
CN4
CN3
OT2
OT3
1
2
1
2
1
2
1
2
1
2
EMG1B
1
2
1
2
EMG2
EMG2A
1
2
1
2
1
2
3
+24V
1
2
3
1
2
3
+24V 1
2
3
+24V
1
2
1
2
READY SW.PROG.UNIT
EMG.SW PROG.UNIT
OT1
OT2
P21
+
-
+24V
P23
+
-
+
-
OT3
OT4
1
2
33
1
2
1
2
1
2
+24V
READY
EMG
1
2
1
2
1
2
SB11
1
2
EMG6
EMG1
EMG1A EMG1
EMG1A
EMG6
EMG7
1
2
3
4
5
6
7
1
2
3
4
5
6
7
8
9
10
11
12
1
2
3
4
5
6
7
1
2
3
4
5
6
7
8
9
10
11
12
OT1
OT2
CNF10
A1
A2
A3
A4
A5
A6
A7
A8
B1
B2
B3
B4
B5
B6
B7
B8
A1
A2
A3
A4
A5
A6
A7
A8
B1
B2
B3
B4
B5
B6
B7
B8
CNF12
CNF15
+24VP
EMG1
EMG1A
EMG6
EMG7
EMG1A
EMG1
EMG6
EMG7
1
2
3
4
1
2
3
4
CNF21
CONNECTION BOARD
P40
A1
A2
A3
A4
A5
A6
A7
A8
A9
A10
B1
B2
B3
B4
B5
B6
B7
B8
B9
B10
CNF13
1
2CNF9
EMG SYSTEM
A1
A2
+24E
SEE POWER CIRCUIT DIAGRAM
EMG6EMG7
A1
A2
A3
A4
A5
A6
A7
A8
A9
A10
B1
B2
B3
B4
B5
B6
B7
B8
B9
B10
1
2
OT1
EMG6
EMG7
+24V
+24E
DC24V
+24V
+24V
+24V
KM10, KM10A
+24V
53
61
23+24V
EMG7
13
54
62
24
14
YPU EMG
READY
EMG7
OT2
OT3
T1821B +24VC
0V
0V
0V
N1016 +24VC
0V
+24VC
+24VC
T1821B
N1016
0V
1
2
3
4
5
6
7
8
9
10
A1
B1
A2
B2
A3
B3
A4
B4
A5
A10
B10
A11
B11
A12
B12
A13
B13
B5
A6
B6
A7
B7
A8
B8
A9
B9
A1
B1
A2
B2
A3
B3
A4
B4
A5
A10
B10
A11
B11
A12
B12
A13
B13
OT
0V
N2226
OT2
OT3
OT2
OT3
0V
2
1
1
2
3
4
CNF25
0V 0V
0V
OT3
OT4
N1003
EMG7
I/O BOARD CONVEYOR A
2
1
SB12
EMG1A
EMG1C
EMG1D
COVER LIMIT SW FRONT
1
2 EMG
COVER LIMIT SW REAR
EMG2C
EMG2D
0V
OT
1
2
3
4
SERVO 1B
EMG SERVO 1A
1
2
0V
XOT
0V
+24VH
STOP R
STOP F
COVER F
COVER R
1
2
EMG CHECK
LED1:X1OT
LED2:X2OT
LED3:Y1OT
LED10:EMG S/W R.RIGHT
LED13:COVER LIMIT FRONT
LED16:COVER LIMIT REAR
LED17:COVER LIMIT R.CENTER
LED21:EMG SPARE1
EMG
1
2
3
OT1
OT2
OT1
OT2
1
2
3
OT2
OT3
CN5
4
1
2
3
4
5
6
7
8
9
10
1
2
3
4
5
6
7
8
9
10
CN5
CN5 1
2
B5
A6
B6
A7
B7
A8
B8
A9
B9
CN4
1
2
3
+24V
1
2
3
OT2
OT3
P22
+
-
+24V
CN5
A1
B1
A2
B2
A3
B3
A4
B4
A5
A10
B10
A11
B11
A12
B12
A13
B13
B5
A6
B6
A7
B7
A8
B8
A9
B9
A1
B1
A2
B2
A3
B3
A4
B4
A5
A10
B10
A11
B11
A12
B12
A13
B13
OT
0V
N2326
0V
XOT
SQ32
X1 OT
1
2
3
OT1
OT2
OT1
OT2
OT1 OT1
OT2 OT2
OT2
OT2
OT3
OT3
I/O BOARD HEAD FRONT
I/O BOARD HEAD REAR
SQ82
X2 OT
1
2
3
1
2
3
1
2
3
1
2
3
OT
OT
1
2
3
4
5
6
7
8
9
1
2
3
4
5
6
7
8
9
10
11
12
13
14
15
16
17
18
19
20
21
22
CN3
+24V
P24
+
-
+
-
OT3
OT4
0V
N1103
I/O BOARD CONVEYOR B
CN5
1
2
3
CN5
CN5
1
2
CNF38
1
2
3
4
1
2
3
4
CNF39
+24VH
0V
OT4
OT5
OT
+24V
OT
0V
+24V
OT
0V
OT
+24V
OT4
OT5
0V
1
2
3
4
5
6
7
8
9
CN6
CN6
YPU (A5)
KV1-CONTROLLER(A1)
Y1 OTSQ102
1
2
3
+24V 1
2
30V
Y1OT
OT OT
+24V
OT
0V
Y1OT
1
2
3
4
5
6
7
8
9
10
11
12
13
14
15
16
17
18
19
20
21
22
+24V
0V
OT
1
2
3
+24V 1
2
30V
YT OTSQ134
1
2
3
+24V 1
2
30V
YTOT
OT OT
+24V
OT
0V
N1103
C/R EMGOT6
EMG1
EMG1A
EMG1B
EMG1B
EMG1C
EMG1C
EMG1D
EMG1D
EMG1E
EMG2
EMG2A
EMG2A
EMG2B
EMG2C
EMG2D
EMG2D
EMG2E
EMG.SW FRONT
EMG.SW REAR
SQ201
SQ202
LED4:Y2OT
LED5:Y3OT
LED6:EMG OP
LED7:EMG S/W PROG.UNIT
LED8:EMG S/W F.RIGHT
LED9:EMG S/W F.LEFT
LED11:EMG S/W R.LEFT
LED12:TF EMG S/W
LED14:COVER LIMIT S/W F.CENTER
LED15:TF COVER LIMIT FRONT
LED18:TF COVER REAR
LED19:FRONT AREA SENSOR
LED20:REAR AREA SENSOR
LED22:EMG SPARE2
LED23:EMG SPARE3

PAGE 4
YV100XT (KV1) Control Wiring Diagram
Power supply circuit diagram
NF11
QF32 2A
XS11
AC100V 1A MAX
TM11 2.48KVA
W
V
U
QF23
QS11
QF11 set13A
QF31 10A
TC11 750VA
1
2
1
2
RXE3
1.85A
RXE1
2.5A
RXE2
2.5A
RXE5
2.5A
1
2
1
2
1
2
1
2
1
2
1
2
1
2
RXE1
1.85A
1
2
RXE12
0.1A
RXE4
1.85A
1
2
1
2
RXE8
2.5A
RXE1
1.85A
QF22
RXE1
1.85A
RXE1
1.85A
QF21
5A
2A
3A
1
2
3
1
2
3
1
2
3
1
2
3
+24VH+24V
+24VJ+24V
+24VK+24V
+24VL+24V
+24VN+24V
+24VO+24V
+24VP+24V
AC220V for MOTOR DRIVER POWER
AC200V for CONTROL
AC200V
DC24V
for CONV.MOTOR
for CONV.MOTOR
for CONV.MOTOR
CRT1
CRT2
VISION
1
2
3
4
5
U21
V10
POWER SOURCE
GS21
DC24V
CN2
CN2
CONTROL BOX
10%
3 ~ 50/60Hz
PROG.UNIT
A5
A1
P21
P23
P24
U
V
W
CONVEYOR
MOTOR 1
(BLACK)
(WHITE)
(GRAY)
240V
220V
208V
200V
190V
0V
240V
220V
208V
200V
190V
0V
0V
100V
200V
220V
U20
U10
V10
V10
V10
V10
U21
U11
V10
V10
XT21
U11
V10
U11
V10
U54
V54
V10
W54
U21
+24V
1
2
3
1
2
3
4
5
6
1
2
3
4
1
2
3
4
5
6
1
2
3
4
CNF16
12345. . 12
CNF15
1234
1234
CNF21
+24VK
+24VP
+24V
U62
V62
CONNECTION
BOARD
CNF1
1
2
3
4
5
6
12345. . 12
1
2
3
4
5
6
1
2
3
U62
V01
W01
1234
1234
CNF4
CNF29 CNF31
1
2
1
2
1
2
1
2
+24VN
P40
SEE EMERGENCY
CIRCUIT DIAGRAM
MTG1
MTG2
ROBOT
0V
190V
200V
208V
220V
240V
0V
190V
200V
208V
220V
240V
0V
200V
208V
220V
240V
0V
190V
200V
208V
220V
240V
0V
190V
200V
208V
220V
240V
0V
190V
200V
208V
220V
240V
190V
N
W50
V50
U50
R1
S1
T1
S1
R1
T1
S1
R1
V10
V10
V10
V10
200/208/220/240V
L1
L2
L3
R1
S1
T1
R
S
T
NOTE1:THIS DIAGRAM SHOWS 200V
SEE INTERCONNECTION DIAGRAM (PAGE 2)
FAN1
FAN2
NOTE1
380/400/416V
>2.5sq
FG
1
3
5
2
4
6
See emergency circuit diagram
W50
V50
U50
W51
V51
U51
5
3
1
KM10
2
4
6W51
6
5
4
E
3
2
1
V51
U51
W52
V52
U52
200V
200V
220V
220V
220V
V60
U60 U60
V60 V61
U61
W52
V52
U52
W54
V54
U54
73
83
74
84
U1A
V10
U1A
V61
U61
V62
U62
0V
0V
0V
0V
0V
0V
0V
CNF22
+24VH
0V
+24VH
0V
I/O BOARD CONVEYOR,A
I/O BOARD CONVEYOR,B
0V
+24V
CN2
0V
+24V
0V
+24V
12
12
CN7 LED DRIVER
-0xx
123456789
1
0
11
12
123456789
1
0
11
12
SENSOR
POWER
0V
0V
0V
0V
0V
0V
AREA SENSOR
FEEDER FLOATING SENSOR
Rating 4kVAMAX
KM10A
+24VH
+24VH
+24VH
+24VH
+24VH
+24VH
1
2
3
4
1
2
3
4
R
S
T
MAX14A
FAN
FAN
HEAD +24V
0V
+24V +24V
KV8
-M6474
1
2
M13
(15W)
CM1
U
V
W
CONVEYOR
MOTOR 2
(BLACK)
(WHITE)
(GRAY)
1
2
3
1
2
3
4
5
6
1
2
3
U63
VA1
WA1
MTG3
MTG4
M14
(15W)
CM2
U
V
W
CONVEYOR
MOTOR 3
(BLACK)
(WHITE)
(GRAY)
1
2
3
1
2
3
4
5
6
1
2
3
U64
VB1
WB1
MTG5
MTG6
M15
(15W)
CM3
1
2
3
4
5
6
CNF5
1
2
3
4
5
6
CNF36
+24VN
+24VOCNF18
CN2
P22
0V
+24V
I/O BOARD HEAD FRONT
I/O BOARD HEAD REAR
+24V +24V
1
2
3
4
1
2
3
4
+24V
+24V
1234
1234
FAN
(LIGHT)
1
2
CN7 LED DRIVER
-0xx
KV8
-M6474
1
2
1
2
CN7
CN7
1
2
FAN
1
2
FAN
+24VJ
+24VJ
+24VJ
+24VJ
0V
0V
0V
0V
0V
1
2
3
1
2
3
CM2
5678
5678
+24VL