00190585-04 - 第15页
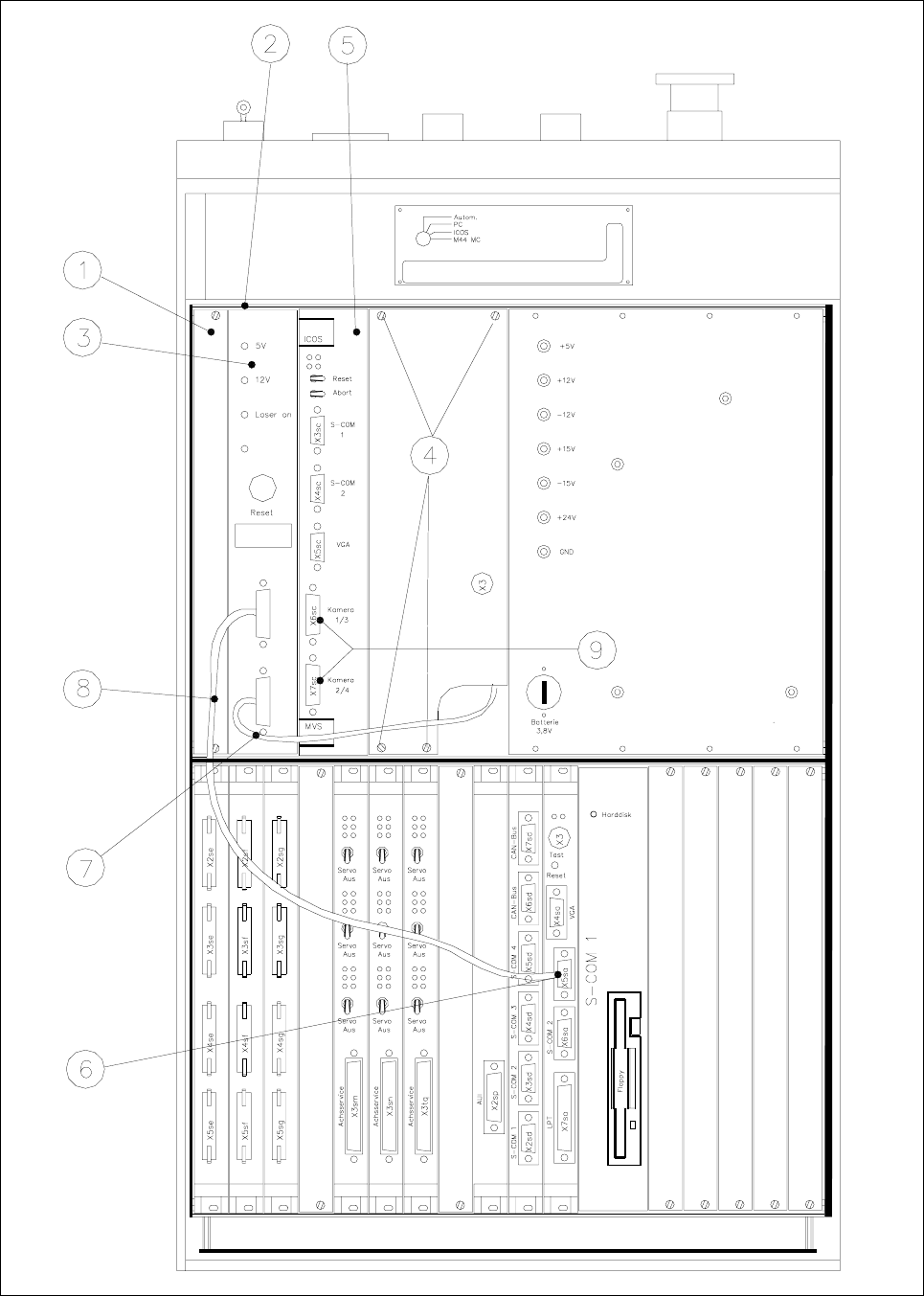
1 Nachr ü stanleitung Koplanarit ä t (Option) SIPLACE 80 F4/(F4-6)/F5 1.6 Mechanischer und elektrischer Einbau Ausgabe 0599 1 - 11 Legende zu Abb. 1.5.6 (siehe nebenstehend): 1) T eilfro ntplatte, 2) 2 F ü hr ungssch ien…

SIPLACE 80 F4/(F4-6)/F5 1 Nachrüstanleitung Koplanarität (Option)
Ausgabe 0599 1.5 Schaltpläne inkl. Ansichten zum Steuereinschub
1 - 10
Abb. 1.5.6 Steuereinschub: Einbau der "Koplanarität Recheneinheit " inkl. der Kabel

1 Nachrüstanleitung Koplanarität (Option) SIPLACE 80 F4/(F4-6)/F5
1.6 Mechanischer und elektrischer Einbau Ausgabe 0599
1 - 11
Legende zu Abb. 1.5.6 (siehe nebenstehend):
1) Teilfrontplatte, 2) 2 Führungsschienen und 2 Kontaktfedern
Befestigung: 2 Halsschrauben mit Schlitz M2,5 x 11 pro Schiene (siehe auch Abb. 1.5.5)
3) Einschub: Koplanarität Recheneinheit und 4) Befestigung des Abdeckbleches:
15-Pol. Stecker auf Einschubrückseite (siehe Abb. 1.5.5) 4 Torx-Schrauben)
5) ICOS (bei älteren Steuereinschüben 6) Maschinencontroller, COM 1
kann der ICOS auch in der unteren (V 24 Schnittstelle)
Einbaureihe sitzen)
7) Sensorkabel Koplanarität 8) Kabel: Koplanarität -Maschinencontroller
9) Diese beiden Stecker stehen links über
und müssen deshalb
vor Einbau der
Koplanarität Recheneinheit abgebaut werden !
1.6 Mechanischer und elektrischer Einbau
GEFAHR O O O
Schalten Sie die Maschine
aus und ziehen Sie den Netzstecker der Maschine.
Beachten Sie
alle Sicherheitshinweise im Abschn. 1.2 !
Halten Sie die Reihenfolge der Arbeitsschritte ein !
Es darf
keine Überbrückung von Schutzeinrichtungen vorgenommen werden !
Der Laser (Sensor) darf nicht außerhalb der Maschine betrieben werden !
1.6.1 Informationen zur Ausgangssituation an der Maschine
HINWEIS
Ab SIPLACE mit folgendem Steuereinschub-Stand besteht eine Vorrüstung für die neue Ausführung der
Option Koplanarität (Versions-Kennzeichnung siehe Abb. 1.5.5):
- Steuereinschub-Stand
F4: > 00324340-07
- Steuereinschub-Stand
F4-6: > 00331294-03
- Steuereinschub-Stand F5: > 00341851-03
Bei Nachrüstung der
neuen Ausführung der Option Koplanarität können unterschiedliche Ausgangssituatio-
nen gegeben sein:
- 1. Situation:
Maschine mit Steuereinschub-Stand
kleiner als oben genannt liegt vor und die alte Ausführung der
Option Koplanarität ist eingebaut. Dies bedeutet:
- Das durch den Maschinenständer-Innenraum zum Laser verlaufende, alte Kabel muß kurzschlußsi-

SIPLACE 80 F4/(F4-6)/F5 1 Nachrüstanleitung Koplanarität (Option)
Ausgabe 0599 1.6 Mechanischer und elektrischer Einbau
1 - 12
cher in den Maschinenständer-Innenraum zurückverlegt werden.
- Das 5V-Kabel vom Steuereinschub zum Klemmenfeld 904 kann angeschlossen bleiben.
- Das Koplan-Lasermodul inkl. Halter muß aus der Maschine entfernt werden.
- 2. Situation:
Maschine mit Steuereinschub-Stand kleiner als oben genannt liegt vor und die Option Koplanarität war
bisher nicht installiert.
Dies bedeutet:
- An Maschinen F4 mit Nr. < 90: Es ist nichts zu beachten, da keine Vorrüstung für das alte Koplan-
Modul vorhanden ist.
- Maschine F4 > Nr. 90:
- Das werksseitig für das alte Koplan-Modul vorgerüstete, im Maschinenständer-Innenraum ver-
legte Kabel zum Lasermodul wird unverändert belassen.
- Das 5V-Kabel vom Steuereinschub zum Klemmenfeld 904 wird inkl. Verdrahtung unverändert
belassen.
- 3. Situation:
Maschine mit Steuereinschub-Stand größer oder gleich als oben genannt liegt vor. Ab diesem Stand ist
für den neuen Koplanarität-Sensors
vorgerüstet -> siehe Markierung mit *) im Abschn. 1.4:
- Im Steuereinschub sind die beiden Führungsleisten mit je 2 Kontaktfedern (siehe Abb. 1.5.6 -> 2) und
der Stecker X 98 (siehe Abb. 1.5.5) für die Koplan-Baugruppe ist bereits eingebaut.
- Das Sensorkabel Koplanarität ("Sensor -> Steuereinschub", siehe Abb. 1.5.2) und das Kabel "Kopla-
narität-Klemmenfeld" (siehe Abb. 1.5.1) ist bereits im Maschinenständer-Innenraum verlegt.
- Der Kabelbaum (Kabel Koplanarität, siehe Abb. 1.5.5) vom Stecker X98 zum Netzgerät (Stromversor-
gung) ist bereits verlegt und komplett verdrahtet.
1.6.2 Vorbereitende Arbeiten
● Drücken Sie die „NOT-AUS“- Taste.
● Stellen Sie sicher, daß der Schlüsselschalter verriegelt ist.
● Schalten Sie den Automaten am Hauptschalter aus und trennen Sie den Automaten vom Netz (siehe
GEFAHR-Text, oben).
● Falls ein Wafflepackwechsler vorhanden ist, ziehen Sie die beiden Stecker des WPW (zuerst den Strom-
versorgungsstecker und dann den Schnittstellenstecker), links am Maschinenständer. Fahren Sie den
WPW aus der Maschine.
● Entfernen Sie das Abdeckblech zwischen Bauelementetisch und Leiterplattentransport.
GEFAHR O O O
Für den
Ausbau des Schneidgerätes und des Bauelementetisches (1 bzw. 2) muß immer eine 2. kräftige
Person zur Verfügung stehen, da der BE-Tisch und das Schneidgerät sehr schwer sind.
Beim Ausbau / Einbau besteht erhöhte Unfallgefahr durch die Messer des Schneidgerätes (siehe
GEFAHR-Text im Abschn. 1.2). Für den Ausbau des Schneidgerätes benötigen Sie die entsprechende Ser-
viceanleitung (siehe Abschn. 1.4, unter "Dokumention").