YSM10-BOM - 第27页
4 6 1 2 5 6 11 18 13 8 16 14 4 6 17 1 2 5 6 9 17 15 10 12 17 6 11 5 2 13 1 3 18 16 14 17 17 7 10 9 17 6 5 2 12 15 1 3 17 7 17 4 6 1 2 5 6 11 18 13 8 16 14 4 6 17 1 2 5 6 9 17 15 10 12 17 6 11 5 2 13 1 3 18 16 14 17 17 7 …

37
35
31
36
29
20
43
15
33
28
30
35
40
9
37
36
10
7
12
11
19
44
20
18
32
43
34
22
37
3
42
26
39
1
8
27
38
21
16
41
45
24
4
23
41
29
33
30
28
40
7
19
31
44
2
37
32
34
2
2
3
42
1
18
6
40
21
41
26
23
24
22
38
25
16
45
5
41
16
16
13
40
14
17
37
35
31
36
29
20
43
15
33
28
30
35
40
9
37
36
10
7
12
11
19
44
20
18
32
43
34
22
37
3
42
26
39
1
8
27
38
21
16
41
45
24
4
23
41
29
33
30
28
40
7
19
31
44
2
37
32
34
2
2
3
42
1
18
6
40
21
41
26
23
24
22
38
25
16
45
5
41
16
16
13
40
14
17
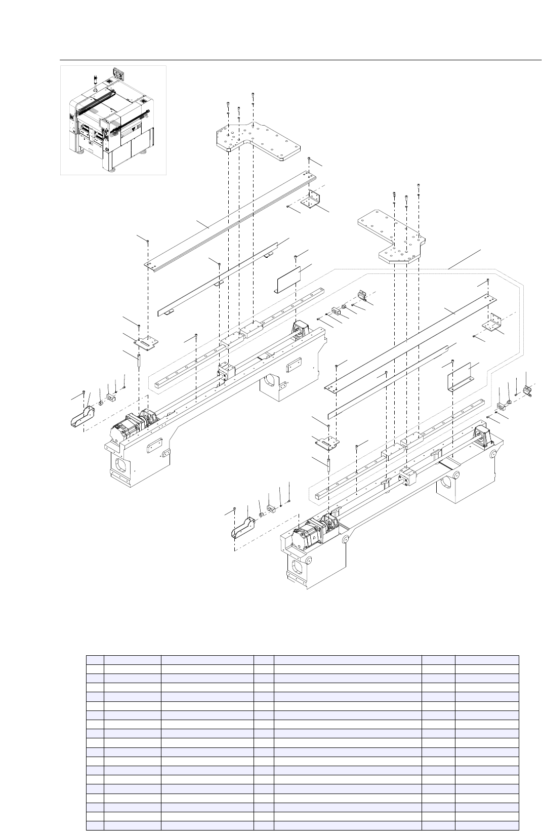
Y-axis Drive
Axis Section
KMG-1705
4-6
NO
Parts_No.
Parts_Name
Q'ty
Remarks
Compati
Revision_No._date
1
KMG-M2220-00
COUPLING
2
2
KHN-M22F5-00
WASHER,SWR05
16
3
KHN-M22F6-00
WASHER,SWR06
8
4
KMG-M22M1-00
AC SERVO MOTOR
1
M01 : Y1-axis
5
KMG-M22M1-00
AC SERVO MOTOR
1
M02 : Y2-axis
6
KMG-M2613-S0
PLATE SET
1
can not devide order : simultaneous built-in
7
KMG-M2615-00
HOLDER,NUT Y AXIS
2
8
KMG-M2616-00
DOG,Y ORIGIN
1
9
KMG-M2617-00
BRKT.,Y ORG
1
10
KMG-M653A-00
SENSOR,Y ORG ASSY
1
SQ001 : Y ORG
11
91312-05008
BOLT,HEX.SOCKET HEAD
2
12
97602-03308
SCREW,PAN HEAD W/W
2
13
KMG-M2618-00
PLATE,FAN
1
14
KMG-M6185-A0
FAN MOTOR ASSY
1
FAN 21 : X FAN
15
KLF-M4187-10
FAN GUARD 80MM
2
16
91312-04010
BOLT,HEX.SOCKET HEAD
8
17
91312-04035
BOLT,HEX.SOCKET HEAD
4
18
KHY-M264A-00
HOLDER SET,Y AXIS
2
19
KHY-M2641-00
HOLDER,MOTOR Y
2
20
KHY-M2642-00
HOLDER,BRG.Y
2
21
KMG-M2643-00
PLATE,MOTOR
2
22
KLW-M223U-00
JOINT
2
23
KHN-M22AD-00
GREASE NIPPLE
2
24
KMG-M2661-01
BOLT,NIPPLE
2
25
KMG-M2662-00
BRKT.,GREASE PIPE 1
1
26
95602-10100
NUT,S/L
2
27
KMG-M2663-00
BRKT.,GREASE PIPE 2
1
28
KHY-M266D-00
JOINT
2
29
KMG-M2670-00
BALL SCREW ASSY.
2
30
KHN-M2221-00
SUPPORT UNIT
2
31
KHN-M2248-00
SPACER
4
32
KHN-M224D-00
SPACER
2
33
KLW-M2271-00
BALL SCREW
2
34
KGS-M2628-00
LOCK NUT
2
35
KG2-M9173-00
LOCK NUT
2
36
90990-26J022
BEARING
2
combined deep groove angular ball bearings
37
92A08-04304
SCREW, SET
4
38
$NK-3N
NYLON CLIP
2
39
91312-05012
BOLT,HEX.SOCKET HEAD
2
40
91312-05016
BOLT,HEX.SOCKET HEAD
24
41
91312-06016
BOLT,HEX.SOCKET HEAD
16
42
91312-06018
BOLT,HEX.SOCKET HEAD
8
43
91312-06020
BOLT,HEX.SOCKET HEAD
8
44
91312-06035
BOLT,HEX.SOCKET HEAD
8
45
97602-04308
SCREW,PAN HEAD W/W
2

4
6
1
2
5
6
11
18
13
8
16
14
4
6
17
1
2
5
6
9
17
15
10
12
17
6
11
5
2
13
1
3
18
16
14
17
17
7
10
9
17
6
5
2
12
15
1
3
17
7
17
4
6
1
2
5
6
11
18
13
8
16
14
4
6
17
1
2
5
6
9
17
15
10
12
17
6
11
5
2
13
1
3
18
16
14
17
17
7
10
9
17
6
5
2
12
15
1
3
17
7
17
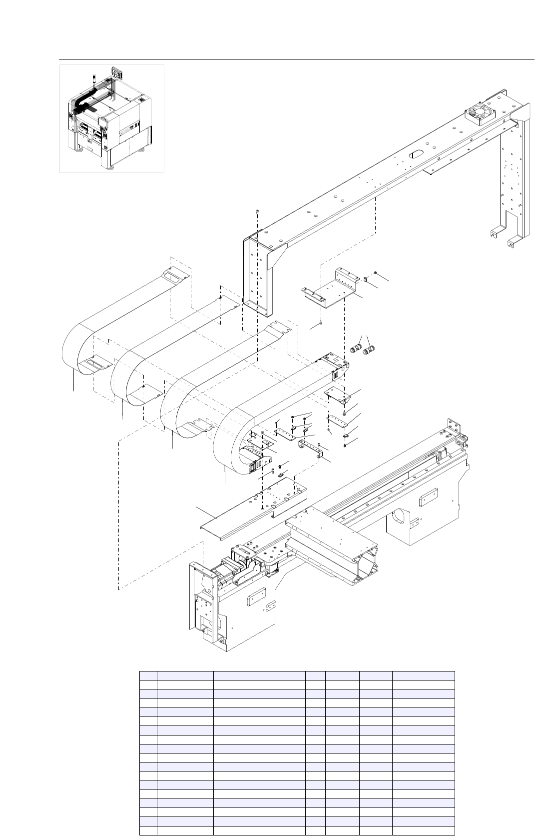
Y-axis Gantry
Axis Section
KMG-1705
4-7
NO
Parts_No.
Parts_Name
Q'ty
Remarks
Compati
Revision_No._date
1
KV7-M2651-00
DAMPER, STOPPER
4
2
KHW-M2654-00
PLATE,DAMPER
4
3
KMG-M2656-00
BRKT.,DAMPER F
2
4
KMG-M2659-00
BRKT.,DAMPER R
2
see page "4-5 : Y-axis Overview".
5
90990-41J180
COLLAR
8
6
91312-04008
BOLT,HEX.SOCKET HEAD
12
7
91312-05010
BOLT,HEX.SOCKET HEAD
4
8
KMG-M2676-00
GUIDE SET,Y AXIS
1
9
90990-01J030
BOLT,HEX.SOCKET HEAD
36
with pre-coat to prevent loosening of bolt-threads
10
KMG-M26B1-00
COVER,TOP
2
11
KMG-M26B4-00
COVER,BALL SCREW 2
2
12
KMG-M26B6-00
BRKT.,COVER 1
2
13
KMG-M26B7-00
BRKT.,COVER 2
2
see page "4-5 : Y-axis Overview".
14
KHY-M26C2-01
COVER1,BALL SCREW
2
15
KHY-M26C5-00
SHAFT,COVER
6
16
91312-04006
BOLT,HEX.SOCKET HEAD
8
17
91312-05006
BOLT,HEX.SOCKET HEAD
28
18
91312-06008
BOLT,HEX.SOCKET HEAD
4

4
16
15
10
1
11
2
5
6
17
12
10
15
9
3
14
15
10
10
6
8
11
7
13
16
1
15
4
16
15
10
1
11
2
5
6
17
12
10
15
9
3
14
15
10
10
6
8
11
7
13
16
1
15
Y-axis Duct
Axis Section
KMG-1705
4-8
NO
Parts_No.
Parts_Name
Q'ty
Remarks
Compati
Revision_No._date
1
KV7-M2266-00
PLATE, NUT
2
2
KMG-M260B-00
TAPE,Y DUCT 1
1
3
KMG-M260C-00
TAPE,Y DUCT 2
1
4
KMG-M260D-00
TAPE,Y DUCT 3
1
5
KMG-M2657-00
STAY,HNS.
1
6
KHY-M2669-00
BRACKET,HARNESS
2
7
KMG-M2678-00
DUCT,CABLE
1
8
KMG-M2694-00
BRKT.,Y DUCT UPPER
1
9
KMG-M2695-00
BRKT.,Y DUCT LOWER
1
10
$NK-3N
NYLON CLIP
25
11
90990-01J032
BOLT,HEX.SOCKET HEAD
8
12
91312-04006
BOLT,HEX.SOCKET HEAD
2
13
91312-04010
BOLT,HEX.SOCKET HEAD
6
14
91312-05012
BOLT,HEX.SOCKET HEAD
5
15
97602-04308
SCREW,PAN HEAD W/W
25
16
98902-03005
SCREW, BINDING HEAD
4
17
$AUS10
JOINT
2