1OM-1505-004_w - 第202页
1OM-1505 6. PCB V acuum Jig (PCB Width W "250<=W<=460") : Chap.6 6-19 6.3 V ariant Drawing for the Component Section (P/N 1 1-1). b b 0.03 A A 0.03 4-C1 Fine Chamfering (Fringe) 2-C1 2-C1 Q- F 6 F 9.5 Cou…

1OM-1505
6-18
6. PCB Vacuum Jig (PCB Width W "250<=W<=460") : Chap.6
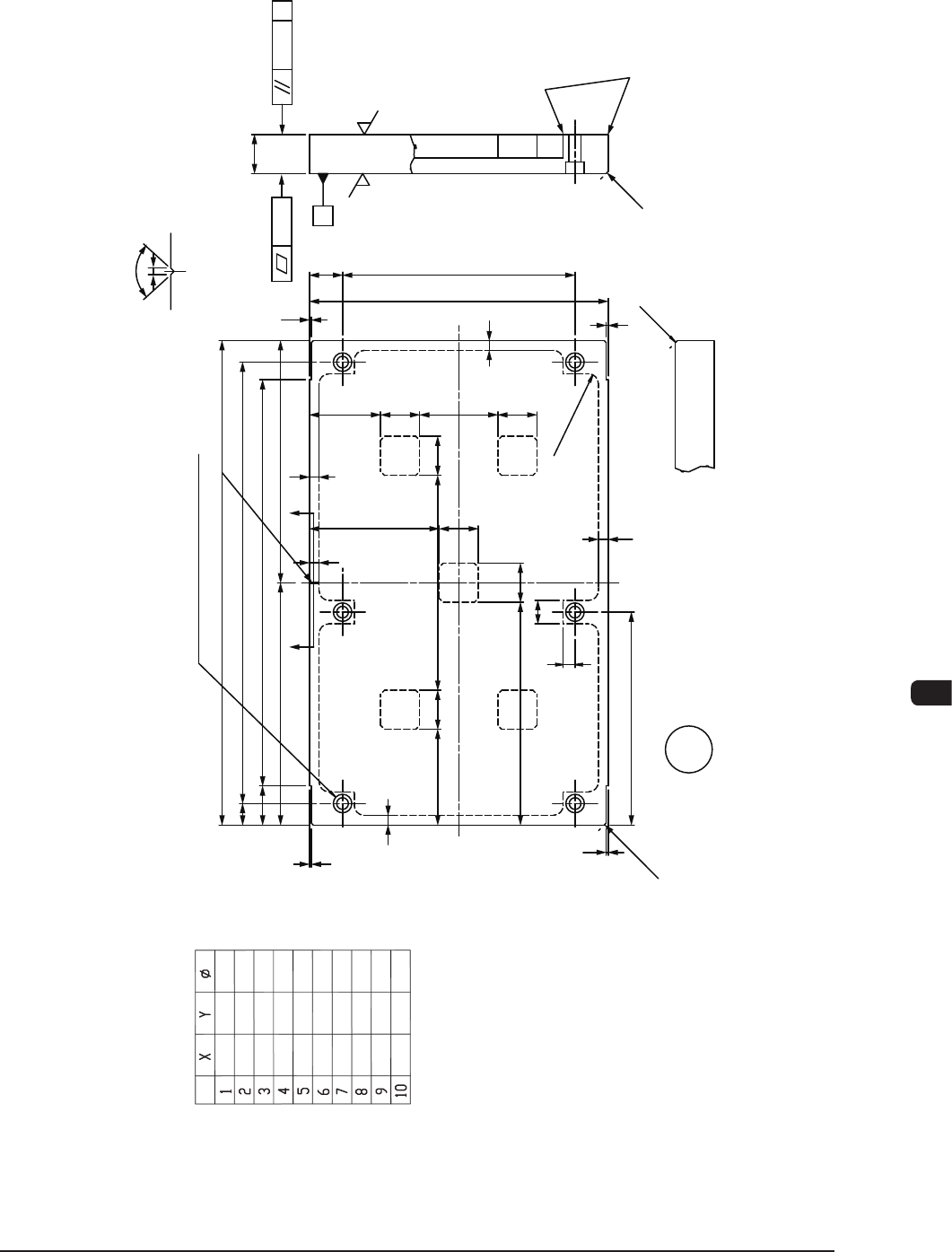
6.2 Assembly Diagram
Magnets HXU13 (MISUMI)
X4
4-M4L15
*
4 4 4
1.6
R
The two-dot chain line shows the state that the PCB is positioned.
11-4
11-2
11-1
11-3
S1
Q-M5L35
( )
4
CD
E
L/2-2
20
K
U
Z
20
20 N
20M20
9
1
8 18 18
17P
W-7
W
9
8±0.05
55±0.03
30
TT
1
H J 20
8.5
6.5
6.5
5
9
9
11
L/2-2
F
R G
120±0.03S
TX
L-4
L
A
Notes : (a) The part with the P/N S-1 is a part to be purchased.
(b) After assembling each component, process the R-surface so that
the * marked dimensions are met.
(c) The part with the P/N 21-4 and 21-5 are attached after
the processing of R-surface.
(d) The part No. 21-5 is not used for model PXH-1, TPM-100 series,
TPM-200 or TPM-5000.
F12
21-5
Positioning Pin (2 locations) Bonding with LOCTITE
21-4
2-C0.5
2-C0.5
F3.9g6
F3.6
0
-0.1
Material : SUS304
Processing : None
Material : SUS304
Processing : None
12
12
Note d
F1F13
1103-001

1OM-1505
6. PCB Vacuum Jig (PCB Width W "250<=W<=460") : Chap.6
6-19
6.3 Variant Drawing for the Component Section (P/N 11-1).
b
b
0.03 A
A
0.03
4-C1
Fine Chamfering
(Fringe)
2-C1
2-C1
Q-F6 F9.5 Counterbore Depth 6
Engraved mark for center position
L-4
C
G
1
5
5
1
N20
5
20M20
6
1
1
17
W-7
P
1
L/2-2
5
H 20
K
U
20
5
12
20
R(Optional)
J
L/2-2
20±0.1
11-1
Material : A5052
Processing : None
1.6
1.6
View b-b
90°
1
Suction Hole Coordinates and Diameter
Make appropriate suction holes
based on the PCB shape.
E
R
F1F14
1103-002

1OM-1505
6-20
6. PCB Vacuum Jig (PCB Width W "250<=W<=460") : Chap.6
6.4 Variant Drawing for the Component Section (P/N 11-2).
0.03 A
A
0.03
11-2
Material : A5052
Processing : None
2-C1
Fine Chamfering (Fringe)
2-C1
Q-F6
F12
1.6
1.6
L-4 10±0.1
L/2-2
U
G
17
17
1
1
P
W-7
1
1
R
CE
F1F15
1103-002