KE-3010_KE-3020V_KE-3020VR-Rev06.pdf - 第23页
- - REF.NO NOTE PARTNO DESCRIPTION Qty 1 401-14537 DUCTASSY 1 2 400-77404 DUCT30_ 60_200 (8) 3 SL-4040891-SC SCREWM4L=8 (16) 4 400-32368 DUCT40_ 60_125 (3) 5 SL-4040891-SC SCREWM4L=8 (6) 6 400-9…

- -
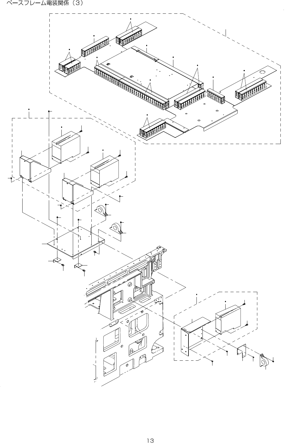
7. BASEFRAMEELECTRICAPPARATUSCOMPONENTS(3)
3 0
1 8 1 9
2 4 2 5
3 2
3 3
1 7
1 6
3 1
2 9
2 9
2 6 2 7
2 8
1 6
1 7
1 6
1 1
1 5
1 4
1 0
1 1
1 3
2 3
2 3
2 0 2 1
2 2
2 3
2 3
2 0 2 1
2 2
1 7
1 5
1 4
1 3
1 1
1 0
1 2
1
8 9
8 9
6 7
6 7
2 3
2 3
2 3
2 3
2 3
4 5
4 5

- -
REF.NO NOTE PARTNO DESCRIPTION Qty
1 401-14537 DUCTASSY 1
2 400-77404 DUCT30_60_200 (8)
3 SL-4040891-SC SCREWM4L=8 (16)
4 400-32368 DUCT40_60_125 (3)
5 SL-4040891-SC SCREWM4L=8 (6)
6 400-94478 DUCT30_60_450 (3)
7 SL-4040891-SC SCREWM4L=8 (6)
8 400-94479 DUCT30_60_200 (4)
9 SL-4040891-SC SCREWM4L=8 (8)
10 400-94471 BASESUPPORT 2
11 SL-6061492-TN BOLT 4
12 401-14026 DRIVERBASE 1
13 SL-6040892-TN BOLT 2
14 SD-0640246-SP HINGESCREWD=6.35H=2.4 4
15 SL-6040892-TN BOLT 2
16
#01
HN-0015500-00 CORE 3
17
#01
SL-4041091-SC SCREWM4L=10 6
18
#02
401-14752 YDRIVERUNIT 1
19
#03
401-35627 Y_DRIVER_UNIT 1
20
#02
400-44539 SERVOAMP2000W (2)
21
#03
401-29654 YAXISDRIVER (2)
22 401-14038 DRIVERBRACKET (2)
23 SL-4051691-SC SCREWM5L=16 (6)
24
#02
401-14753 XDRIVERUNIT 1
25
#03
401-35628 X_DRIVER_UNIT 1
26
#02
400-44538 SERVOAMP750W (1)
27
#03
401-29652 XAXISDRIVER (1)
28 401-14040 XMOTORDRVPLATE (1)
29 SL-4051691-SC SCREWM5L=16 (3)
30
#01
401-08654 XMOTORDRVCOREPLATE 1
31
#01
SL-6040892-TN SCREWM4L=8 2
32 SL-6040892-TN SCREWM4L=8 2
33 SD-0640246-SP SHOULDERSCREWD=6.35H=2.4 2

- -
8. BASEFRAMEELECTRICAPPARATUSCOMPONENTS(4)
8
1 2
3
1 3
1 6
1 5
1 4
4 5
1 2
1 1
1 0
6 7
9
1 7 1 8
3 9
3 1
4 0 4 1
2 2 2 3
2 1
2 6
4 9
4 6 4 8
4 6 4 7
2 0
4 2 4 3
3 6 3 7
3 5
4 4
3 3 3 4
2 9 3 0
2 8
2 7
2 4 2 5
3 1
4 5
4 5
3 8
3 8
3 2
1 9