RX-7_RX-7R-Rev08 - 第92页
A-74 A22-2 【 RX-7R 】デュアル搬送レーン 1 【 RX-7R 】 Dual Conveyor lane - 1 38 41 41 38 37 37 37 37 36 35 34 34 32 33 33 32 31 31 25 13 9 25 25 25 25 25 25 25 25 57 57 57 57 28 28 27 27 22 21 20 19 19 19 18 17 17 17 17 16 16 16 16 …

A-73
A22-1
【RX-7】搬送レーン 1
【RX-7】Conveyor lane - 1
イラスト番号
Ref.No.
品番
Part Number
Description
品名
個数
Q'ty
備考
Remarks
1 EZ4-454-322-01 RETAINER (SLIDE LOWER L) キバン オサエ (スライド シタ L) 1
2 EZ4-454-519-01 SOLENOID (SBP5), BALL ボ-ル プランジヤ (SBP5) 2
3 EZ4-454-323-01 RETAINER (SLIDE UPPER L),BOARD キバン オサエ (スライド ウエ L) 1
4 EZ4-454-319-01 PIN, STEP ダンツキ ピン 6
5 EZ4-454-322-11 RETAINER (SLIDE LOWER R) キバン オサエ (スライド シタ R) 1
6 EZ4-454-519-01 SOLENOID (SBP5), BALL ボ-ル プランジヤ (SBP5) 2
7 EZ4-454-323-11 RETAINER (SLIDE UPPER R),BOARD キバン オサエ (スライド ウエ R) 1
8 EZ4-454-319-01 PIN, STEP ダンツキ ピン 6
9 EZ4-454-511-01 PULLEY (P30-2GT) (A) プ-リ (P30-2GT) A 6
10 EZ4-453-832-01 BEARING (6804ZZ) ベアリング (6804ZZ) 2
11 EZ4-453-825-01 PULLEY (P1110-012-1) (D) タイミング プ-リ (P1110-012-1) D 2
12 EZ2-679-468-01 BOLT (CBSTS3-10) ゴク テイトウ ボルト (CBSTS3-10) 8
13 EZ4-454-327-01 HOUSING, NUT ナツト ハウジング 2
14 EZ2-022-680-11 RING, C TYPE RETAINING (STWS*) C ガタ トメワ (STWS20) 2
15 EZ4-718-724-05 NUT(1TYPE),HEXAGON(M4X0.7 SUS) ロツカク ナツト (1 シユ) (M4X0.7 SUS) 4
16 EZ4-454-362-02 BRACKET (2R), REINFORCEMENT ホキヨウ ブラケツト (2R) 1
17 EZ4-454-504-01 IDLER (AS-5A39A) (A) アイドラ- (AS-5A39A) A 4
18 EZ4-454-505-01 IDLER (AS-5A40) (B) アイドラ- (AS-5A40) B 2
19 EZ4-454-501-01 GUIDE (LWLG9C1R52BS1EB09) ガイド (LWLG9C1R52BS1EB09) 4
20 EZ4-454-512-01 PULLEY (P30-2GTX2) (B) プ-リ (P30-2GTX2) B 2
21 EZ4-453-829-01 BELT (162-2GT-3), TIMING タイミング ベルト (162-2GT-3) 2
22 EZ2-915-937-11 BOLT (M4 SUS), SOCKET BUTTON ロツカク アナツキ ボタン ボルト (M4 SUS) 4
23 EZ4-455-706-01 COVER HARNESS カバ-ハ-ネス 2
24 EZ4-701-529-01 TIE MOUNT (MB1) タイマウント (MB1) 8
25 EZ4-454-500-01 CYLINDER (CDUJB8-11-DCP6468P) シリンダ (CDUJB8-11-DCP6468P) 4
26 EZ4-454-324-01 JOINT, CYLINDER シリンダ ジヨイント 4
27 EZ4-454-328-01 STOPPER, CLAMP クランプ ストツパ 4
28 EZ4-447-052-11 UNION (KQ2H02-M3G), HALF ハ-フ ユニオン (KQ2H02-M3G) 8
29 EZ4-454-360-01 PLATE (0.5), CLAMP クランプ プレ-ト (0.5) 2
30 EZ4-454-361-01 JOINT (L), CLAMP クランプ ジヨイント (L) 2
31 EZ4-454-361-11 JOINT (R), CLAMP クランプ ジヨイント (R) 2
32 EZ4-459-595-01 BELT (1110-2GT-2), TIMING タイミング ベルト (1110-2GT-2) 2
33 EZ4-706-151-11 CLAMP (KR5G5) ハイセンドメ (KR5G5) 1
34 EZ4-454-326-01 BRACKET (C), SENSOR センサ ブラケツト (C) 1
35 EZ1-492-207-11 SENSOR, FIBER (FT-AL05) フアイバ センサ (FT-AL05) 3
36 EZ4-454-325-01 BRACKET (LR), SENSOR センサ ブラケツト (LR) 1
37 EZ3-282-481-31 BOLT (CBSA3-6) ゴク テイトウ ボルト (CBSA3-6) 6
38 EZ7-683-402-04 BOLT,HEXAGON SOCKET 3X5 6 カクアナツキボルト 3X5 28
39 EZ7-683-421-04 BOLT HEXAGON SOCKET 4X12 6 カクアナツキボルト(C4X12) 16
40 EZ7-683-403-04 BOLT,HEXAGON SOCKET 3X6 6 カクアナツキボルト 3X6 16
41 EZ7-683-404-04 BOLT,HEXAGON SOCKET 3X8 6 カクアナツキボルト 3X8 8
42 EZ7-682-248-09 SCREW +K 3X8 +K 3X8 8
43 EZ4-702-261-02 BOLT, HEXAGON SOCKET (M3X6) ロツカク アナツキ サラ ボルト (M3X6) 6
44 EZ2-595-270-01 HOLDER WIRE ホルダーワイヤー 6
45 EZ7-682-247-09 SCREW +K 3X6 SCREW +K 3X6 8
46 EZ4-454-762-01 KEY (K03008), PARALLEL ヘイコウ キ- (K03008) 2
47 EZ1-492-216-12 SENSOR ASSY センサ ASSY (クランプ 1) 1
48 EZ1-492-216-22 SENSOR ASSY センサ ASSY (クランプ 2) 1

A-74
A22-2
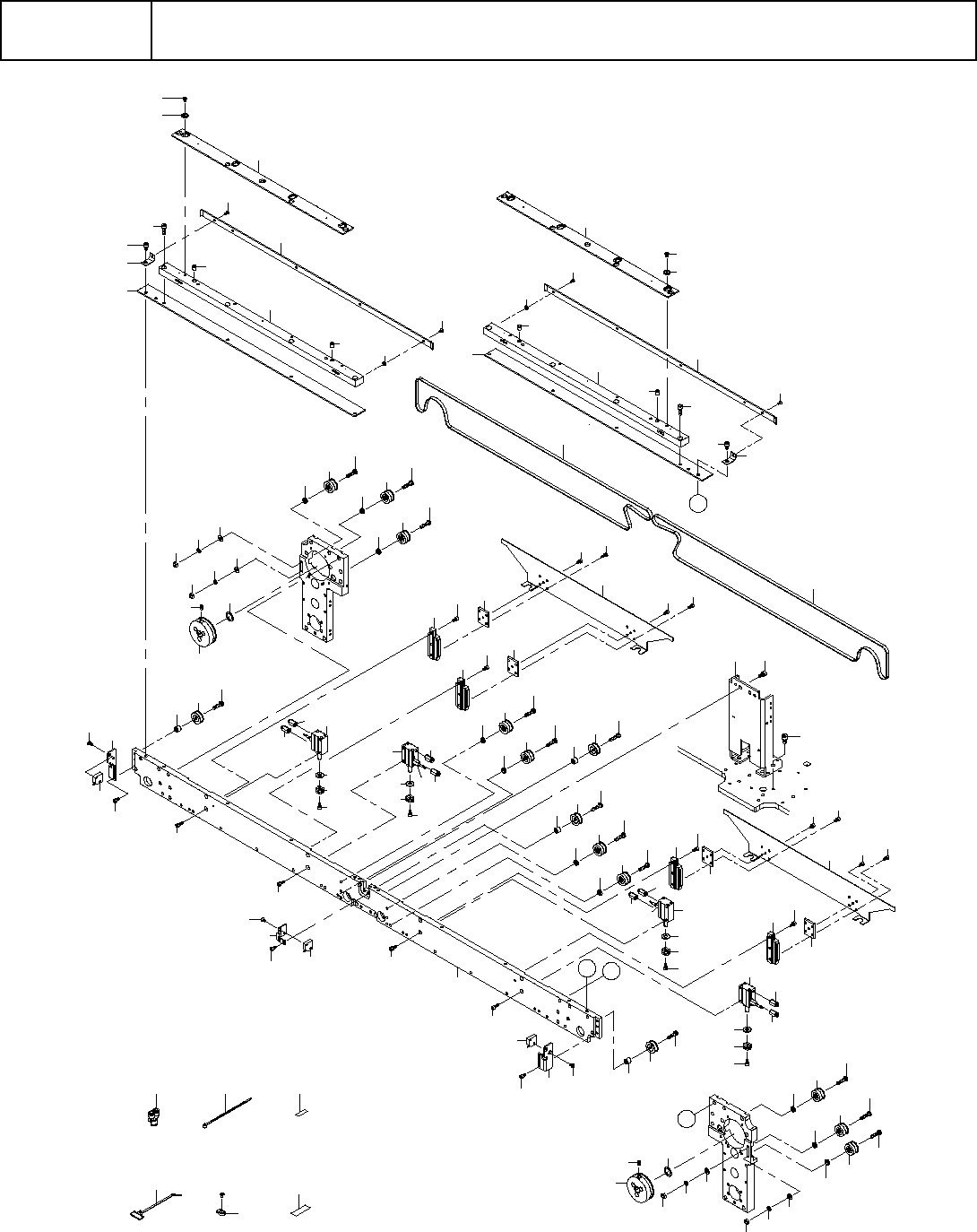
【RX-7R】デュアル搬送レーン 1
【RX-7R】Dual Conveyor lane - 1
38
41
41
38
37
37
37
37
36
35
34
34
32
33
33
32
31
31
25
13
9
25
25
25
25
25
25
25
25
57
57
57
57
28
28
27
27
22
2120
19
19
19
18
17
17
17
17
16
16
16
16
14
14
13
12
11
10
15
15
15
9
15
8
8
7
6
6
6
6
6
6
3
2
1
1
1
39
40
40
39
40
39
40
39
40
39
39
40
39
40
40
39
39
40
42
42
43
42
42
43
43
43
43
43
43
45
44
46
46
44
45
47
47
47
9
13
25
38
41
43
41
38
43
48
48
49
49
50
50
51
51
52
53
54
55
56
30
30
29
25
24
46
44
45
A
A
45
44
46
40
39
43
47
B
B
6
6
9
13
25
55
24
25
25
24
25
24

A-75
A22-2
【RX-7R】デュアル搬送レーン 1
【RX-7R】Dual Conveyor lane - 1
イラスト番号
Ref.No.
品番
Part Number
Description
品名
個数
Q'ty
備考
Remarks
1 EZ1-492-207-11 SENSOR FIBER (FT-AL05) フアイバ センサ (FT-AL05) 3
2 EZ1-492-216-12 SENSOR ASSY センサ ASSY (クランプ 1) 1
3 EZ1-492-216-22 SENSOR ASSY センサ ASSY (クランプ 2) 1
4 EZ1-492-216-32 SENSOR ASSY センサ ASSY (クランプ 3) 1
5 EZ1-492-216-42 SENSOR ASSY センサ ASSY (クランプ 4) 1
6 EZ4-447-052-11 UNION (KQ2H02-M3G) HALF
ハ-フ ユニオン (KQ2H02-M3G)
8
7 402-00902 CONVEYOR RAIL_LANE1 コンベアーレール_レーン 1 1
8 402-00610 COLLAR(M3)_STEP ダンツキカラー(M3) 8
9 402-00912 JOINT(A)CYLINDER シリンダージョイント(A) 4
10 402-00985 SENSOR BRACKET(1) センサーブラケット(1) 1
11 402-00986 SENSOR BRACKET(2) センサーブラケット(2) 1
12 402-03788 SENSOR BRACKET(C2)
センサーブラケット(C2)
1
13 EZ4-454-328-01 STOPPER CLAMP クランプ ストツパ 4
14 402-00911 CLAMP BRACKET クランプブラケット 2
15 EZ4-454-500-01 CYLINDER (CDUJB8-11-DCP6468P) シリンダ (CDUJB8-11-DCP6468P) 4
16 EZ4-454-501-01 GUIDE (LWLG9C1R52BS1EB09) ガイド (LWLG9C1R52BS1EB09) 4
17 EZ4-454-519-01 SOLENOID (SBP5) BALL ボ-ル プランジヤ (SBP5) 4
18 EZ4-455-733-01 WYE (KJU02-00) UNION
ユニオン ワイ (KJU02-00)
4
19 EZ4-702-261-02 BOLT HEXAGON SOCKET (M3X6) ロツカク アナツキ サラ ボルト (M3X6) 6
20 EZ4-716-434-11 TIE INSULOCK(AB100 BLACK) インシユロツク タイ(AB100 クロ) 6
21 EZ4-722-956-01 LABEL(SILVER) BLANK ブランク ラベル ギン(TTC82YS-10) 2
22 EZ7-630-003-55 TUBE (TU0212B-20) 2MMX20M BLK チユーブ(TU0212B-20) 2MMX20M BLK 7.08
23 EZ7-682-247-09 SCREW +K 3X6 SCREW +K 3X6 6
24 EZ7-683-401-04 BOLT HEXAGON SOCKET 3X4
6 カクアナツキボルト 3X4
16
25 EZ7-683-403-04 BOLT HEXAGON SOCKET 3X6 6 カクアナツキボルト 3X6 34
26 EZ7-683-404-04 BOLT HEXAGON SOCKET 3X8 6 カクアナツキボルト 3X8 8
27 EZ7-683-421-04 BOLT HEXAGON SOCKET 4X12 6 カクアナツキボルト(C4X12) 8
28 402-00906 GUIDE RAIL_PC BOARD キバンガイドレール 2
29 SM-6040802-TN SCREW M4X0.7 L=8 ロッカクアナ ボルト M4X0.7 L=8 2
30 SM-6040602-TN SCREW
ロッカクアナ ボルト
2
31 400-00863 CONVEYOR_BELT_S コンベアベルト S 2
32 400-00850 DRIVE_PULLEY_F ドライブプーリ F 2
33 SM-8040602-TP SCREW M4X0.7 L=6 トメネジ 4
34 402-00989 PLATE_BELT SUPPORT ベルトサポートプレート 2
35 402-00990 PLATE_PC BOARD GUIDE(1) キバンガイドプレート(1) 1
36 402-00991 PLATE_PC BOARD GUIDE(2)
キバンガイドプレート(2)
1
37 402-03944 SCREW M2.5 L=6 サラネジ M2.5 L=6 10
38 E2111-715-0A0 CONVEYOR PULLEY ASM. ハンソウプーリ(クミ) 4
39 E2089-721-0A0 CONVEYOR PULLEY B ASM. ハンソウプーリ B クミ 10
40 402-00909 COLLAR(1)PULLEY プーリーカラー(1) 10
41 402-00910 COLLAR(2)PULLEY プーリーカラー(2) 4
42 SM-4042001-SC SCREW M4X0.7 L=20
ナベコネジ M4X0.7 L=20
4
43 SM-4041601-SC SCREW M4X0.7 L=16 ナベコネジ M4X0.7 L=16 10
44 NM-6040001-SC NUT M4X0.7 TYPE1 六角 ナット M4X×0.7 1 種 4
45 WP-0430801-SC WASHER M4 ヒラザガネ M4 4
46 WS-0410002-KN SPRING WASHER M4 バネザガネ M4 4
47 402-02038 SPACER GUIDE ガイドスペーサー 4
48 402-02219 WASHER_PC BOARD GUIDE
キバンガイドヨウワッシャー
8
49 402-00992 SUPPORT_PC BOARD GUIDE キバンガイドサポート 2
50 402-01297 SPACER_PULLEY プーリースペーサー 2