QEJM4A-E-MPA-27 - 第275页
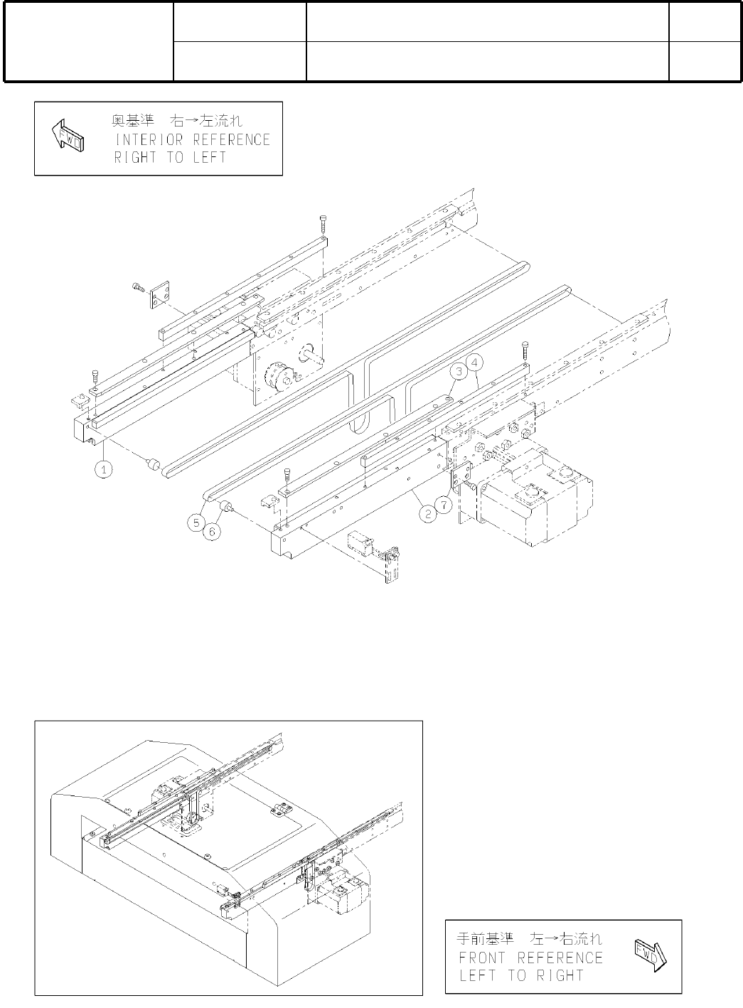
Ref No. Remarks R 1 Q'ty 25 セ ラ ミック 基板対応 F ; R→L / R ; L→R Ceramic PCB Capable(FR Ref;R->L/INR Ref;L->R) イラスト No. Part No. 品 名 品番 数量 R 2 パー ツ リ スト Kit No. キ ット 品番 Kit Name キ ット 名称 KXFX036TA00 Part Name 備 考 セクシ…

25
セラミック
基板対応
F
;
R→L
/
R
;
L→R
Ceramic PCB Capable(FR Ref;R->L/INR Ref;L->R)
パーツレイアウト
Kit No.
キット
品番
Kit Name
キット
名称
KXFX036TA00
セクション
No
.
PARTS LAYOUT
Section No.
-
-
S155
( KKXFX036TA00-02 )

Ref
No.
Remarks
R
1
Q'ty
25
セラミック
基板対応
F
;
R→L
/
R
;
L→R
Ceramic PCB Capable(FR Ref;R->L/INR Ref;L->R)
イラスト
No.
Part No.
品 名品番 数量
R
2
パーツリスト
Kit No.
キット
品番
Kit Name
キット名称
KXFX036TA00
Part Name
備 考
セクション
No
.
PARTS LIST
Section No.
R
3
CLAMPER
2
1 N210071236AA
CLAMPER
2
2 N210071237AA
CLAMPER
2
3 KXFB02UMA02
GUIDE
2
4 N210071238AA
S156
-
-
( KKXFX036TA00-02 )

26-A
上流延長
コンベア
:
305
mm
Upstream Extension Conveyor:305mm
パーツレイアウト
Kit No.
キット
品番
Kit Name
キット
名称
N610003226AA
セクション
No
.
PARTS LAYOUT
Section No.
-
-
S157
( KN610003226AA-03-1 )