QEJM4A-E-MPA-27 - 第285页
Ref No. Remarks R 1 Q'ty 27-A 下流延長 コ ン ベア : 305 mm Downstream Extension Conveyor:305mm イラスト No. Part No. 品 名 品番 数量 R 2 パー ツ リ スト Kit No. キ ット 品番 Kit Name キ ット 名称 N610003227AA Part Name 備 考 セクション No . PARTS LIST Sect…

27-A
下流延長
コンベア
:
305
mm
Downstream Extension Conveyor:305mm
パーツレイアウト
Kit No.
キット
品番
Kit Name
キット
名称
N610003227AA
セクション
No
.
PARTS LAYOUT
Section No.
-
-
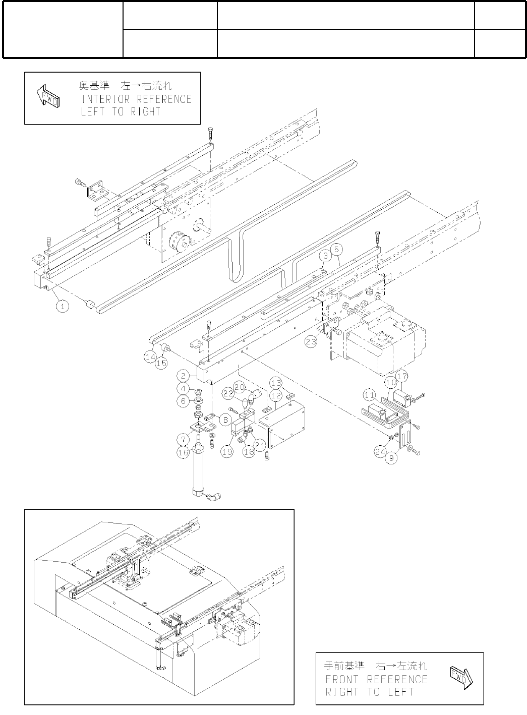
S165
( KN610003227AA-03-1 )

Ref
No.
Remarks
R
1
Q'ty
27-A
下流延長
コンベア
:
305
mm
Downstream Extension Conveyor:305mm
イラスト
No.
Part No.
品 名品番 数量
R
2
パーツリスト
Kit No.
キット
品番
Kit Name
キット名称
N610003227AA
Part Name
備 考
セクション
No
.
PARTS LIST
Section No.
R
3
FRAME
1
1 N210001589AC
FRAME
1
2 N210001590AC
GUIDE
2
3 N210001591AB
NUT
1
4 N210020696AA
BEAM
2
5 KXFB02KPB00
STOPPER
1
6 N210020697AA
BRACKET
1
7 KXFB02KWB00
NUT-PLATE
1
8 KXFB01JGA00
BRACKET
1
9 KXFB07SWA00
BRACKET
1
10 KXFB02RDA00
NUT-PLATE
1
11 KXFB02RMA00
BRACKET
1
12 KXFB02KUA00
NUT
2
13 KXFB02KVA00
BELT
2
14 N510004586AA XVT-952 8.5X1535E
PULLEY
2
15 N510010794AA MB054000
CYLINDER
1
16 KXF0DWWEA00 CJ2B16-35S
SENSOR
2
17 KXF0DWVSA00 HPB-D1(DA KXF0DWVSA00)
JOINT
2
18 KXF02BTAA00 KQL04-M5
VALVE
1
19 KXF0CVNAA00 VQD1121-5MO-M5
JOINT
1
20 KXF02C3AA00 KQL06-M5
PLUG
1
21 KXF02TGAA00 M-5P
SILENCER
1
22 KXF00WCAA00 AN120-M5
PLATE
2
23 N210024738AA
SPACER
2
24 KXF08UWAA00 CU-402
S166
-
-
( KN610003227AA-03-1 )

27-B
下流延長
コンベア
:
305
mm
Downstream Extension Conveyor:305mm
パーツレイアウト
Kit No.
キット
品番
Kit Name
キット
名称
N610003227AA
セクション
No
.
PARTS LAYOUT
Section No.
-
-
S167
( KN610003227AA-03-2 )