QEJM4A-E-MPA-27 - 第35页
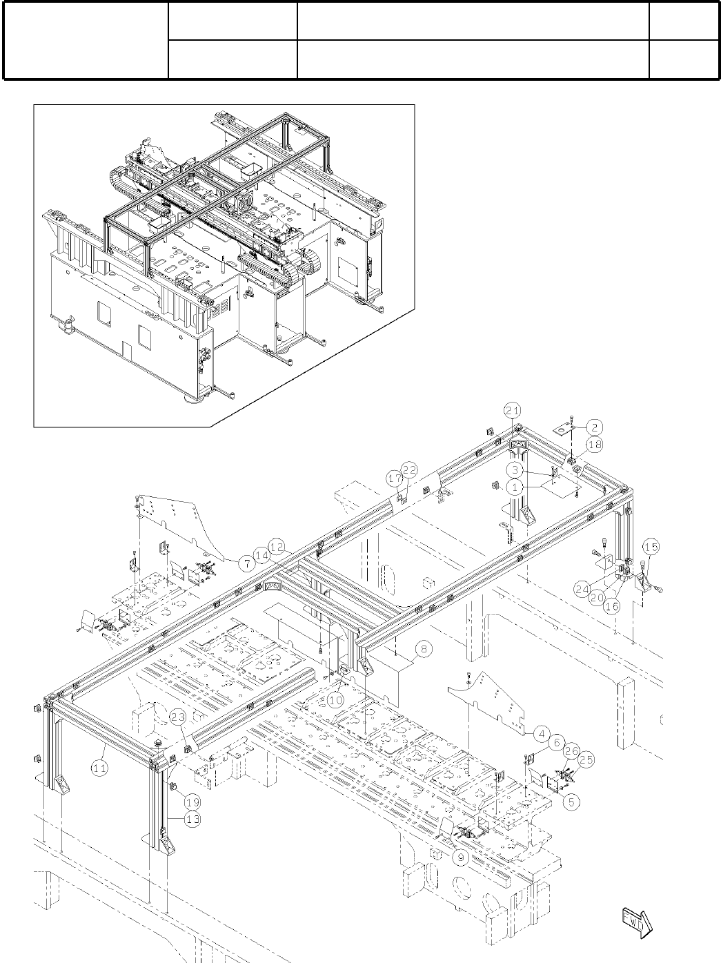
Ref No. Remarks R 1 Q't y 1-H 本体部 Main Body イラスト No. Part No. 品 名 品番 数量 R 2 パーツリスト Kit No . キット品 番 Kit Name キット名称 N610001530AA Part N ame 備 考 セクションNo. PARTS LIST Section No. R 3 BRACKET 1 1 N210028681AA BOTTLE 1 2 K…

1-H
本体部
Main Body
パーツレイアウト
Kit No.
キット品
番
Kit Name
キット名称
N610001530AA
セクションNo.
PARTS LAYOUT
Section No.
M15

Ref
No.
Remarks
R
1
Q't
y
1-H
本体部
Main Body
イラスト
No.
Part No.
品 名品番 数量
R
2
パーツリスト
Kit No.
キット品
番
Kit Name
キット名称
N610001530AA
Part Name
備 考
セクションNo.
PARTS LIST
Section No.
R
3
BRACKET
1
1 N210028681AA
BOTTLE
1
2 KXF07M8AA00 5-010-03
JOINT
1
3 KXF07G7AA00 No.392 LC-3/8
NIPPLE
2
4 KXF0568AA00 Nipple 3/8
VALVE
1
5 N510036414AA 600RP-LL 3/8
HOSE
1
6 N510002541AA OUA8X12-5M-03B
PRESSURE-SW
1
7 KXFX03EHA00
MR-UNIT
1
8 KXFX061MA00
VALVE
1
9 KXFX061NA00
S
SW
1
10 KXF0DWVZA00 ISE30-01-25-M-X114
JOINT
1
11 KXF0CS5AA00 KQE04-01
MR-UNIT
1
12 KXF0E4LKA00 AMR3100-03-R
JOINT
1
13 KXF02BPAA00 KQL04-01S
JOINT
1
14 KXF02CGAA00 KQL10-02S
PLATE
1
15 KXF0DU5AA00 VP500-2-2P
JOINT
1
16 KXF02BAAA00 KQH08-03S
SILENCER
1
17 KXF00WGAA00 AN303-03
NIPPLE
2
18 KXF0568AA00 Nipple 3/8
TEES
1
19 KXF054JAA00 Cheese 3/8
VALVE
1
20 KXF0DYX0A00 30-VP544-1D-A
M16

1-I
本体部
Main Body
パーツレイアウト
Kit No.
キット品
番
Kit Name
キット名称
N610001530AA
セクションNo.
PARTS LAYOUT
Section No.
M17