80S-15贴片机 - 第34页
2 Overview Diagr ams SIPLACE 80S/F/G Service Manual Edition 04/97 2 - 2

SIPLACE 80S/F/G Service Manual 2 Overview Diagrams
Edition 04/97
2 - 1
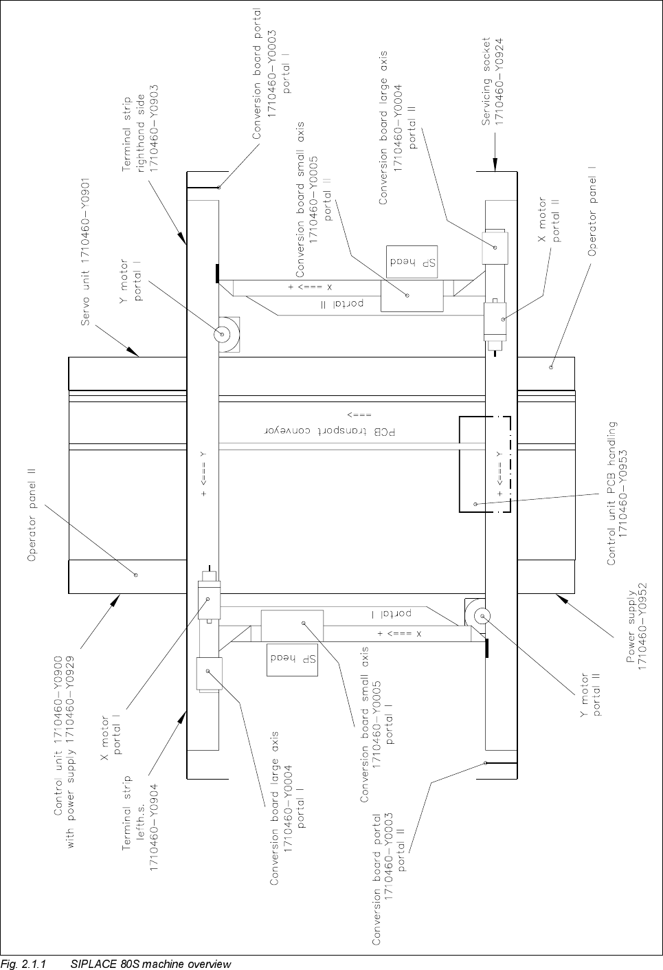
2YHUYLHZ'LDJUDPV
(OHFWULFDO6\VWHP6,3/$&(6
$EEUHYLDWLRQVXVHGLQWKHFLUFXLWGLDJUDPV
● FS Function status
● PS Product status
● DS Documentation status

2 Overview Diagrams SIPLACE 80S/F/G Service Manual
Edition 04/97
2 - 2

SIPLACE 80S/F/G Service Manual 2 Overview Diagrams
Edition 04/97
2 - 3