80S-15贴片机 - 第47页
SIPLACE 80S/F/G Service Manual 2 Overview Diagram s Edition 04/97 2 - 15

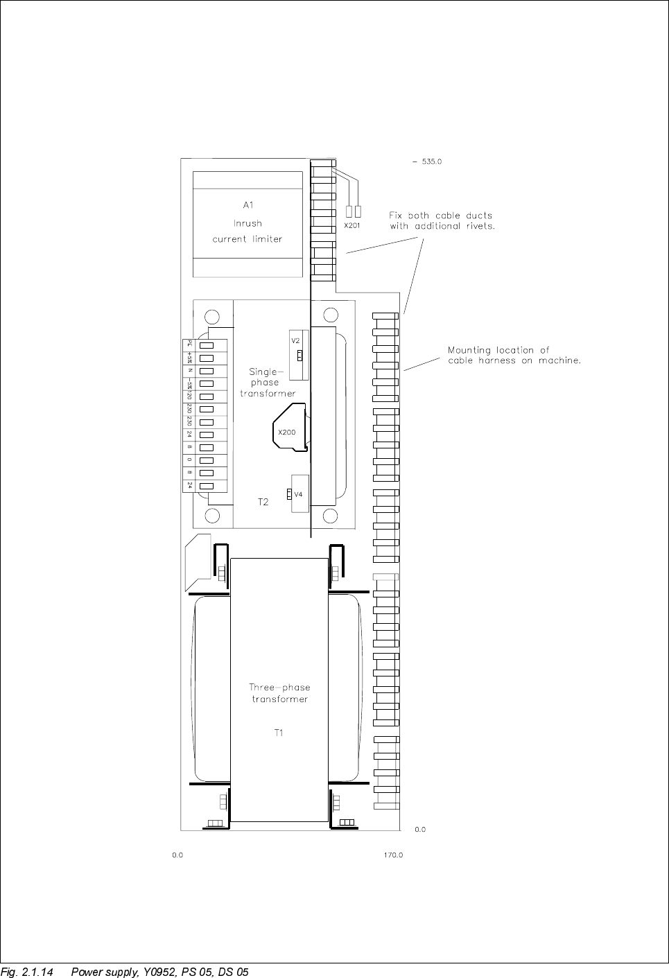
2 Overview Diagrams SIPLACE 80S/F/G Service Manual
Edition 04/97
2 - 14

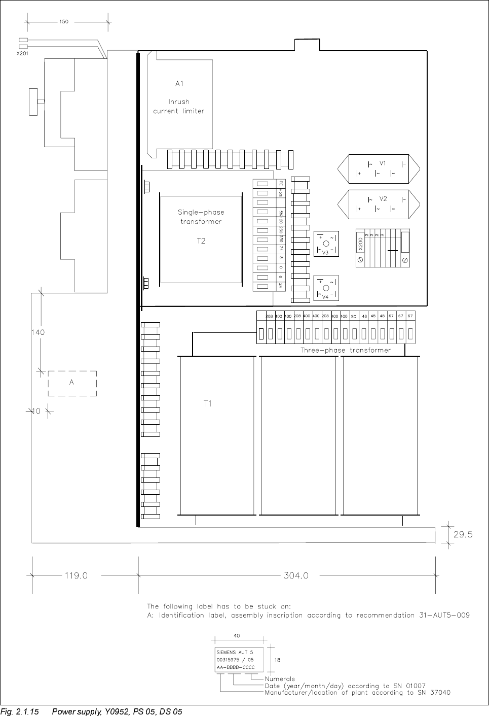
SIPLACE 80S/F/G Service Manual 2 Overview Diagrams
Edition 04/97
2 - 15

2 Overview Diagrams SIPLACE 80S/F/G Service Manual
Edition 04/97
2 - 16