80S-15贴片机 - 第59页
SIPLACE 80 S/F/G Service Manual 2 Overview Diagram s Edition 04/97 2 - 27 (OHFWULFDO6\V WHP6,3/$ &() 6,3/$ & (6GLDJUD PVZKLFKDOVRD SSO\WRWKH6, 3/$ &( ) 1 Power sup ply , Y 0952, PS 0 5,…
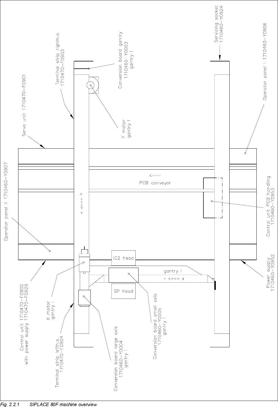
2 Overview Diagrams SIPLACE 80S/F/G Service Manual
Edition 04/97
2 - 26
SIPLACE 80 S/F/G Service Manual 2 Overview Diagrams
Edition 04/97
2 - 27
(OHFWULFDO6\VWHP6,3/$&()
6,3/$&(6GLDJUDPVZKLFKDOVRDSSO\WRWKH6,3/$&()
1 Power supply, Y0952, PS 05, DS 05 see Fig. 2.1.13, page 2 - 14
2 Power supply, Y0952, PS 05, DS 05 see Fig. 2.1.14, page 2 - 15
3 Power supply, Y0952, PS 05, DS 05 see Fig. 2.1.15, page 2 - 16
4 PCB handling control unit, connector pin assignment of half-bridge
board, Y0953, PS 02, DS 02
see Fig. 2.1.18, page 2 - 19
5 PCB handling control board, viewed from the front/back, Y0953, PS
02, DS 02
see Fig. 2.1.19, page 2 - 20
6 PCB handling control unit, assemblies overview, Y0953, PS 02, DS
02
see Fig. 2.1.20, page 2 - 21
7 Conversion board, gantry, Y0003, PS 04, DS 04 see Fig. 2.1.21, page 2 - 22
8 Conversion board, large axis, Y0004, PS 08, DS 08 see Fig. 2.1.22, page 2 - 23
9 Conversion board, small axis, Y0005, PS 10, DS 11 see Fig. 2.1.23, page 2 - 24
10 Conversion board, small axis, Y0005, PS 10, DS 11 see Fig. 2.1.24, page 2 - 25

2 Overview Diagrams SIPLACE 80 S/F/G Service Manual
Edition 04/97
2 - 28