80S-15贴片机 - 第66页
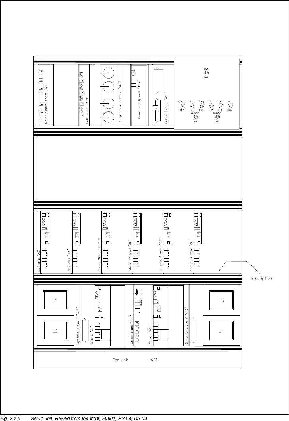
2 Overview Diagr ams SIPLACE 80 S/F/G Service Manual Edition 04/97 2 - 34

SIPLACE 80 S/F/G Service Manual 2 Overview Diagrams
Edition 04/97
2 - 33

2 Overview Diagrams SIPLACE 80 S/F/G Service Manual
Edition 04/97
2 - 34

SIPLACE 80 S/F/G Service Manual 2 Overview Diagrams
Edition 04/97
2 - 35