80S-15贴片机 - 第70页
2 Overview Diagr ams SIPLACE 80 S/F/G Service Manual Edition 04/97 2 - 38

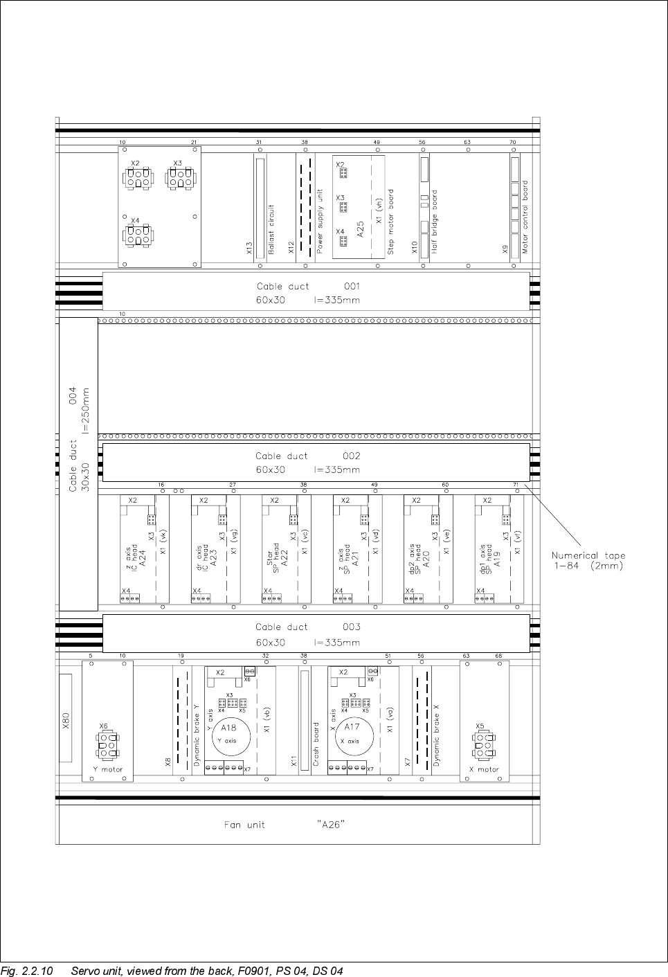
SIPLACE 80 S/F/G Service Manual 2 Overview Diagrams
Edition 04/97
2 - 37

2 Overview Diagrams SIPLACE 80 S/F/G Service Manual
Edition 04/97
2 - 38

SIPLACE 80 S/F/G Service Manual 2 Overview Diagrams
Edition 04/97
2 - 39