DECAN_S1_TRM(Ver1.3_CS20.11) - 第121页
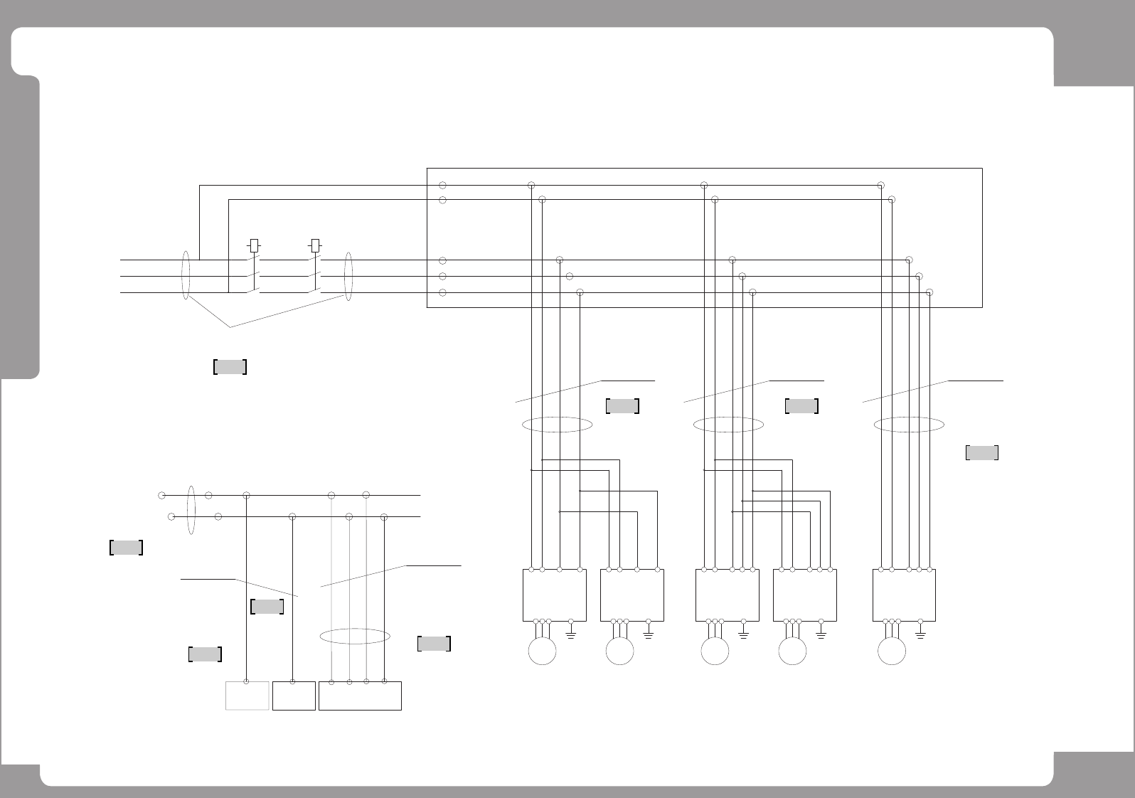
Page +$1:+$ 11 9 DECAN S1 Electric Power (5/8) NO. P ART NO. P ART NAME Q'TY Old No. Supply Supply L T Reference 1 AM03-027391B CABLE ASSY -D-S1_TB WIRE MODULE 1 2 AM03-026877B CABLE ASSY -PS1_TB_ DC24 1 3 AM03-0269…

Page
+$1:+$
118
DECAN
S1
Electric Power (5/8)
1
2
3
4
5
6 7
8
22L1
22L3
22L2
22T
22R
SM48_PW018_LIQI
0.75mm(BLK)
SM48_PW019 SM48_PW020
3P AC220V
22R
22S
22T
0.75mm(BLK) 0.75mm(BLK)
FROM CP2
2.5 mm (BLK)
2.5 mm (BLK)
2.5A(Max 19A)
AM03-014671A
AM03-006960A
AM03-006961B
D-S1_PW000_LT
AM03-027391A
(LC1D096BD-9A,440V)
-MC1 -MC3
23A
23B
24A
24B
26B
26A
25B
25A
FROM PS1
24V
GND
AM03-026877A
D-S1_PW010
MC1
21
TB-RY
A2
SAFETY PLC
24V
0V
A1
A2
0.5mm(BLUE)
0.5mm(BLUE)
0.75 mm (BLK)
17C17B
19B
21B
19C
21C
15B
13B
15C
13C
18B
22B
20B
16B
14B13A
15A
17A
19A
21A
1
3
5
2
4
6
1
3
5
2
4
6
DRIVERDRIVER
PE15
U
-M1
3~
M
WV E
3~
-M2
M
UV
PE14
W E
L3
SERVO
r
-SD1
L1
t
SERVO
rt
-SD2
L3L1
DRIVERDRIVER
PE16
U
-M3
3~
M
VW E V
M
3~
-M4
U
PE17
W E
SERVO
r
-SD3
L2L1
t
SERVO
t
L3
r
-SD4
L2 L3L1
2
DRIVER
E
PE18
-M5
3~
M
W
UV
L2
-SD5
r
L1
t
SERVO
L3
50W
SW-AXIS
100W
WD-AXIS
750W
X-AXIS
1KW
Y2-AXIS
1KW
Y1-AXIS
2 2
2
2
AM03-026997A
D-S1_PW124
AM03-027505A
D-S1_SF005
AM03-027508A
D-S1_SF009
2
2
2

Page
+$1:+$
119
DECAN
S1
Electric Power (5/8)
NO. PART NO. PART NAME Q'TY Old No. Supply Supply LT Reference
1 AM03-027391B CABLE ASSY-D-S1_TB WIRE MODULE 1
2 AM03-026877B CABLE ASSY-PS1_TB_DC24 1
3 AM03-026997B CABLE ASSY-Z1-Z10 DC24V PW 1
4 AM03-027508A CABLE ASSY-SAFETY_MONITOR_OUT 1
5 AM03-027505A CABLE ASSY-SAFETY_PLC_DC_PWR 1
6 AM03-014671A CABLE ASSY-SW_WD_SERVO_POWER 1
7 AM03-006960A CABLE ASSY-X_Y2_SERVO_POWER 1
8 AM03-006961B CABLE ASSY-Y1_SERVO_POWER;B 1

Page
+$1:+$
120
DECAN
S1
Electric Power (6/8)
1
2
4
3
6
5
-MC2
(T16-2.3)
VACUUM
PUMP
-SK
AM03-019377A
CV-CN12
CV-CN15
SH203-C16
-CP2
(16A)
AM03-014909B
1.5mm(BLK)
AM03-014851A
K3CRD-50500
D-S1_PW042-1
1.5mm(BLK)
SM48C_PW147-1
0.13mm(BLK)
(B6-30-10-01)
-TR
1.5mm(BLK)
0.5A(200W)
KHB200A-304A-G1
AM03-014907A
AM03-027769A
SM48C_PW041
SM48C_PW040
EP07-001120
SM48C-PW042
0.75mm(BLK)
0.5mm(BLUE)
0.5mm(BLK)
1
3
5
2
4
6
2
4
6
97
95
98
96
13
A1
14
A2
135
246
3
5
U
V
W
PE
1
3
+24V
HD MAIN AIR
VACUUM AIR SOL CONNECTOR
VACUUM PUMP ALARM
GND
VACUUM PUMP ALARM
GND
+24V
VACUUM PUMP PWR
PE3
2
2
2
2
AM03-025092A
DECAN_1TCV_006
AM03-014853A
SM48C_PW146
2
2
2