DECAN_S1_TRM(Ver1.3_CS20.11) - 第147页
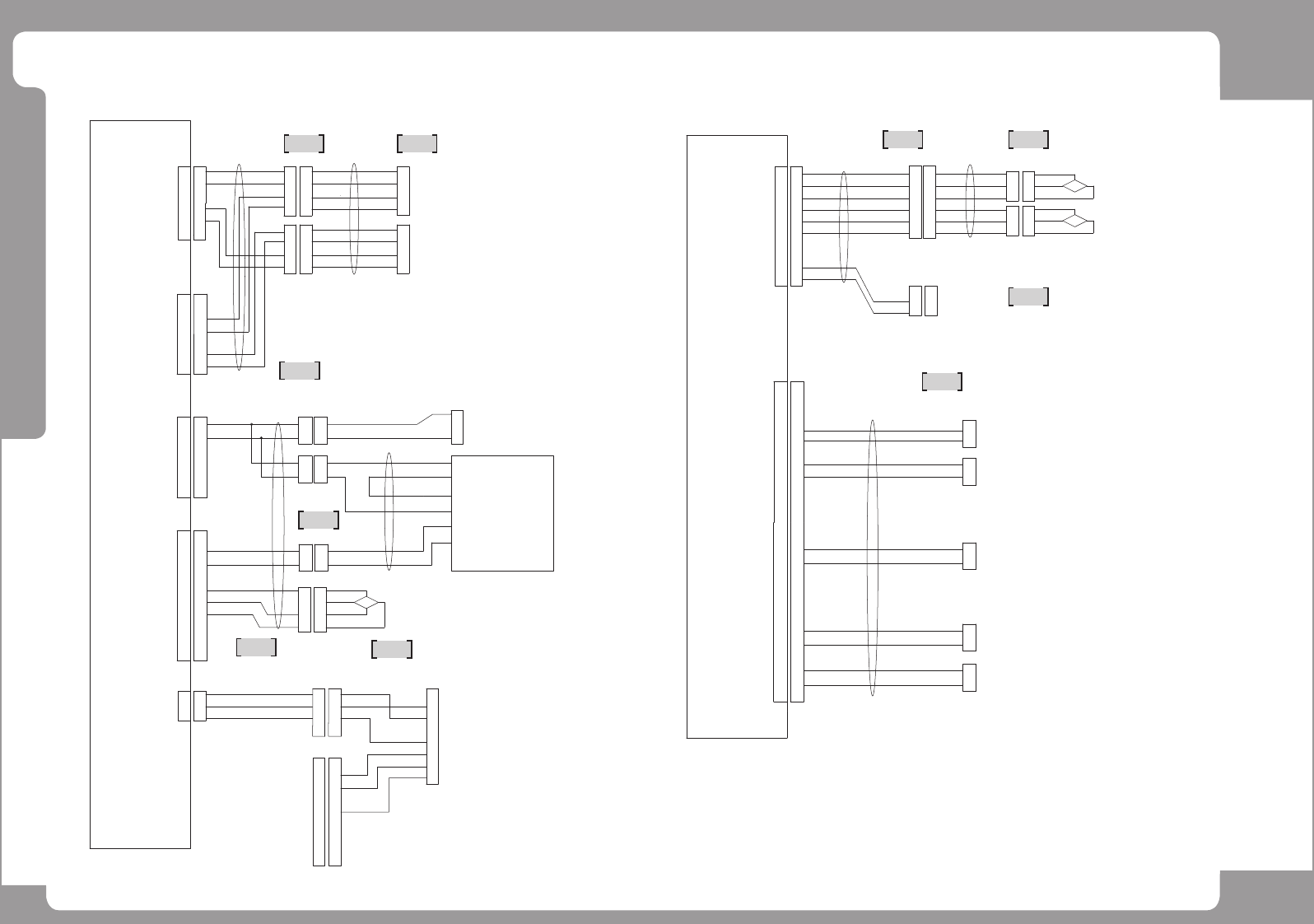
Page +$1:+$ 145 DECAN S1 Conveyor IF Board (2/5) NO. P ART NO. P ART NAME Q'TY Old N o. Supply Supply L T Refe rence 1 AM03-010844C CAB LE ASSY -INLINE_IN-OUT_CVIF 1 2 AM03-003542A CABLE ASSY -INLINE_IN-O UT 1 3 AM0…

Page
+$1:+$
144
DECAN
S1
Conveyor IF Board (2/5)
1 2
3
4
5
6
7 8
9
10
CONVEYOR
I/F BOARD
CONVEYOR
I/F BOARD
24
*
24P
CN15P
12
11
9
7
3
5
6
1
CN15S
CN9P
6P
CN9S
4
3
2
4
3
2
33
1
4
1
4
1
2
1
2
INLINE AFTER
INLINE BEFORE
5
3
5
3
4
6
4
6
2
2
11
BUSY OUTPUT
AVAILABLE OUTPUT
DF1B-6D P-2.5DSA
SM511_CV106-1
SM421_CV106-2
3
4
2
1
3
4
2
1
CN28S
33
CN28P
3P
2
1
2
1
PC RACK RS232 PORT
2
3
1
SM511_PC003-1
SMEMA
2
1
DF1B-24D P-2.5DSA
DF1B-24D P-2.5DSA
4
2
3
1
4
2
3
1
4
6
7
5
8
SM48C_PC003
COM1
6
6
CN20P
6P
2
5
4
2
5
4
CN20S
3
1
3
1
CN12P
6P
CN12S
6
4
2
5
3
1
2
1
VAC. AIR&PUMP PW
+24V
2
1
HEAD VACUUM AIR SOL PW
DECAN_1TCV_006
3
1
6
4
2
5
DF1B-6D P-2.5DSA
CN14S
24P
CN14P
23
21
19
16
18
14
24G
+24V
PLACE STOPPER DOWN
+24V
PLACE STOPPER UP
24G
23
21
19
16
18
14
11
2
3
2
3
PLACE STOPPER UP SENSOR
P-UP
11
2
3
2
3
PLACE STOPPER DOWN SENSOR
P-DN
6
5
4
2
3
1
6
5
4
2
3
1
PUMP TEMP ALARM
24G
BUT UP SENSOR
+24V
BUT UP
BUT
1
2
3
1
2
3
22
24
22
24
15
17
12
13
8
11
10
15
17
12
13
8
11
10
23
21
20
23
21
20
16
18
19
16
18
19
1414
24P
CN5P
9
7
6
4
3
5
2
1
9
7
6
4
3
5
2
1
CN5S
2
1
DF1B-24D P-2.5DSA
2
1
2
1
2
1
PLACE STOPPER SOL
BUT SOL
EDGE PUSHER SOL
ANC1 SHUTTER SOL
AM03-010844C
AM03-003542A
AFTER
BEFORE
BUSY+
BUSY-
B/D AVAILABLE+
B/D AVAILABLE-
BUSY+
BUSY-
B/D AVAILABLE+
B/D AVAILABLE-
AM03-025092A
24
*
12
11
9
7
3
5
6
1
44
+24G
SM48C_PW147-1
MC2
TERMINAL BLOCK
MC2-A1
MC2-A2
T-95
T-96
T-98
T-97
AM03-014907A
SHORT
1
2
3
PUMP-ALARM
PUMP-PWR
VACCUM-AIR
VAC. AIR
PUMP PW
2
1
2
1
2
1
MAIN-AIR
24
22
*
*
24
22
*
*
R-DUMP.BOX1
24G
11
2
3
2
3
R-DUMP.BOX1
P-SEN-EXT
DUMP BOX SWITCH (2GANTRY MACHINE LAYOUT - REAR)
2
1
ANC2 SHUTTER SOL
AM03-014977B AM03-014387A
PC-232-EXT
TXD1
RXD1
GND
2
3
1
4
6
7
5
8
9
2
3
1
4
6
7
5
8
9
MULTIPORT
TXD2
RXD2
GND
COM1 / COM2
TXD
RXD
GND
D-S1_CV016 D-S1_1TCV_005
AM03-012631B
c AM03-027523A
D-S1_CS145
c
SM511_CS111-7

Page
+$1:+$
145
DECAN
S1
Conveyor IF Board (2/5)
NO. PART NO. PART NAME Q'TY Old No. Supply Supply LT Reference
1 AM03-010844C CABLE ASSY-INLINE_IN-OUT_CVIF 1
2 AM03-003542A CABLE ASSY-INLINE_IN-OUT 1
3 AM03-025092A CABLE ASSY-DECAN_PUMP_BUT_AIR_SENSOR 1
4 AM03-014907A CABLE ASSY-PUMP_PWR_ALARM-EXT 1
5 AM03-014977B CABLE ASSY-RS232_SERIAL-EXT 1
6 AM03-014387A CABLE ASSY-RS32_SERIAL 1
7 AM03-027521A CABLE ASSY-STP_DUMP BOX SEN 1
8 AM03-027523A CABLE ASSY-CONV_SENSOR_IF 1
9 AM03-027512A CABLE ASSY-D-S1_R_DUMP_BOX_SWITCH_1 1
10 AM03-012631B CABLE ASSY-SINGLE_CONV_SOL 1

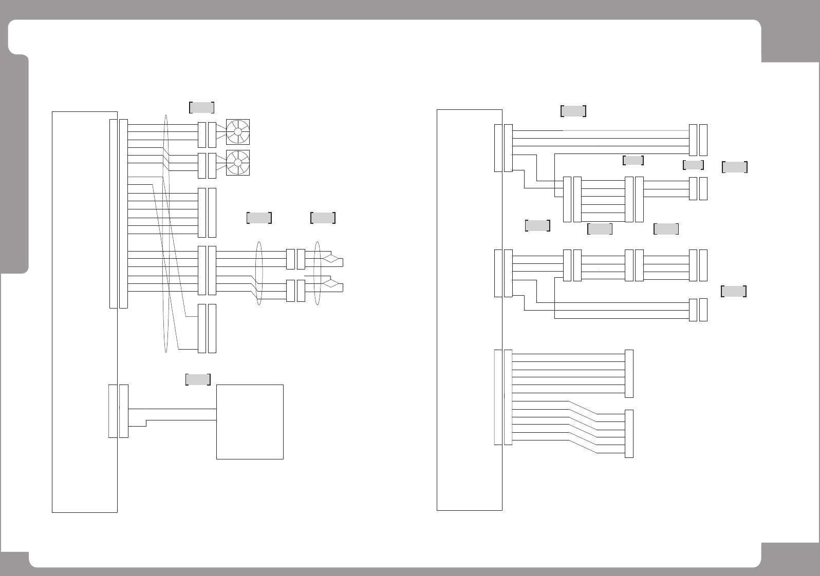
Page
+$1:+$
146
DECAN
S1
Conveyor IF Board (3/5)
1
2 3
4
5
7
6
8
9
10 11
12
CONVEYOR
I/F BOARD
CONVEYOR
I/F BOARD
24P
CN16P
24
22
24
22
15
17
12
13
8
11
10
15
17
12
13
8
11
10
21
21
23
20
19
23
18
16
19
16
14
18
20 20
CN16S
9
7
6
4
3
5
2
1
9
7
6
4
3
5
2
1
ANC CLOSE SENSOR
ANC OPEN SENSOR
+24V
F ANC CL
24G
+24V
F ANC OP
24G
SM511_CV109-1
A-CL
A-OP
SM33_CV010
6P
CN21P
4
6
6
4
3
5
2
5
2
3
CN21S
11
RECEIVER
FRONT ARER SENSOR
+24V
FASEN
24G
B1
A2
A1
+24V
24G
FRONT AREA SENSOR
EMMITER
FASEN
SYNC
SYNC
+24V
24G
+24V
24G
33
24G
+24V
24G
2
5
2
5
4
6
6
4
RASEN
+24V
11
CN22S
CN22P
6P
REAR ARER SENSOR
SYNC
SYNC
+24V
24G
24G
EMMITER
REAR AREA SENSOR
RECEIVER
+24V
RASEN
AM03-012634A
AM03-012635B
J90831139A
J90831759A
AM03-010848E
1
2
3
+24V
F FAN ALARM
24G
+24V
R FAN ALARM
24G
4
1
2
3
4
1
2
3
4
1
2
3
4
V1_BASE_332
EP02-001745B
V1_BASE_332
EP02-001745B
B2
B3
A3
B1
A1
A2
B2
B3
A3
B1
A1
A2
+24V
R ANC CL
24G
+24V
R ANC OP
24G
B2
B3
A3
B1
A1
A2
B2
B3
A3
B1
A1
A2
5
6
3
4
1
2
5
6
3
4
1
2
RACK FAN ALARM
GND_12V
F-LOOF-FAN
R-LOOF-FAN
FANC-EXT
RANC-EXT
PC RACK FAN ALARM INPUT
R ANC CL
R ANC OP
1
2
3
1
2
3
RA-CL
RA-OP
1
2
3
1
2
3
RACK-FAN
J90831135A
SM511_CV109-2
AM03-010849B
N.C
CN19S
6P
CN19P
5
4
6
1
3
2
5
4
6
1
3
2
PILTZ
SAFTY RELAY
RY-14
RY-11
MONITOR_SIG
24G
D-S1_SF010
AM03-027510A
3
1
2
4
4
3
1
2
3
1
2
2
3
1
SM511_CV115-2
SM511_CV115-3
SM33_CV016
SM421_CV018
A3
B3
B2
B6
A7
A6
A8
B8
B7
B1
A2
A1
A3
B3
B2
J5R-2
J6R-1
RAREA-E
FAREA-R
B1
A2
A1
B2
B1
A2
A1
B2
B1
A2
A1
B2
B1
A2
A1
B2
B6
A7
A6
A8
B8
B7
AM03-021648A
SM511_CV201_LT
AM03-010852B
AM03-010853B
SM511_CV115-1
SM511_CV117-1
AM03-021648A
SM511_CV201_LT
J10L-2
J11L-1
3
1
2
2
3
1
FAREA-E
3
1
2
4
4
3
1
2
RAREA-R
12P
CN29P
5
6
2
3
4
1
11
12
8
9
10
7
5
6
2
3
4
1
11
12
8
9
10
7
5
6
2
3
4
1
5
6
2
3
4
1
+24V
FIX1 SIDE
+24V
FIX1 INNER
+24V
FIX1 OUTER
+24V
FIX2 SIDE
+24V
FIX2 INNER
+24V
FIX2 OUTER
ILLUMINATION UNIT
STAGE #1
ILLUMINATION UNIT
STAGE #2
FIX-IF1-JP1
FIX-IF2-JP1