DECAN_S1_TRM(Ver1.3_CS20.11) - 第190页
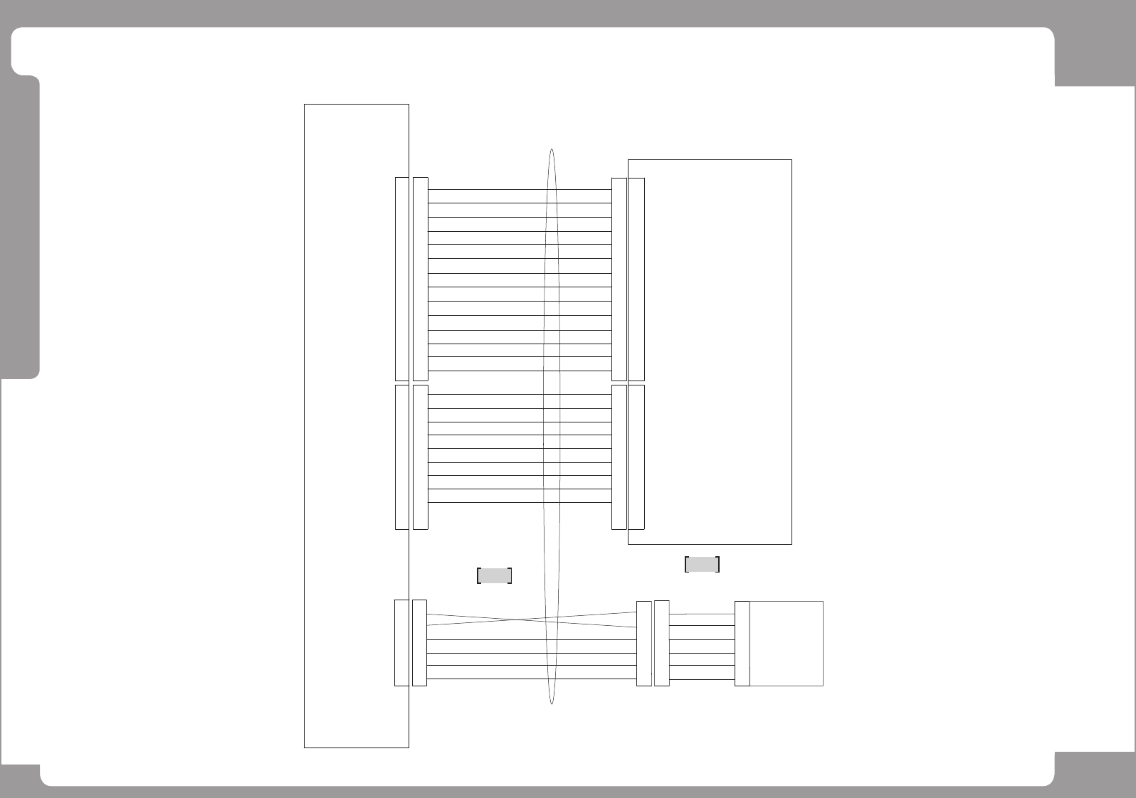
Page +$1:+$ 188 DECAN S1 Safety Contro l Board (2/5) 1 2 SAFETY CONTROL BOARD REAR OP P ANEL 4 4 44 CN4 22 3 3 MC1 +24V 1 1 READY LP +24V 2 2 3 3 1 1 5 5 6 READY SW 5 6 6 5 6 24G REM SW 10 9 10 9 10 9 REM1 +24V 8 8 77 8 …

Page
+$1:+$
187
DECAN
S1
Safety Control Board (1/5)
NO. PART NO. PART NAME Q'TY Old No. Supply Supply LT Reference
1 AM03-021650A CABLE ASSY-F_OP_PANEL_IF_F_TBOX 1
2 AM03-010837D CABLE ASSY-FRONT_TEACHING_BOX_EXT 1
3 AM03-014710B CABLE ASSY-PS1_PS4_DC_PW_T2L 1
4 AM03-014712B CABLE ASSY-PS1_PS4_DC_PW_T6L 1

Page
+$1:+$
188
DECAN
S1
Safety Control Board (2/5)
1
2
SAFETY CONTROL
BOARD
REAR OP PANEL
4
4
44
CN4
22
33
MC1
+24V
11
READY LP
+24V
2
2
3
3
1
1
5
5
6
READY SW
5
66
5
6
24G
REM SW
10
9
10
9
10
9
REM1
+24V
88
77
8
7
24G
RDOOR SW
13
14
14
13
14
13
RD1
TF1
1212
11 11
12
11
7
8
9
10
11
12
13
14
REAR READY SWITCH
REAR EM SWITCH
REAR DOOR SWITCH
CN31
1
4
3
2
5
8
7
6
10
9
1
4
3
2
5
8
7
6
10
9
1
4
3
2
5
8
7
6
9
1
4
3
2
5
8
7
6
10
9
10
24G(RFD)
RFD-SW
24G(RSTT)
RSTART-SW
R-LED
+24V
R-SEL1
R-SEL2
24G
CN3
CN1
24G
4
CN36
3
2
1
KEYPAD USED
EMG_IN
4
3
RXD
2
1
6
5
4
3
2
1
6
5
6
5
4
3
2
1
B2
A2
B1
A1
B3
A3
6
5
REAR T-BOX
SM511_CV023-5
TXD
+12V
GND
D-S1_SC002_LT
AM03-026876A
AM03-010838D

Page
+$1:+$
189
DECAN
S1
Safety Control Board (2/5)
NO. PART NO. PART NAME Q'TY Old No. Supply Supply LT Reference
1 AM03-026876A CABLE ASSY-R_OP_PANEL_IF_R_TBOX 1
2 AM03-010838D CABLE ASSY-REAR_TEACHING_BOX_EXT 1