XP-141E-03 - 第42页
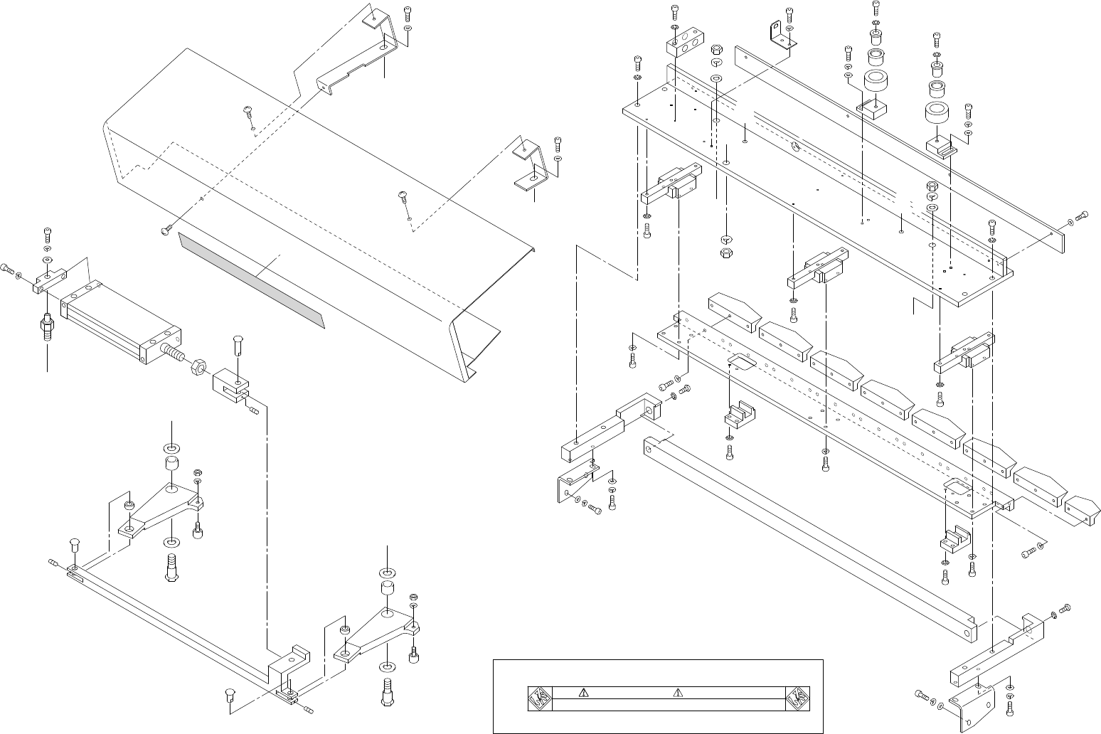
8 - 1 8 . 残テープカッタ( D E P K ) 8 . W a s t e t a p e c u t t e r ( D E P K ) 8 . W a s t e t a p e c u t t e r ( D E P K ) 8 . 残テープカッタ( D E P K ) XP-141E P ARTS LIST R e f . 3 3 - 7 R e f . 3 1 - 1 R e f . 3 1 - 1 R e f . …

7.基板リフタ(DEQC)
7.Board lifter(DEQC)
番号 図番 & コード番号 個数 品名 規格 備考
材質
No. Drg.No. & Code No. QTY Description Rating Remarks
Materials
158 W1024A
WASHER, LOCK
ワッシャ スプリング 6M/M FE
160 W1042A WASHER, FLAT ワッシャ 平 4W-3 FE
161 W1043A WASHER, FLAT ワッシャ 平 4W-4 FE
162 W1011A
WASHER, CONICAL
ワッシャ 皿 M-4-L FE
163 W1012A
WASHER, CONICAL
ワッシャ 皿 M-5-L FE
166 N1080A
NUT, HEX
ナット 六角 M4 P=0.7 FE
167 N1085A
NUT, HEX
ナット 六角 M6 P=1.0 FE
169 W1017A
WASHER, CONICAL
ワッシャ 皿 M-14-H FE
170 K5169X SCREW, C/R COUNTERSUNK 小ネジ 十穴皿 M2.5X5L FE
171 N4021A
BOLT, HEX SOCKET SET
ボルト 六角穴止め M3X6L FE
172 H5298A
BOLT, HEX SOCKET
ボルト 六角穴 M5X10L FE
173 H5289A
BOLT, HEX SOCKET
ボルト 六角穴 M4X12L FE
174 H5056M 1 HOLDER ホルダ TM-06 OT
175 W1040A WASHER, FLAT ワッシャ 平 3M/MX0.5X7 FE
176 W1051A 2 WASHER, FLAT ワッシャ 平 6M/MX1.6X125(1W-6) . FE
XP-141E PARTS LIST
7 - 5
7.基板リフタ(DEQC)
7.Board lifter(DEQC)

8 - 1
8.残テープカッタ(DEPK)
8.Waste tape cutter(DEPK)
8.Waste tape cutter(DEPK)
8.残テープカッタ(DEPK)
XP-141E PARTS LIST
Ref.33-7
Ref.31-1
Ref.31-1
Ref.31-1
Ref.31-1
タテx173.205
警告
メンテナンスは十分注意して行って下さい。
この奥に残テープ自動切断装置があります。
WA
RNIN
G
x7
51
36
50
51
36
50
36
50
36
50
53
52
35
30
11
69
69
12
37
33
31
36
26
21
A
47
44
5
6
6
19
C
36
45
23
25
23
22
10
24
B
36
45
23
25
19
23
22
10
24
4
9
3
43
48
2
43
48
34
37
34
37
35
30
28
41
20
28
41
20
13
29
35
39
16
15
14
42
32
29
35
39
13
16
15
14
42
32
A
46
38
70
38
46
C
B
38
70
46
1
8
7
7
40
27
40
27
7
40
27
17
17
17
17
17
17
17
18
208
176
165
175
161
175
161
175
161
183
162
176
167
175
161
13
13
B
A
139
26
54
56
55
60
61
65
64
49
68
D
E
D
E
66
62
66
62
63
51
51
57
58
59
67
36
50
36
50
36
50
63
63
67

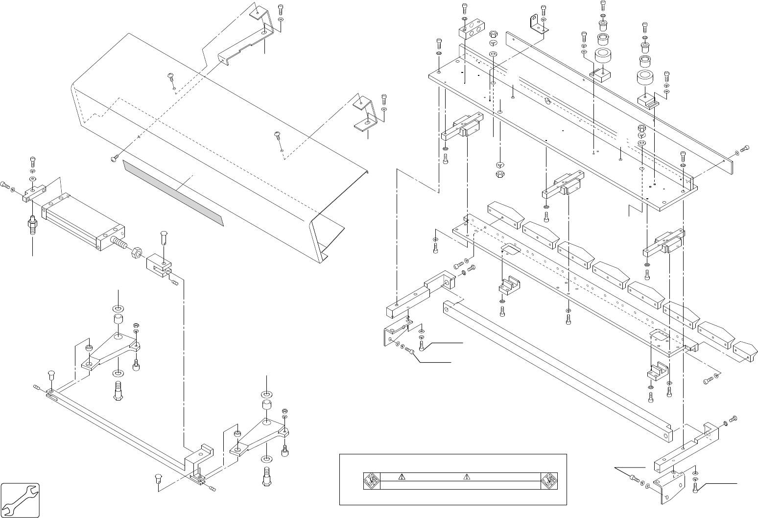
8 - 2
8.残テープカッタ(DEPK)
8.Waste tape cutter(DEPK)
8.Waste tape cutter(DEPK)
8.残テープカッタ(DEPK)
XP-141E PARTS LIST
警告
メンテナンスは十分注意して行って下さい。
この奥に残テープ自動切断装置があります。
WA
RNIN
G
x7
A
C
B
A
C
B
D
E
D
E
LOCTITE262
LOCTITE262
ThreeBond1373B
ThreeBond1390E
ThreeBond1373B
ThreeBond1390E
1.96N・m
3.9N・m3.9N・m
13.0N・m
13.0N・m
13.0N・m
13.0N・m