XP-141E-03 - 第61页
13.エアー配管図(DEPI) 13.Pneumatic circuit diagram(DEPI) 番号 図番 & コード番号 個数 品名 規格 備考 材質 No. Drg.No. & Code No. QTY Description Rating Remarks Materials 1 H1331A 4 VALVE バルブ VQ1101-5 OT 2 H1332A 3 VALVE バルブ VQ1201-5 …

13 - 1
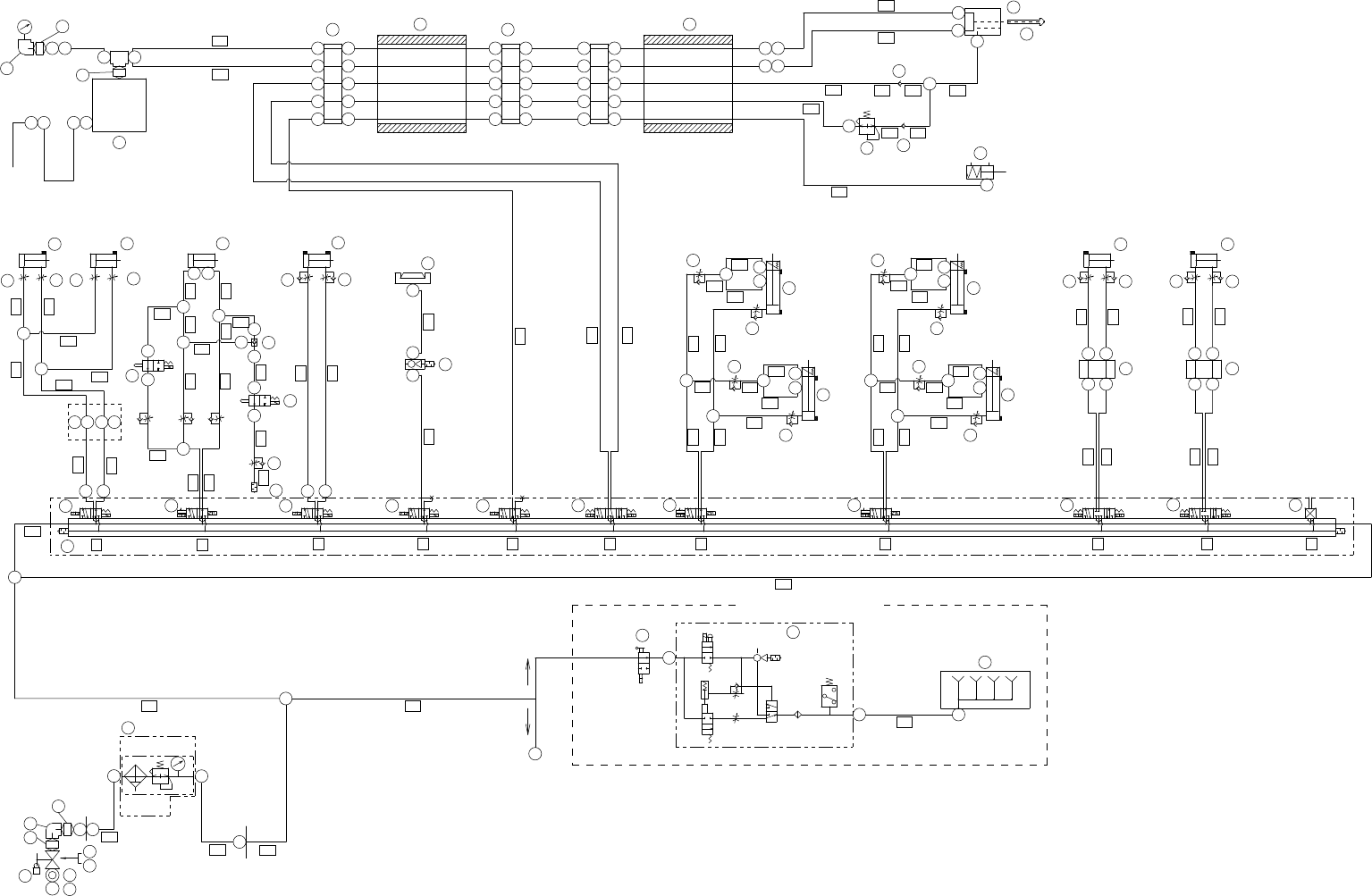
13.エアー配管図(DEPI)
13.Pneumatic circuit diagram(DEPI)
13.Pneumatic circuit diagram(DEPI)
13.エアー配管図(DEPI)
XP-141E PARTS LIST
Ref.33-7
Ref.31-1
Ref.31-1
Ref.31-1
Ref.31-1
タテx173.205
R1/8
R1/8
R3/8
R1/4
R1/4
R3/8
R3/8
R3/8
R1/8
R3/8
R1/8
R3/8
R3/8
φ50x150
φ6
φ6
残テープカッター(Side 1)
51
75
62
35
81
77
7183
72
60
76
42
R3/8
R1/8
R3/8
R1/8
R3/8
R1/8
R3/8
R3/8
R1/8
43
40
6869
6869
67
67
37
38
16
15
51
34
19
82
48
51
39
67
67
67
67
66 66
66 66
66
66
67
67
67
67
66 66
66 66
66
66
67
67
67
67
66 66
66 66
66
66
58
31
28
52
51
51
52
32
31
58
48
48
73
73
74
43
51
入り
戻り
M5
M5
φ10x2
22
24
22
On
Off
M5
M5
φ10x2
22
49
59
14
13
6
1
58
49
13
31
21
45
45
49
49
47
47
47
49
49
24
22
46
46
46
8080
46
45
61
65
57
23
18
33
51
54
53
78
45
On
Off
M5
M5
φ10x35
φ50x30
29
26
36
70
64
17
51
29
Off
On
R1/8
R1/8
R1/4
R1/4
R1/4
R1/4
φ50x150
30
27
30
55 55
55
55
41
R1/4
R1/4
R1/4
R1/4
55
55
55
55
41
On
Off
R1/8
R1/8
R1/8
R1/4
R1/4
28
32
φ50x30
R1/8
R1/4
R1/4
R1/8
R1/8
R1/8
R1/8
R1/8
R1/8
R3/8
R3/8
R3/8
R3/8
R3/8
R1/8
φ32x40
25
4949
Up
Down
M6
flow conveyor
(Right→Left)
While used Reveres
While used Board
Board pick up vacuum(Option)
pick up vacuum
High speed
ascend Lower
High speed
ascend Raise
Low speed
ascend Raise
Low speed
ascend Lower
(右→左)時に追加
コンベア逆流れ
使用時
基板吸着バキューム
基板吸着バキューム(オプション)
While not used Board
pick up vacuum
不要時
基板吸着バキューム
Waste tape cutter
パーツ吸着
Parts pick up
INステーションリフター上昇
IN Station lifter up
排気
exhaust
MAINステーションリフター上昇
MAINステーションストッパ入り
MAINステーションリフター下降
MAIN Station lifter up
MAIN Station lifter down
MAIN Station stopper
ゲージチップバキューム
Gauge chip vacuum
MFU上昇(Side1)
MFU下降(Side1)
MFU Raise(Side1)
MFU Lower(Side1)
MFU上昇(Side2)
MFU下降(Side2)
MFU Raise(Side2)
MFU Lower(Side2)
テープカット前進(Side1)
テープカット後退(Side1)
Tape cutter forward(Side1)
Tape cutter retract(Side1)
テープカット前進(Side2)
予備
テープカット後退(Side2)
Tape cutter forward(Side2)
Tape cutter retract(Side2)
Spare
リセットシリンダ上昇
Reset cylinder up
エアーブロー
Air blow
パーツピックアップ真空破壊
Parts pick up vacuum cut
U6
φ6
H1
U5
φ4
φ4
Q4
Q3
φ6
φ6
U6
U5
R1/8
R1/8
φ50x150
30
27
30
On
Off
φ6
φ6
φ6
φ6
Q5
φ4
φ4
Q2
φ6
Q9
φ6
Q9
φ6
Q6
φ4
P2
φ6
P1
φ6
U4
φ6
U1
φ6
U4
φ6
U1
φ6
Q7
φ6
φ6
Q8
φ6
Q6
φ6
Q6
φ6
Q9
φ4
Q2
φ4
Q2
Q1
φ4
Q1
φ6
φ6
H3
H2
φ6
φ6
U6
U5
φ6
U1
φ4
Q2
φ6
φ6
Q9
φ6
Q9
φ6
Q6
φ4
φ4
Q1
φ8
A1
φ8
A1
A1
A1
φ8
A1
Q1
Q10
U10
U12
U11
φ6
φ6
U12
U11
U10
Q12
Q11
7
φ10
φ10
φ10
A0
φ10
A1
φ12
φ12
φ12
φ6
φ6
φ6
φ12
φ12
φ6
φ6
φ6
φ12
φ12
φ6
φ6
φ6
φ12
φ12
φ6
φ6
φ6
φ12
φ12
H4
φ6
φ8
Q12
Q13
U10
φ10
φ16
φ16
φ12
H4
φ12
φ12
H4
φ6
H5
φ6
H5
φ6
H2
φ6
H1
φ6
U2
φ6
U2
φ6
U2
φ6
U3
φ6
U3
φ6
U4
φ6
U3
φ6
U1
58
31
28
52
51
51
52
32
31
58
48
48
φ50x30
R1/8
R1/4
R1/4
28
32
φ50x30
R1/8
R1/4
R1/4
φ6
φ6
U7
φ6
φ6
U7
φ6
U8
φ6
φ6
U8
U8
φ6
U9
φ6
U9
φ6
φ6
φ6
φ6
U9
φ6
U7
φ6
φ8
A1
φ6
H8
φ6
H5
φ6
H7
φ6
H3
H4
A
B
2
1
A
B
A
B
1
A
B
1
4
2
A
B
A
B
A
B
1 2
3 4 5 6
7
2
A
B
8
3
A
B
3
5
A
B
9
10
11
Q11
5Kg/cm
AD
EC
12
8
9
10
79
62
50
50
11
63
62
56
7
208
176
165
175
161
175
161
175
161
183
162
176
167
175
161
13
13
B
A
139
26
x9

13.エアー配管図(DEPI)
13.Pneumatic circuit diagram(DEPI)
番号 図番 & コード番号 個数 品名 規格 備考
材質
No. Drg.No. & Code No. QTY Description Rating Remarks
Materials
1 H1331A 4 VALVE バルブ VQ1101-5 OT
2 H1332A 3 VALVE バルブ VQ1201-5 OT
3 H1333Z 2 VALVE バルブ VQ1301-5 OT
4 H13331 1 VALVE バルブ VQ1401-5 OT
5 H3051E 1
COVER, BLIND
蓋 盲 VVQ1000-10A-1 OT
6 DEPI1010 1 VALVE UNIT バルブ ユニット VV5Q11-11-X955 OT
7 K1086T 1
COUPLER
カプラ 30PM OT
8 H1059T 1 VALVE, BALL バルブ ボール RP-LL-3/8ロックハンドルツキ OT
9 H3033G 1 FILTER REGULATOR フィルタレギュレータ C4000-UN-00014 OT
10 S5023H 1 SOCKET ソケット 30SH OT
11 K2027R 1
KEY
キー C1000-50 OT
12 H1046A 1
VALVE, STOP
バルブ ストップ A3/8X100 OT
13 H1063G 2
VALVE, MECHANICAL
バルブ メカニカル VM121-01-01 OT
14 H1050K 1 VALVE, CHECK バルブ チェック C250-01-32W OT
15 H10519 1 VALVE, CHECK バルブ チェック AKH06A-M5 OT
16 H10518 1 VALVE, CHECK バルブ チェック AKH06-00 OT
17 H1009H 1 GENERATOR, VACUUM 発生器 真空 VP-05HS OT
18 A4001B 1 EJECTOR エジェクタ VDBL10R6-08SA-D-1.0 OT
19 H1028A 1 REGULAT レギュレータ AR1000-M5BG OT
21 S1053B 1 SILENCER サイレンサ KM-J6 OT
22 H1039A 4
VALVE, THROTTLING
バルブ 絞り JNC4-M5 OT
23 H1037T 1 VALVE, MANUAL バルブ 手動 HV8-8-2 OT
24 DEQC0760 2 CYLINDER, AIR シリンダ エアー CXSL10-R7789-2 OT
25 S2125T 1
CYLINDER, AIR
シリンダ エアー CQ2D32-40DCM OT
26 S2126L 1
CYLINDER, AIR
シリンダ エアー CXSM10-K6869-35 OT
27 S2088Y 2 CYLINDER, AIR シリンダ エアー FCD-KL-50-150-MOV-H-FL255717 OT
28 S20975 4 CYLINDER, AIR シリンダ エアー CDLQB50-30D-B-F9NL OT
29 K5337H 2 CONTROLLER, SPEED コントローラ スピード AS1201F-M5-04 OT
30 K5342D 4 CONTROLLER, SPEED コントローラ スピード AS2201F-01-06S(シロ) OT
31 K5340Y 4 CONTROLLER, SPEED コントローラ スピード AS2001F-06(シロ) OT
32 K5343C 4 CONTROLLER, SPEED コントローラ スピード AS2201F-02-06S(シロ) OT
33 DBPP0111 1 PLATE プレート AL
34 . 1 CYLINDER, RESET シリンダ リセット 25゚X6 FE
35 H5447W 1 PUMP, VACUUM ポンプ バキューム KHA750A-305-G1 OT
36 . 1 ゲージチップ FE
37 A5706DEPH463* 1 VALVE, AIR バルブ エアー OT
38 . 1 NOZZLE ノズル FE
39 K4196D 1 FLEXIBLE TRACK ケーブルベア 340.075.075-11-3075-12PZ OT
40 K4138Y 1 FLEXIBLE TRACK ケーブルベア 250.07.075-016-2070-12P OT
XP-141E PARTS LIST
13 - 2
13.エアー配管図(DEPI)
13.Pneumatic circuit diagram(DEPI)

13.エアー配管図(DEPI)
13.Pneumatic circuit diagram(DEPI)
番号 図番 & コード番号 個数 品名 規格 備考
材質
No. Drg.No. & Code No. QTY Description Rating Remarks
Materials
41 DEPK0010 2 BKT, TERMINAL BKT ターミナル AL
42 DESX1160 1 BKT, TERMINAL BKT ターミナル AL
43 DESX1140 1 BKT, TERMINAL BKT ターミナル AL
45 Y30682 4 UNION ユニオン KQ2R04-06 OT
46 Y3069T 4 UNION ユニオン KQ2T04-00 OT
47 Y30203 3 UNION ユニオン UT6M OT
48 Y3070A 5 UNION ユニオン KQ2T06-00 OT
49 Y3020F 8 UNION ユニオン TL6-01M OT
50 Y3081A 2 UNION, ELBOW ユニオン エルボ KQ2L10-03S OT
51 Y3078A 7 UNION, ELBOW ユニオン エルボ KQ2L06-01S OT
52 Y3079A 4 UNION, ELBOW ユニオン エルボ KQ2L06-02S OT
53 A4066R 1 ELBOW エルボ KQ2L08-99 OT
54 Y3079H 1 UNION, ELBOW ユニオン エルボ KQ2L06-99 OT
55 Y3084A 8 UNION, HALF ユニオン ハーフ KQ2H06-02S OT
56 Y30666 1 UNION ユニオン KQ2E10-03 OT
57 K2007Z 1 CAP キャップ KQ2C08-00 OT
58 Y3075A 4 CONNECTOR コネクタ KQ2U06-00 OT
59 Y3117A 1 UNION, HALF ユニオン ハーフ TS6-01M OT
60 K50769 1 CONNECTOR コネクタ KQ2U12-03S OT
61 Y3071H 1 UNION ユニオン KQ2T08-00 OT
62 H1282A 3
PIPE, DOUBLE ENDED
パイプ 両口 3/8X25 OT
63 A4061A 1
ELBOW
エルボ 3/8 OT
64 Y3077S 1 UNION, ELBOW ユニオン エルボ KQ2L04-01S OT
65 K50767 1 CONNECTOR コネクタ KQ2U08-10 OT
66 Y3083A 18 UNION, HALF ユニオン ハーフ KQ2H06-01S OT
67 Y30868 14 UNION, HALF ユニオン ハーフ KQ2S12-03S OT
68 Y3077G 2 UNION, ELBOW ユニオン エルボ KQ2LE12-00 OT
69 A40685 2 ELBOW エルボ KQ2L12-99 OT
70 Y30770 1 UNION, ELBOW ユニオン エルボ KQ2L04-M6 OT
71 Y30662 1 UNION ユニオン KQ2E08-02 OT
72 Y3079X 1 UNION, ELBOW ユニオン エルボ KQ2L08-03S OT
73 Y3081G 2 UNION, ELBOW ユニオン エルボ KQ2L16-03S OT
74 A40687 1 ELBOW エルボ KQ2L16-99 OT
75 Y30664 1 UNION ユニオン KQ2E16-03 OT
76 H1216A 1
PIPE, DOUBLE ENDED
パイプ 両口 1/4X35 OT
77 A4053A 1 ELBOW エルボ 1/4 OT
78 Y30663 2 UNION ユニオン KQ2E10-00 OT
79 A4066H 1 ELBOW エルボ KQ2L10-99 OT
80 H3145K 2 PLUG プラグ KQ2P-04 OT
XP-141E PARTS LIST
13 - 3
13.エアー配管図(DEPI)
13.Pneumatic circuit diagram(DEPI)