TR1SNR-Rev01 - 第5页
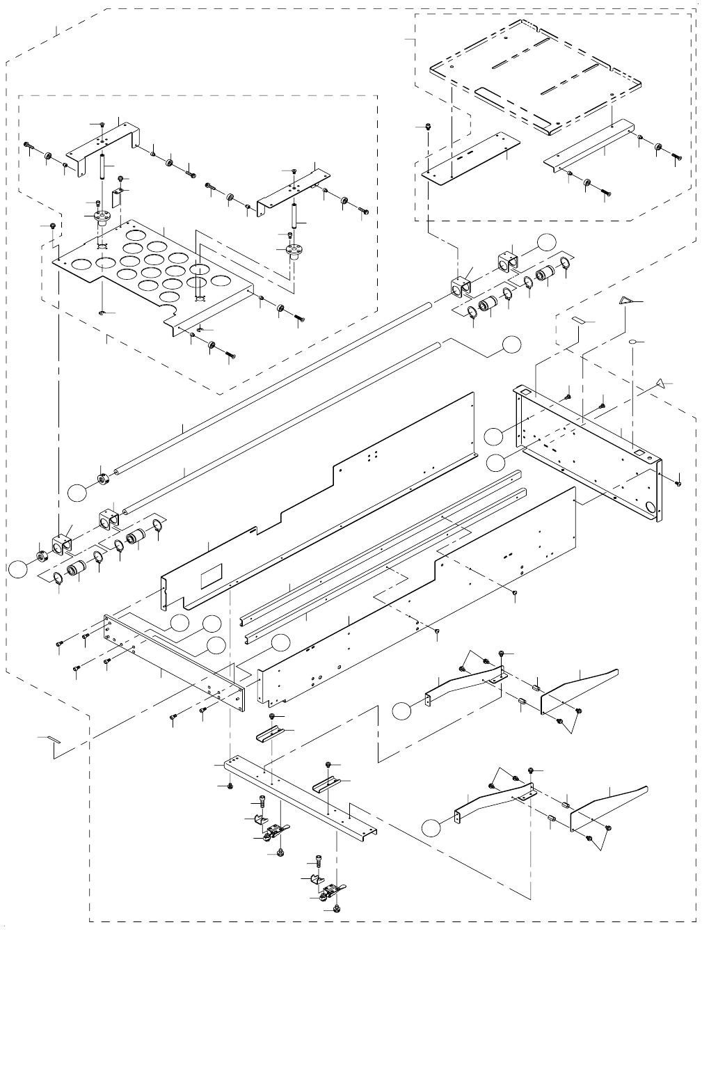
- 2 - REF.NO NOTE PART NO D E S C R I P T I O N 品 名 Qty 1 400-56299 FRAME ASSY 1 S フレ−ム組1 S 1 2 E1101-723- 0A0 SHAFT BRACKET F ASM. シャフトブラケット F 組 (1) 3 E1102-723- 000 SIDE FRAME L サイドフレ−ム L (1) 4 E1112-723- 000 SIDE FRAM…

- 1 -
1. FRAME COMPONENTS
フレーム関係
39
41
41
42
42
43
44
45
46
43
44
45
46
52
47
50
50
51
53
49
40
18
19
21
20
17
19
20
18
16
15
F
52
47
50
50
51
49
E
53
2
3
5
6
7
8
9
5
9
10
10
14
11
12
12
14
13
14
13
14
11
12
14
13
14
24
24
25
25
26
27
28
29
30
31
31
32
33
33
34
34
26
27
28
35
36
35
36
36
35
35
36
38
12
14
13
14
8
32
22
1
D
C
A
F
B
A
D
C
23
56
57
60
59
58
48
48
B
E
4
54
54
37
37
37
37
55
55

- 2 -
REF.NO NOTE PART NO D E S C R I P T I O N
品 名
Qty
1 400-56299 FRAME ASSY 1S
フレ−ム組1 S
1
2 E1101-723-0A0 SHAFT BRACKET F ASM.
シャフトブラケット F 組
(1)
3 E1102-723-000 SIDE FRAME L
サイドフレ−ム L
(1)
4 E1112-723-000 SIDE FRAME R
サイドフレ−ム R
(1)
5 SM-6030602-TN HEX SCREW M3 X 6
六角穴ボルト M 3 X 0.5 L =6
(4)
6 400-53554 REAR COVER
リアカバー
(1)
7 SM-0030601-SC SCREW M3X0.5 L=6
トラス小ねじ M 3 X 0.5 L =6
(4)
8 E1105-723-000 Y SHAFT
Y シャフト
(2)
9 SM-6030602-TN HEX SCREW M3 X 6
六角穴ボルト M 3 X 0.5 L =6
(2)
10 SM-0030601-SC SCREW M3X0.5 L=6
トラス小ねじ M 3 X 0.5 L =6
(2)
11 CS-1201010-SH THRUST COLLAR ASM. D=12 W=10
スラスト受 D =12 W =10組
(2)
12 E1106-723-000 BUSHING HOUSING
ブッシュハウジング
(4)
13 SB-7120001-00 SLIDE BEARING
スライド軸受
(4)
14 RC-0220001-KP C-TYPE SNAP RING
C 形止め輪
(8)
15 400-56344 FIXED UNIT
固定ユニット
(1)
16 E1151-723-000 FIXED PLATE
固定プレ−ト
(1)
17 E1152-723-000 FIXED ROLLER PLATE
固定ロ−ラプレ−ト
(1)
18 E1153-723-000 ROLLER STUD
ロ−ラスタッド
(2)
19 SB-1050003-00 BALL BEARING
ボールベアリング
(2)
20 SM-1031401-SC SCREW M3X0.5 L=14
サラ小ねじ M 3 X 0.5 L =14
(2)
21 SL-6030692-TN BOLT
座金付き六角穴ボルト
(4)
22 400-56347 UP DOWN UNIT
UP DOWN ユニット
(1)
23 E1171-723-000 HOUSING PLATE
ハウジングプレ−ト
(1)
24 SB-8080001-00 BEARING
ころがり軸受
(2)
25 SM-6030502-TN SCREW M3 L=5
六角穴ボルト M 3 L =5
(8)
26 E1153-723-000 ROLLER STUD
ロ−ラスタッド
(2)
27 SB-1050008-00 BEARING
ころがり軸受
(2)
28 SM-1031401-SC SCREW M3X0.5 L=14
皿小ねじ M 3 X 0.5 L =14
(2)
29 E1172-723-000 ORG DOG
ORG ドグ
(1)
30 SL-4030691-SC SCREW M3X6
なべ小ねじセムス M 3 X 0.5 L =6
(2)
31 E1173-723-000 RISE ROLLER PLATE
昇降ロ−ラプレ−ト
(2)
32 E1174-723-000 Z SHAFT
Z シャフト
(2)
33 SM-1030501-SC SCREW M3 L=5
皿小ねじ M 3 L =5
(2)
34 RE-0600000-K0 E-RING 6
E 形止め輪 6
(2)
35 E1153-723-000 ROLLER STUD
ロ−ラスタッド
(4)
36 SB-1050003-00 BALL BEARING
ボールベアリング
(4)
37 SL-4031491-SC SCREW M3X14
座金付きなべ小ねじ
(4)
38 SL-6030692-TN BOLT
座金付き六角穴ボルト
(4)
39 E1107-723-000 BOTTOM BEAM
ボトムビ−ム
(1)
40 SL-4030691-SC SCREW M3X6
なべ小ねじセムス M 3 X 0.5 L =6
(4)
41 E1108-723-000 HOLDER SUPPORT
ホルダサポ−ト
(2)
42 SL-4030691-SC SCREW M3X6
なべ小ねじセムス M 3 X 0.5 L =6
(4)
43 E1214-726-000 STACKER CLMP
スタッカクランプ
(2)
44 SL-4040881-SC SCREW M4 L=8
座金付きなべ小ねじ M 4 L =8
(8)
45 E1109-723-000 ROCK HOLDER
ロックホルダ−
(2)
46 SM-6041402-TN SCREW M4X0.7 L=14
六角穴ボルト M 4 X 0.7 L =14
(2)
47 E1110-723-000 CAM PLATE F
カムプレ−ト F
(2)
48 SM-6030602-TN HEX SCREW M3 X 6
六角穴ボルト M 3 X 0.5 L =6
(4)
49 SL-4030691-SC SCREW M3X6
なべ小ねじセムス M 3 X 0.5 L =6
(4)
50 400-52115 PT UNIT HOOK SD
PT ユニットフック SD
(4)
51 SL-4030691-SC SCREW M3X6
なべ小ねじセムス M 3 X 0.5 L =6
(4)
52 E1111-723-000 CAM PLATE R
カムプレ−ト R
(2)
53 SL-4030691-SC SCREW M3X6
なべ小ねじセムス M 3 X 0.5 L =6
(4)
54 E1113-723-000 GUIDE BR
ガイド BR
(2)
55 SM-0030301-SN SCREW
トラスねじ M 3 L =3
(10)
56 CM-3002000-03 ATTENTION LABEL
指けが注意シール(31.5)
1
57 CM-3003000-02 LABEL2 (25)
高温注意シール2(25)
1
58 E2106-716-000 POWER SOURCE SEAL
電源シ−ル
1
59 E4037-717-000 SUPPL SEAL
SUPPL シ−ル
1
60 E1602-723-000 FITTING MARK
取付けマ−カ
1

- 3 -
2. COVER COMPONENTS
カバー関係
2
3
5
6
7
8
4
8
9
9
10
11
12
13
14
15
15
16
20
19
21
22
25
26
27
28
29
30
24
34
35
38
18
40
B
37
23
32
33
6
5
17
18
A
C
1
B
C
31
39
41
A
36