NPM-W_z_110601 - 第55页
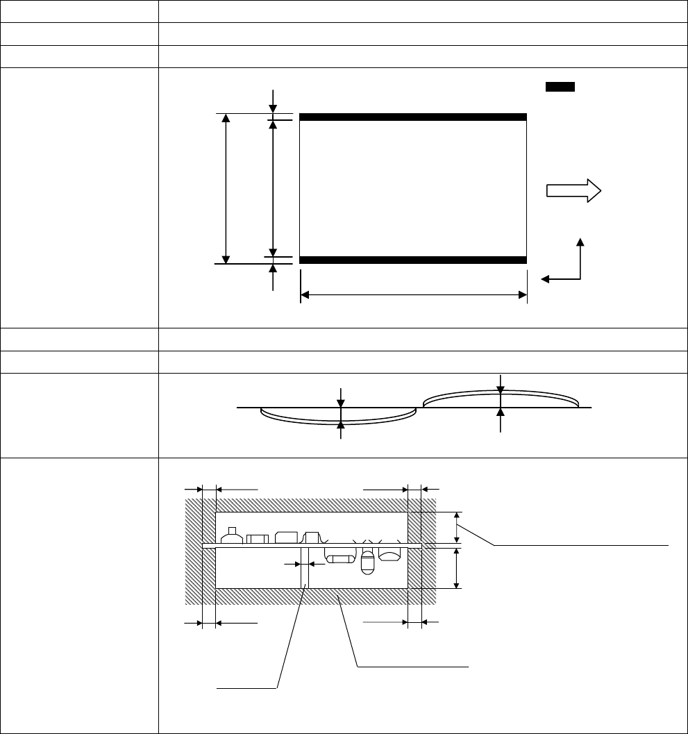
NPM-W 2011.0601 - 49 - 7.2 印刷基板规格概要 ( 双轨传送带 ) 项 目 规 格 能够使用的基板尺寸 双轨模式 Min. 50 mm × 50 mm ~ Max. 750 mm × 260 mm 单轨模式 ※ 1 Min. 50 mm × 50 mm ~ Max. 750 mm × 510 mm 贴装可能范围 双轨模式 Min. 50 mm × 44 mm ~ Max. 750 mm × 254 mm 单轨模式…

NPM-W 2011.0601
- 48 -
7.
印刷基板设计基准
7.1
印刷基板规格概要
(
单轨传送带
)
项 目
规 格
能够使用的基板尺寸
Min. 50 mm × 50 mm
~
Max. 750 mm × 550 mm
贴装可能范围
Min. 50 mm × 44 mm
~
Max. 750 mm × 544 mm
基板厚度
0.3 mm
~
8.0 mm
基板的重量
3.0
㎏以下
※
1
基板弯曲容许
贴装前基板状态
※
1
基板重量
(
包括载体重量
)
超过
3.0
㎏的情况时,请另行联络。
※ 有关陶瓷基板的对应请另行联络。
最大
0.5 mm
基板断面
最大
0.5 mm
禁止有元件的范围
16
吸嘴贴装头
: 6.5 mm
12
吸嘴贴装头
: 6.5 mm
8
吸嘴贴装头
: 12 mm
3
吸嘴贴装头
: 28 mm
支撑销
(
设置在与背面元件距离隔开
2 mm
以上的位置。
)
基板流向
禁止有元件的范围
固定侧
Y
X
3 mm
50 mm
~
750 mm
3 mm
50 mm ~ 550 mm
44 mm ~ 544 mm
28 mm
3 mm
3 mm
3 mm
φ
3
3 mm

NPM-W 2011.0601
- 49 -
7.2
印刷基板规格概要
(
双轨传送带
)
项 目
规 格
能够使用的基板尺寸
双轨模式
Min. 50 mm × 50 mm
~
Max. 750 mm × 260 mm
单轨模式
※
1
Min. 50 mm × 50 mm
~
Max. 750 mm × 510 mm
贴装可能范围
双轨模式
Min. 50 mm × 44 mm
~
Max. 750 mm × 254 mm
单轨模式
※
1
Min. 50 mm × 44 mm
~
Max. 750 mm × 504 mm
( )
内的数値
:
单轨模式时
基板厚度
0.3 mm
~
8.0 mm
基板的重量
3.0
㎏以下
※
2
※
3
基板弯曲容许
贴装前基板状态
※
1
单轨模式生产时,需要单轨模式对应的基板支撑块
(
选购件
)
。
※
2
基板重量
(
包括载体重量
)
超过
3.0
㎏的情况时,请另行联络。
※
3
基板重量是
2 kg
~
3 kg
时,为中速传送或者低速传送。
※ 有关陶瓷基板的对应请另行联络。
最大
0.5 mm
基板断面
最大
0.5 mm
禁止有元件的范围
16
吸嘴贴装头
: 6.5 mm
12
吸嘴贴装头
: 6.5 mm
8
吸嘴贴装头
: 12 mm
3
吸嘴贴装头
: 28 mm
支撑销
(
设置在与背面元件距离隔开
2 mm
以上的位置。
)
基板流向
禁止有元件的范围
固定侧
Y
X
3 mm
50 mm
~
750 mm
3 mm
50 mm ~ 260 mm
(50 mm ~ 510 mm)
44 mm ~ 254 mm
(44 mm ~ 504 mm)
28 mm
3 mm
3 mm
3 mm
φ
3
3 mm

NPM-W 2011.0601
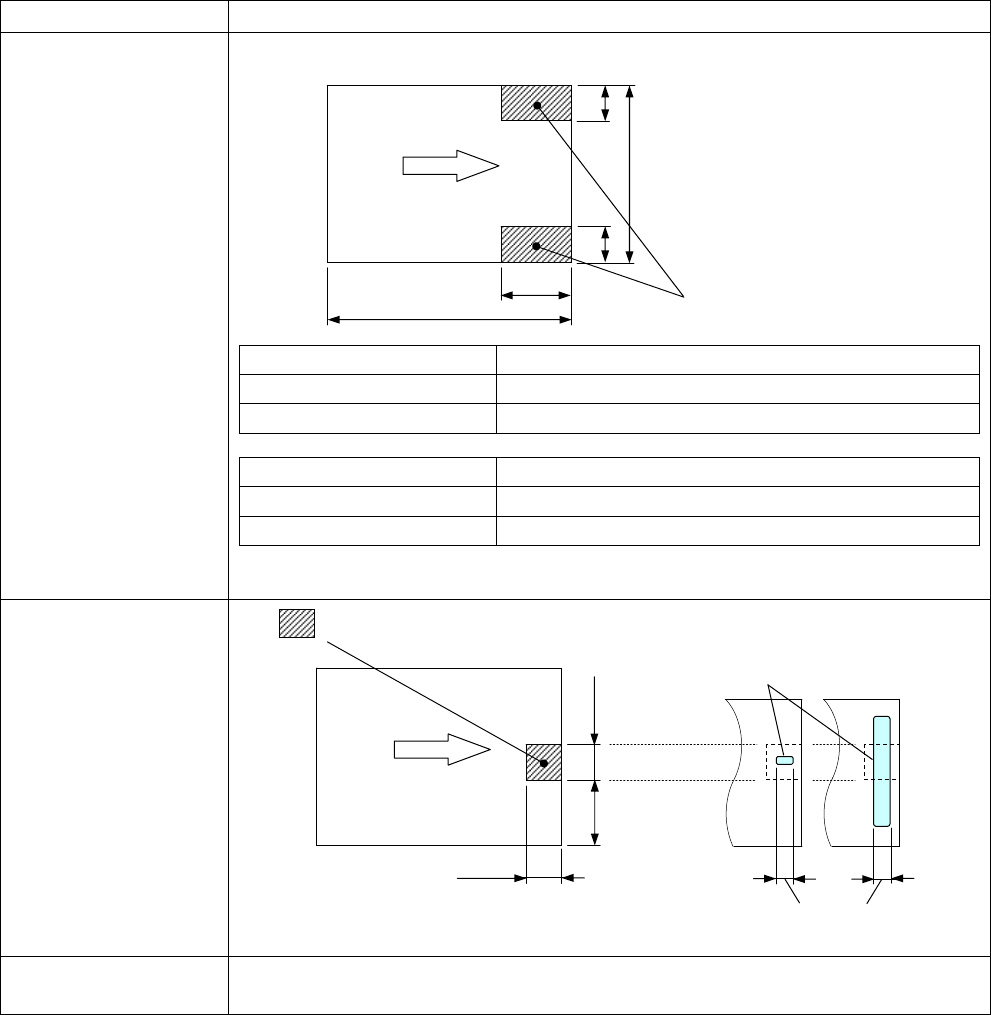
- 50 -
项 目
规 格
基板缺口条件
基板缺口尺寸必需满足以下条件。
L L1
50 mm
≦
L
≦
350 mm
不超过
L/4
350 mm
<
L
≦
750 mm L/4
或者
100 mm
的较小的一个
W W1
50 mm
≦
W
≦
260 mm W/3
或者
30 mm
的较小的一个
260 mm
<
W
≦
550 mm
请另行商洽。
※
以上是在基板厚度为
1.6 mm
以下时的情况。
基板厚度超过
1.6 mm
时,请另行商洽。
基板缝隙条件
下图
领域内不可有超过
3 mm(
传送方向
)
的缝隙。
※
以上是前基准时的情况。
后基准时,基准轨道在后侧。
基板端面的元件伸出条
件
请另行商洽。
L1
L
W1
W1
W
10 mm
30 mm
10 mm
基准轨道侧
3 mm
以下
缝隙例子
只限任意一处
基板流向
基板流向