NPM-W_z_110601 - 第80页
NPM-W 2011.0601 - 74 - 12.2 空气投入部 ■ 空气投入部 ( 在罩内侧 ) 日东耦合器 30P 增强软管 5 m 日东插座 30SH NPM-W 后侧 工厂侧 一 次 空 压源

NPM-W 2011.0601
- 73 -
12.
・
电源 空气投入部
12.1
电源投入部
■
电源使用
4
芯电缆,是
3.5 mm
2
~
5.5 mm
2
范围的电缆,使用本设备附属的工具进行连接。
(
本设备不附属此电缆。特别是使用
AWG#12
时,请注意随配线长度不同电压会下降。
)
■ 如下图所示,请采用在
2
处夹钳电缆的方法进行配线。
[
推荐
]
1.
端子连接管脚
生产厂家
: Phoenix Contact
型式
: 3.5 mm
2
~
4.0 mm
2
AI4-12GY
5.5 mm
2
~
6.0 mm
2
AI6-12YE
2.
电缆外经尺寸
φ
13.5 mm
~ φ
18.0 mm
3.
请必须用电缆夹具固定电缆,不使其被拖拉
(100 N)
,
转动而发生移动。
■
端子台连接时的注意
1.
请将套头端子的凹凸部分与端子台并行插入。
2.
请确认套头端子是否确实插入。
3.
请用附属的专用工具进行作业。
4.
不使用套头端子时,请确认芯线和插入状态。
∗∗
Remarks
∗∗
•
请客户准备电源电缆。
NPM-W
前侧
电源投入部
端子台
(
在罩内侧
)
OK
NG
电缆夹具
端子台
电缆

NPM-W 2011.0601
- 74 -
12.2
空气投入部
■空气投入部
(
在罩内侧
)
日东耦合器
30P
增强软管
5 m
日东插座
30SH
NPM-W
后侧
工厂侧
一
次
空
压源

NPM-W 2011.0601
- 75 -
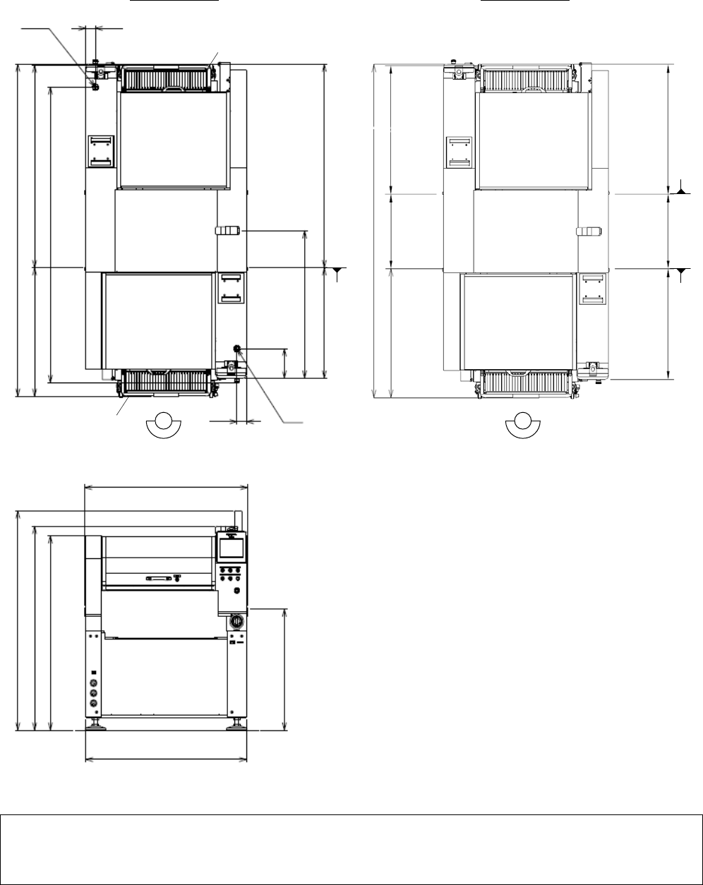
13.
尺寸图
(
单位
: mm)
■ 交换台车连接时
∗∗
Remarks
∗∗
•
上述示图的缩小比例与实际机器在严格上讲,并不完全一致。
在研讨生产线构成和尺寸时,请另行索取资料。
•
本机下部如有设置通风道等时,请确保与主体间空隙保持
40 mm
以上。
76
操作员侧
1 629
1 514
1 444
900
1 280 (传送带宽度)
1 265 (罩外形)
电源
Air
76
2 465
954
2 194
1 504
220
1 095.5
820.5 1 511.5
交换台车
交换台车
操作员侧
2 465
810 951 571
571 943.5 943.5
单轨传送带规格 双轨传送带规格
基板传送基准
基板传送基准
(前侧轨道)
基板传送基准
(后侧轨道)
基板传送高度