NPM-W_z_110601 - 第85页
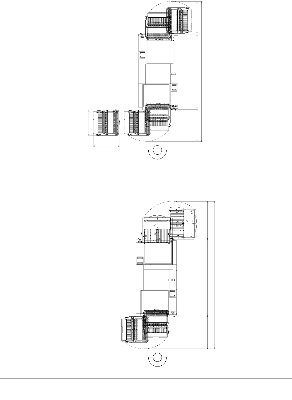
NPM-W 2011.0601 - 79 - 交换台车时,是必须的最小限空间。 设置机器时请必须确保以下的空间。 ( 单位 : mm) 安装双式托盘供料器时,是必须的最 小限空间。 在维护作业时有时会卸下托盘供料器 ,所以设置机器时请必须确保以下的空间。 ・ 单式托盘供料器时, 是 ( ) 内的尺寸。 ∗∗ Remarks ∗∗ • 交换台车设置范围的地面倾斜,需要 台车的左右方向在 6 mm 以内,前后方向在 11 mm 以内。 地面…

NPM-W 2011.0601
- 78 -
■ 单式托盘供料器
(
单位
: mm)
■ 双式托盘供料器
(
单位
: mm)
896
※
1
1 052
985
68
873
828
480
※
1
托盘供料器高度
896 mm
,是
NPM-W
的基板搬送高度是
900 mm
时的标准值。
可调整范围是
: 896 mm
+65
-16.5
基板中心
(750 mm × 550 mm
基板
)
872
828
542.5
838
※
1
1 052
986
945
978
353 68
542.5
基板中心
(750 mm × 550 mm
基板
)
※
1
托盘供料器高度
838 mm
,是
NPM-W
的基板搬送高度是
900 mm
时的标准值。
可调整范围是
: 838 mm
+65
-16.5

NPM-W 2011.0601
- 79 -
交换台车时,是必须的最小限空间。
设置机器时请必须确保以下的空间。
(
单位
: mm)
安装双式托盘供料器时,是必须的最小限空间。
在维护作业时有时会卸下托盘供料器,所以设置机器时请必须确保以下的空间。
・单式托盘供料器时,
是
( )
内的尺寸。
∗∗
Remarks
∗∗
•
交换台车设置范围的地面倾斜,需要台车的左右方向在
6 mm
以内,前后方向在
11 mm
以内。
地面倾斜度超过此范围时,不可搬移交换台车。
操作员侧
操作员侧
4 342
2 332 1 005 1 005
859
808
4 486 (4 121)
1 005
1 149 (784)
2 332

NPM-W 2011.0601
- 80 -
14.
有关许可证
为了启动以下软件
(
选购件
)
,需要各自的使用许可证。
・
PanaCIM-EE
对应
・ 元件校对
・ 自动机种切换
・ 上位通信
・
APC
系统对应
※
1
・ 支援功能
(
只有购买元件校对类型时需要。
)
每台启动的
NPM-W(NM-EJM2D)
都需要一个使用许可证。
对以上的软件选择,生产线中的所有
NPM-W
,必须是相同的。
如果一条线中软件的使用许可证或有或无,就不能保证生产线整体的运转。
【重要】
为了使用以上应用软件,需要在下页的许可证合同签字同意。
请必须浏览确认。
正确例子 错误例子
自动机种切换 × 3 自动机种切换 × 2
NPM-W
NPM-W
有许可证
有许可证
无许可证