KD-775-Rev04PDFA.pdf - 第5页
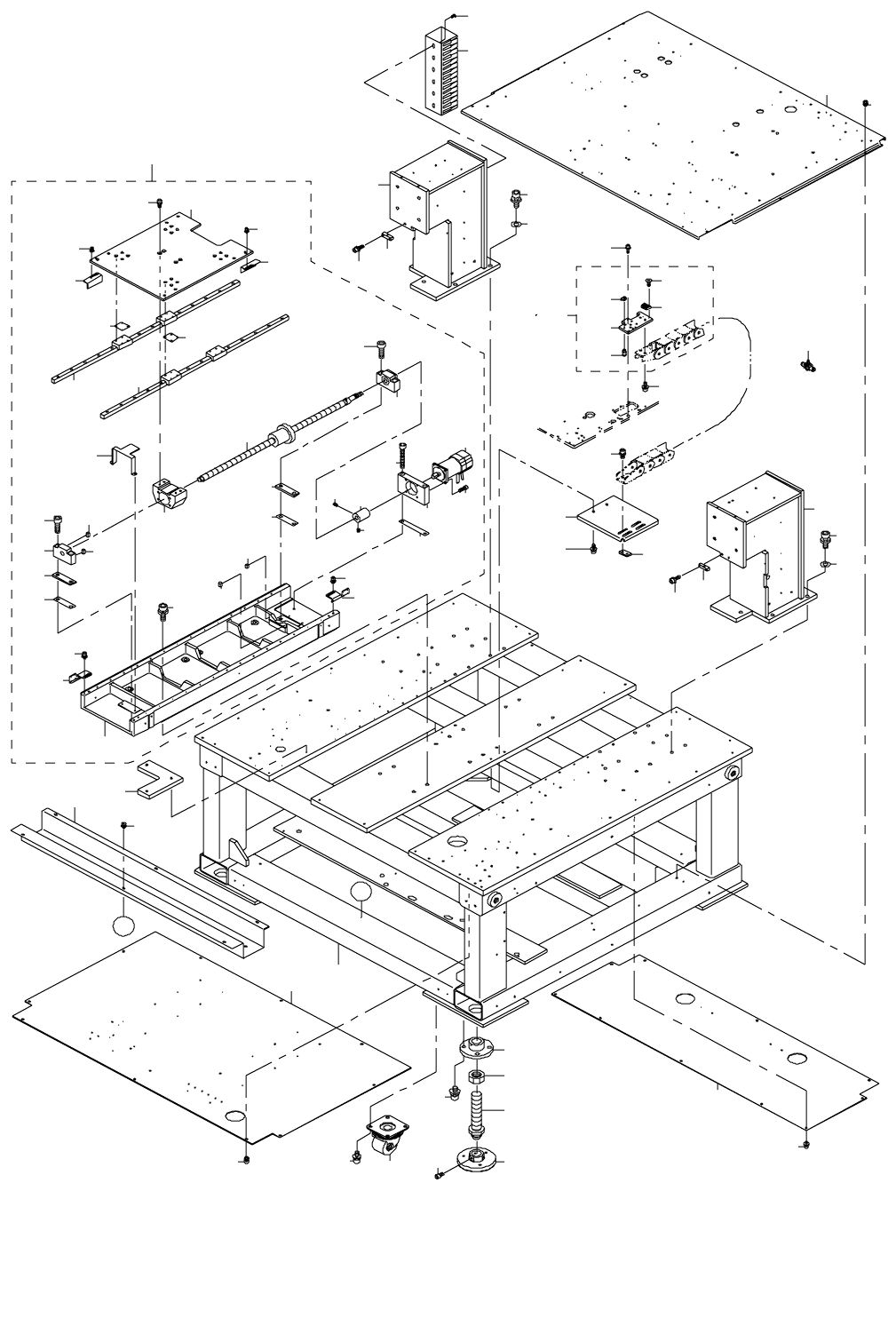
- 2 - N O T E ( 注記 ) #0 1 .... FOR FR O NT REFERENCE 手前基準用 #0 2 .... FOR REAR REFERENCE 奥基準用 RE F.NO NOTE PA RT NO D E S C R I P T I O N 品 名 Q ty 1 E 1001 -802 -000 -A BAS E F RAM E ベースフレーム 1 2 E 1002 -802 -000 BAS E FR …

- 1 -
MAIN UNIT
本体
1. BASE COMPONENTS(1)
ベース関係(1)
56
57
1
27
28
30
31
32
32
39
33
34
34
36
37
37
38
39
33
40
43
42
41
44
45
46
47
48
48
49
49
50
29
51
51
52
52
52
52
53
35
26
69
68
50
6
2
7
3
4
8
11
12
15
14
13
16
17
21
20
25
23
22
24
5
9
A
10
A
19
18
19
18
55
66
66
60
61
62
63
64
65
58
59
54
67

- 2 -
NOTE( 注記 ) #01....FOR FRONT REFERENCE 手前基準用
#02....FOR REAR REFERENCE 奥基準用
REF.NO NOTE PART NO D E S C R I P T I O N
品 名
Qty
1 E1001-802-000-A BASE FRAME
ベースフレーム
1
2 E1002-802-000 BASE FRAME A
ベースフレーム A
1
3 SL-6103042-TN BOLT
座金付き六角穴ボルト
6
4 WP-1052000-SC WASHER 10.5X18X2
平座金 10.5 X 18 X 2
6
5 E1003-802-000 BASE FRAME B
ベースフレーム B
1
6 SL-6103042-TN BOLT 座金付き六角穴ボルト 6
7 WP-1052000-SC WASHER 10.5X18X2
平座金 10.5 X 18 X 2
6
8 E1008-802-000 ELECTRIC APPARATUS PLATE
電装プレート
1
9 SL-4051091-SC SCREW M5X0.8 L=10
なべ小ねじセムス M 5 X 0.8 L =10
6
10 E1009-802-000 DUCT
ダクト
1
11 SL-4051091-SC SCREW M5X0.8 L=10
なべ小ねじセムス M 5 X 0.8 L =10
6
12 E1010-802-000 UPPER COVER A
上面蓋 A
1
13 SL-6051092-TN BOLT
座金付き六角穴ボルト
10
14 E1011-802-000 UPPER COVER B
上面蓋 B
1
15 SL-6051092-TN BOLT
座金付き六角穴ボルト
10
16 E1012-802-000 ADJUSTER FOUNDAION
アジャスター土台
4
17 SM-6102002-TN SCREW M10 L=20
六角穴ボルト M 10 L =20
16
18 E1013-802-000 X-AXIS ADJUSTER BLOCK
X 軸アジャストブロック
2
19 SL-6062092-TN SCREW M6 L=20 座金付き六角穴ボルト 6
20 E1006-700-000 CASTER
キャスター
4
21 SL-6082092-TN BOLT
座金付き六角穴ボルト
16
22 E1002-725-000 ADJUSTER BOLT 30
アジャストボルト 30 L
4
23 E1018-802-000 ADJUSTER NUT
アジャスト8六角ナット
4
24 E1034-721-000 ADJUSTER FOOT 30
アジャストフット 30
4
25 SM-6061202-TN BOLT
六角穴ボルト
12
26 E2301-802-0A0 Y-AXIS ASM.
Y軸組
1
27 E2301-802-000 Y-AXIS BASE
Y 軸ベース
(1)
28 SL-6103042-TN BOLT
座金付き六角穴ボルト
(8)
29 E2302-802-000-A CONVEYOR PLATE
搬送プレート
(1)
30 E2303-802-000-A Y-AXIS BOLL THREAD CUP Y 軸ボールねじカップ (1)
31 SM-6051402-TN HEXAGONAL-HOLE BOLT M5 L=14
六角穴ボルト M 5 L =14
(4)
32 E2304-802-000 Y-AXIS MOUNT SPACER
Y 軸マウントスペーサー
(2)
33 E2305-802-000 Y-AXIS REGULATION SHIM A
Y 軸調整シム A
(4)
34 E2306-802-000 Y-AXIS REGULATION SHIM B
Y 軸調整シム B
(2)
35 E2307-802-000 Y-AXIS REGULATION SHIM C
Y 軸調整シム C
(1)
36 E2308-802-000 Y-AXIS CUOPLING
Y 軸カップリング
(1)
37 SM-8050812-TP SCREW M5X8
止めねじ M 5 X 0.8 L =8
(4)
38 E2309-802-000 Y-AXIS BOLL THREAD
Y 軸ボールねじ
(1)
39 E2310-802-000 Y-AXIS LINEAR WAY
Y 軸リニアウェイ
(2)
40 E2311-802-000 Y-AXIS FIXED MOUNT
Y 軸固定マウント
(1)
41 SM-6103002-TN SCREW M10 L=30
六角穴ボルト M 10 L =30
(2)
42 E2312-802-000 Y-AXIS MOUNT
Y 軸支持マウント
(1)
43 SM-6103002-TN SCREW M10 L=30 六角穴ボルト M 10 L =30 (2)
44 E2313-802-000 Y-AXIS MOTOR BASE
Y 軸モーターベース
(1)
45 SM-6085502-TN SCREW BOLT
六角穴ボルト
(2)
46 KM-0000001-20 AC SERVO MOTOR
AC サーボモータ
(1)
47 SM-6051602-TN BOLT
六角穴ボルト
(4)
48 E2314-802-000 Y-AXIS ORIGIN SENSOR BRACKET
Y 軸原点センサブラケット
(2)
49 SL-6051042-TN SCREW
座金付き六角穴ボルト
(4)
50 E2315-802-000 Y-AXIS ORIGIN SENSOR DOG
Y 軸原点センサドッグ
(2)
51 SL-6040842-TN SCREW M4 L=8
座金付き六角穴ボルト
(4)
52 E2316-802-000 STOPPER RUBBER
ストッパゴム
(4)
53 E1027-802-000 BOLLTHREAD COVER
ボールねじカバー
(1)
54 E1021-802-000 CABLE BEAR BRACKET
ケーブルベアブラケット
1
55 SL-6061692-TN BOLT
座金付き六角穴ボルト
2
56 E1023-802-000 CABLE BEAR NUT ケーブルベアナット 1
57 E1029-802-000 LEVEL VIAL SET PLATE
水準器置き板
1
58
#01
400-29925 PIPE PLATE F ASM.
配管プレートフロント組
1
59
#02
400-29971 PIPE PLATE R ASM.
配管プレートリア組
1
60 400-29924 PIPE PLATE
配管プレート
(1)
61 PJ-0460525-03 HOSE ELBOW
ホ−ス エルボ
(8)
62 PJ-3010405-02 HALF UNION 4XM5
ハ−フユニオン 4 XM 5
(8)
63 E2117-802-000 TUBE CLAMP
チューブクランプ
(1)
64 SM-1020501-SC SCREW
皿ねじ M 2 L =5
(2)
65 SL-6051692-TN BOLT
座金付き六角穴ボルト
2
66 SL-6061692-TN BOLT
座金付き六角穴ボルト
4
67 PC-0124010-00 SPEED CONTROLLER
スピ−ド コントロ−ラ
1
68 E9760-729-000 DUCT (60X70X300)
ダクト(60 X 70 X 300)
1
69 SM-0051201-SC SCREW トラスねじ M 5 L =12 2

- 3 -
2. BASE COMPONENTS(2)
ベース関係(2)
39
36
38
37
40
30
29
25
26
6
5
9
11
5
6
12
32
11
9
21
22
24
23
18
13
14
14
17
15
19
20
7
16
16
28
27
27
28
10
33
34
8
10
3
3
31
4
2
1
35
35