P-0332-001_MULTI-LAYER_TRAY-FEEDER - 第54页
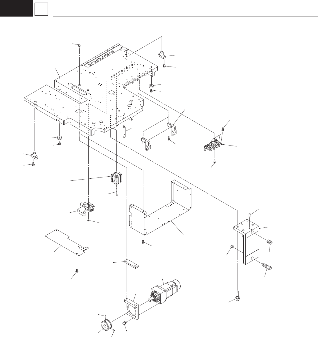
– 48 – N1 6 Lower Base 1304-001 M01 518 547 545 544 520 546 546 541 530 508 542 543 552 532 524 519 551 553 554 555 556 557 515 522 529 513 517 521 510 514 5 11 514 5 11 514 509 514 514 522 516 522 512 See Fig. N1-3 Key …

– 47 –
TRAVERSE CART SECTION(FULL)
No.
Part No.
Part Name Qty. Detail
Yamaha Hitachi
401 KYC-M186Y-00 213A1070 SHAFT 2
402 KYC-M180H-00 0921B20N LEVER 1
403 KYC-M180J-00 0921B20P LEVER 1
404 KYC-M180G-00 0921B20M BLOCK 1
405 KYC-M181E-00 0921B20L BRACKET 1
406 KYC-M186B-00 1015A20G PLATE 1
407 KYC-M185E-00 0921B805 PLATE 1
408 KYC-M186N-00 1015A22A PLATE 1
409 KYC-M1857-00 0921B205 PLATE 1
410 KYC-M184J-00 224C0550 CYLINDER 2
411 KYC-M184N-00 225F0240 PIPE FITTINGS 4
412 90933-02J930 222D0136 BEARING,RADIAL 2
413 KYC-M184F-00 222L0976 GUIDE_LINEAR 1
414 90440-01J020 221KA002 ROHS_RING 2 E RING 2
415 91312-03006 221AA005 BOLT,HEX.SOCKET HEAD 14 M3L6
416 92012-03006 221EA131 ROHS:BOLT 2 BUTTAN M3L6
417 91312-03040 221AA341 BOLT,HEX.SOCKET HEAD 4 M3L40
418 91312-04008 221AA016 BOLT,HEX.SOCKET HEAD 2 M4L8
419 90990-66J007 221DA202 SCREW,TRUSS HEAD 6 TRS M3L4
420 92902-03200 221HA103 WASHER,PLAIN 4 FW3
421 92902-03100 221HA003 WASHER,SPRING 2 SW3
422 92902-03600 221HA203 WASHER 6 FWS3
425 95302-04600 221FA007 NUT,HEXAGON 2 M4
431 KYC-M1858-00 0921B20J COVER 1
432 KYC-M186M-00 1015A227 COVER 1
441 90933-03J608 222D0343 BEARING,RADIAL 2
442 KYC-M1871-00 216A1652 COLLAR 1
443 KYC-M186S-00 211DE855 PLATE 1
444 KYC-M1854-00 0921B100 BEARING_PIN 1
445 KYC-M1869-00 1015A20A BLOCK 1
451 90933-03J608 222D0343 BEARING,RADIAL 2
452 KYC-M1871-00 216A1652 COLLAR 1
453 KYC-M186S-00 211DE855 PLATE 1
454 KYC-M1854-00 0921B100 BEARING_PIN 1
455 KYC-M1869-00 1015A20A BLOCK 1
461 KYC-M1837-00 1015A20D BRACKET 2
462 KYC-M1838-00 1015A20E BRACKET 2
463 KYA-M370T-00 1009EQ0E PLATE 1
464 KYC-M183E-00 1015A20W COVER 1
465 91312-03012 221AA008 BOLT,HEX.SOCKET HEAD 4 M3L12
466 90990-66J014 221DA209 SCREW,TRUSS HEAD 4 TRS M4L10
467 KYB-M65AW-00 23N30632 WIRING 4
468 90990-11J018 221DA052 SCREW,PAN HEAD WW 4 PAN M4L10 SW+FW
483 KYC-M185T-00 1005AB14 PIPE_FITTINGS 2
484 KYC-M185U-00 1005AB15 PIPE_FITTINGS 4
486 KYC-M185M-00 0921D300 TUBE_D32 1
487 KYC-M185N-00 0921D301 TUBE_D4 1
488 KYC-M185P-00 0921D302 TUBE_D6 1
1304-001

– 49 –
TRAVERSE CART SECTION(FULL)
No.
Part No.
Part Name Qty. Detail
Yamaha Hitachi
508 KYC-M183S-00 211AE302 COVER 1
509 KYB-M372R-00 211G6364 BLOCK 1
510 KYB-M372S-00 211G6365 BLOCK 1
511 KYB-M3735-00 226J2598 MECH_PARTS 2
512 KYC-M1870-00 213A1338 SHAFT 2
513 91312-03016 221AA010 BOLT,HEX.SOCKET HEAD 2 M3L16
514 91312-05010 221AA029 BOLT,HEX.SOCKET HEAD 10 M5L10
515 91312-05020 221AA032 BOLT,HEX.SOCKET HEAD 4 M5L20
516 91312-05025 221AA033 BOLT,HEX.SOCKET HEAD 4 M5L25
517 91312-05050 221AA038 BOLT,HEX.SOCKET HEAD 2
520 90990-66J015 221DA212 SCREW,TRUSS HEAD 4 TRS M5L6
521 92902-05100 221HA005 WASHER 2 SW5
522 92902-05200 221HA105 WASHER 12 FW5
524 92902-08200 221HA107 WASHER,PLAIN 4 FW8
529 KYB-M3730-00 222M1468 SPRING_COMP 10
530 KYC-M185F-00 0921C102 PLATE 1
532 92902-08100 221HA007 WASHER,SPRING 4 SW8
541 KYC-M181B-00 0921B103 BRACKET 1
542 KYC-M184W-00 4M150277 MOTOR-_AC-SERVO 1
543 KYC-M1875-00 223Q0774 PULLEY_TIMING 1
544 91312-06025 221AA045 BOLT,HEX.SOCKET HEAD 4 M6L25
545 92902-06200 221HA106 WASHER 4 FW6
546 90990-02J026 221CA007 SCREW,SET 2 SET M5L6
547 92902-06100 221HA006 WASHER,SPRING 4 SW6
551 KYC-M180K-00 0921B401 STAY 1
552 KYC-M1874-00 216E1754 PIN_LOCATE 1
553 KYC-M185B-00 0921B402 PIN_LOCATE 1
554 90189-02J166 221FA019 NUT,HEXAGON 1 M16
555 90990-02J026 221CA007 SCREW,SET 1 SET M5L6
556 92902-16200 221HA111 WASHER,PLAIN 1 FW16
557 92902-16100 221HA010 WASHER,SPRING 1 SW16
1304-001
