NXTIIIC partlist - 第235页
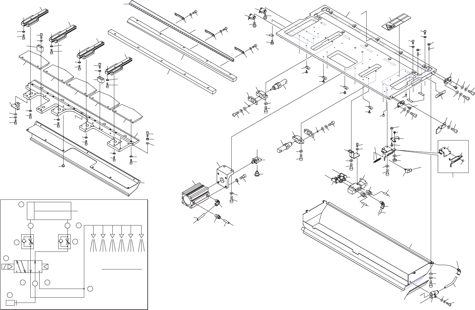
M3-WASTE TAPE PROCESSING UNIT M3-残テープ処理ユニット 2UGTPK000203 No. Dr g .No. & Code No. QTY Descri p tion Ratin g Materials Remarks 番号 図番 & コード番号 個数 品名 規 格材 質 備 考 105 H5427D 4 BOLT, HEX SOCKET ボルト 六角穴 M05X016(3カ シロ) F…

M3-WASTE TAPE PROCESSING UNIT
M3-残テープ処理ユニット
2UGTPK000203
No. Dr
g
.No. & Code No. QTY Descri
p
tion Ratin
g
Materials Remarks
番号 図番 & コード番号 個数 品名
規
格材質 備考
51 2MGKPK000903 1 PLATE
プ
レート FE
52 H54252 8 BOLT, HEX SOCKET ボルト 六角穴 M03X008(3カ シロ) FE
53 W1010A 8 WASHER, CONICAL ワッシャ 皿 M-3-L FE
54 PM0KXX2 1 BLOCK, STOPPER
ブ
ロック ストッパ FE
55 H5427K 2 BOLT, HEX SOCKET ボルト 六角穴 M05X028(3カ シロ) FE
56 W1106E 2 WASHER, LOCK ワッシャ ス
プ
リン
グ
5M
/
M(3カ シロ) FE
57 PM23114 1 BLOCK, STOPPER
ブ
ロック ストッパ FE
58 H5427C 2 BOLT, HEX SOCKET ボルト 六角穴 M05X015(3カ シロ) FE
59 W1012A 2 WASHER, CONICAL ワッシャ 皿 M-5-L FE
60 PM0KBN5 3 CUTTER, MOVABLE カッタ 可動 FE
61 H54298 6 BOLT, HEX SOCKET ボルト 六角穴 M05X008(3カ シロ) FE
62 W1012A 6 WASHER, CONICAL ワッシャ 皿 M-5-L FE
63 2MGLPK005201 1 DOG ドッ
グ
FE
64 H5426L 2 BOLT, HEX SOCKET ボルト 六角穴 M04X010(3カ シロ) FE
65 W1106D 2 WASHER, LOCK ワッシャ ス
プ
リン
グ
4M
/
M(3カ シロ) FE
66 W1043C 2 WASHER, FLAT ワッシャ 平 4W- 4(3カシロ) FE
67 PB0B6Y1 1 COVER, SLIDE カバー スライド FE
68 K5172L 4 SCREW, C
/
R TRUSS 小ネジ 十穴トラス M04X006(3カ シロ) FE
69 2MGTPK000700 1 BKT, CYLINDER BKT シリンダ FE
70 H5425C 2 BOLT, HEX SOCKET ボルト 六角穴 M06X012(3カシロ) FE
71 W1013A 2 WASHER, CONICAL ワッシャ 皿 M- 6-H OT
72 S60016 1 CYLINDER, AIR シリンダ エアー CQ2A40-60Z-DCM353EM FE
73 H5425C 4 BOLT, HEX SOCKET ボルト 六角穴 M06X012(3カシロ) FE
74 W1013A 4 WASHER, CONICAL ワッシャ 皿 M- 6-H FE
75 PM0KXW0 1 JOINT ジョイント FE
76 PM0EEW2 1 PIN ピン FE
77 Y60195 2 UNION, ELBOW ユニオン エルボ KQ2L04-01AS OT
79 Y60235 1 UNION, ELBOW ユニオン エルボ KQ2L04-99A FE
81 PB0B5Y1 1 BKT, PIPING BKT 配管 FE
82 K5365E 2 SCREW, C
/
R TRUSS 小ネジ 十穴トラス M06X010(3カ シロ) FE
83 PB07RT1 1 BKT, VALVE BKT バル
ブ
FE
84 H5426K 2 BOLT, HEX SOCKET ボルト 六角穴 M04X008(3カ シロ) FE
85 W1106D 2 WASHER, LOCK ワッシャ ス
プ
リン
グ
4M
/
M(3カ シロ) FE
86 K5258E 2 SCREW, HEX SOCKET BUTTON 小ネジ 六角穴ボタン M03X006(3カ シロ) FE
87 W1106C 2 WASHER, LOCK ワッシャ ス
プ
リン
グ
3M
/
M(3カ シロ) OT
88 H13362 1 VALVE, SOL バル
ブ
SOL SY5120-5MOZ-01 OT
89 Y60195 1 UNION, ELBOW ユニオン エルボ KQ2L04-01AS OT
90 2MGTPK004400 1 TUBE チュー
ブ
OT
91 PZ58650 1 TUBE チュー
ブ
OT
92 Y60195 1 UNION, ELBOW ユニオン エルボ KQ2L04-01AS OT
93 Y60335 2 UNION, HALF ユニオン ハーフ KQ2H06-01AS OT
94 Y60192 1 UNION, ELBOW ユニオン エルボ KQ2L06-01AS PL
95 PZ07861 1 TUBE チュー
ブ
OT
96 2MGTPK004900 1 TUBE チュー
ブ
OT
97 H5426M 1 BOLT, HEX SOCKET ボルト 六角穴 M04X012(3カ シロ) FE
98 N1079B 1 NUT, HEX ナット 六角 M04 P=0.7 1シュ(3カシロ) FE
99 W1108S 1 WASHER, FLAT ワッシャ 平 4M
/
MX0.8X9(1W-4)(3カシロ) FE
101 2MGKPK004900 1 CUTTER, STATIONARY カッタ 固定 FE
102 H5427B 4 BOLT, HEX SOCKET ボルト 六角穴 M05X012(3カシロ) FE
103 W1012A 4 WASHER, CONICAL ワッシャ 皿 M-5-L FE
104 2MGKPK004102 1 GUIDE ガイド FE
234
PTS-NXT3c-01JE

M3-WASTE TAPE PROCESSING UNIT
M3-残テープ処理ユニット
2UGTPK000203
No. Dr
g
.No. & Code No. QTY Descri
p
tion Ratin
g
Materials Remarks
番号 図番 & コード番号 個数 品名
規
格材質 備考
105 H5427D 4 BOLT, HEX SOCKET ボルト 六角穴 M05X016(3カ シロ) FE
106 W1012A 4 WASHER, CONICAL ワッシャ 皿 M-5-L FE
107 2MGKPL004900 1 RETAINER, COVER 押え カバー FE
108 H54251 2 BOLT, HEX SOCKET ボルト 六角穴 M03X006(3カ シロ) FE
109 W1106C 2 WASHER, LOCK ワッシャ ス
プ
リン
グ
3M
/
M(3カ シロ) FE
110 K5075A 1 CONNECTOR コネクタ KQU06-00 OT
111 K5075G 1 CONNECTOR コネクタ KQU06-99 OT
112 H5426T 2 BOLT, HEX SOCKET ボルト 六角穴 M04X020(3カ シロ) FE
113 W1106D 2 WASHER, LOCK ワッシャ ス
プ
リン
グ
4M
/
M(3カ シロ) FE
114 W1108S 2 WASHER, FLAT ワッシャ 平 4M
/
MX0.8X9(1W-4)(3カシロ) FE
115 S63211 1 SILENCER サイレンサ AN10-C06 OT
116 2MGKPK006700 1 TUBE チュー
ブ
OT
117 Y60199 1 UNION, ELBOW ユニオン エルボ KQ2L06-M5A OT
121 2AGKPK000203 1 BRUSH
ブ
ラシ OT
122 2MGKPL002001 1 SEAL シール PL
131 S2025A 3 SHEET シート CTAM1 OT
132 S2025B 1 SHEET シート AB-2N OT
133 K5172L 4 SCREW, C
/
R TRUSS 小ネジ 十穴トラス M04X006(3カ シロ) FE
Note.1:[Interchangeable parts/選択部品] 2MGKPK002100(t=0.02), 2MGKPK002200(t=0.05), 2MGKPK002300(t=0.08), 2MGKPK002400(t=0.1), 2MGTPK004500(t=0.06), 2MGKPK011300(t=0.04)
Note.2:[Interchangeable parts/選択部品] 2MGKPK011900(t=0.02), 2MGKPK012000(t=0.05), 2MGKPK012200(t=0.04), 2MGTPK004600(t=0.06)
235
PTS-NXT3c-01JE

J
J
J
J
A
A
B
B
C
C
D
D
A
A
B
B
C
C
D
D
E
E
F
F
G
G
H
H
H
H
G
G
K
K
L
L
M
M
M
M
K
K
L
L
N
N
Air blow
࢚࣮㓄⟶ᅗ
31(80$7,&&,5&8,7',$*5$0
㸴
㸴
㸴
㸴 㸴
㸯㸭㸶
㸯㸭㸶
㸯㸭㸶㸯㸭㸶
㸴
㸦㹃㸿㸧 㸦㹎㸧
㸦㹀㸧
㸦㸿㸧
㸦㹃㹀㸧
㸯㸭㸶㸯㸭㸶
㸯㸭㸶
㸨㹒㹁㸴㹄㸿ࠉ㸯㸰㸱㸲㸳㸴㸨
P
L1
F
F
N
N
1
2
3
4
5
6
7
7
8
8
9
9
11
12
12
14
14
15
15
16
16
17
17
18
18
19
19
21
22
22
23
23
35
36
37
39
40
38
41
41
42
42
44
45
46
47
47.1
48
49
50
51
52
53
54
55
56
57
58
59
60
64
66
65
67
68
73
80
81
82
81
82
81
82
81
82
83
84
85
85
85
85
85
86
86
86
86
11
6
13
13
70
61
62
63
30
31
32
33
34
24
24
25
25
3
4
5
26
27
28
29
43
43
93
94
71
72
69
100
101
102
102.1
110
114
112
115
113
87
88
87
88
87
88
87
88
89
90
91
92
95
96
97
98
99
108
109
111
103
104
105
106
107
121
121
121
121
122
123
123
123
123
123
105
106
107
105
106
107
116
0:$67(7$3(352&(66,1*81,7
0ṧࢸ࣮ࣉฎ⌮ࣘࢽࢵࢺ
2UGTPL000203
236
PTS-NXT3c-01JE