NXTIIIC partlist.pdf - 第322页
B B A A C C A A OPTION Auto backup pin function ⮬ືࣂࢵࢡࢵࣉࣆࣥᶵ⬟ BACK-UP PIN ࣂࢵࢡࢵࣉࣆࣥ 㸮㸮㸮㸮㸮㸮 㸿㹎㸱㹄㸿 B B C C 4 5 6 7 8 9 12 12 9 44 18 21 33 74 75 76 73 74 75 76 73 73 34 31 42 45 46 33 34 31 35 38 55 56 57 56 57 59 59 48 55 3…
ࡇࡢ࣮࣌ࢪࡣࣈࣛࣥࢡ࣮࣌ࢪ࡛ࡍ
↔亥ᱟオⲭ亥
This page is intentionally blank.
321
PTS-NXT3c-01JE

B
B
A
A
C
C
A
A
OPTION
Auto backup pin function
⮬ືࣂࢵࢡࢵࣉࣆࣥᶵ⬟
BACK-UP PIN
ࣂࢵࢡࢵࣉࣆࣥ
㸮㸮㸮㸮㸮㸮
㸿㹎㸱㹄㸿
B
B
C
C
4
5
6
7
8
9
12
12
9
44
18
21
33
74
75
76
73
74
75
76
73
73
34
31
42
45
46
33
34
31
35
38
55
56
57
56
57
59
59
48
55
35
74
75
76
73
74
75
76
11
52
53
51
31
33
34
45
46
43
44
31
33
34
18
48
55
56
57
59
59
55
57
56
4
68
68
58
62
63
61
62
63
61
4
36
37
19
20
62
63
61
62
63
61
32
32
32
32
22
24
23
39
41
40
79
80
81
80
81
4
4
58.1
58
58.1
58
58.1
58
58.1
120
121
122
123
2
3
1
15
15
86
87
88
89
90
91
92
93
85
96
97
95
98
100
99
101
102
95.1
111
112
110
115
118
116
110.1
5.1
51.1
8
11
47
47
16
17
17
16
16
17
17
16
27
28
25
25
25
25
49
50
49
50
14
14
26.1
26
26.1
26
29
27
28
29
27
28
29
27
28
29
83
84
103
104
16.1
16.1
16.1
16.1
47.1
47.1
2UGZCA000106
0,,,Fࢩࣥࢢࣝࢥࣥ࣋
0,,,F6,1*/(&219(<25
322
PTS-NXT3c-01JE

M3 IIIc-SINGLE CONVEYOR 3/6
M3 IIIc-シングルコンベア 3/6
2UGZCA000106
No. Dr
g
.No. & Code No. QTY Descri
p
tion Ratin
g
Materials Remarks
番号 図番 & コード番号 個数 品名
規
格材質 備考
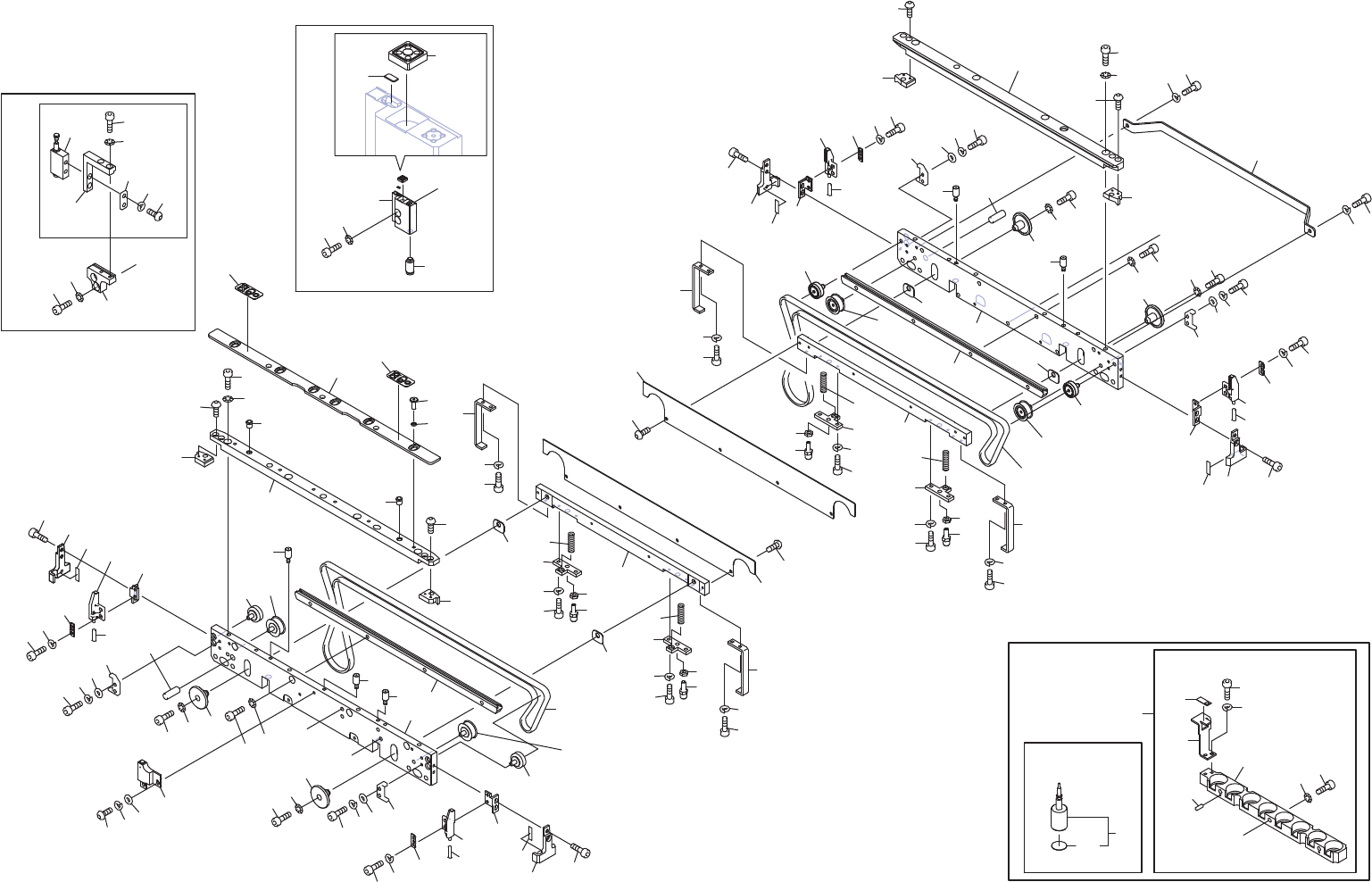
1 2MGTCB002304 1 PLATE, RETAINING
プ
レート 押え FE
2 2MGTCF004501 6 BOLT ボルト FE
3 2MGTCF000400 6 COLLAR カラー FE
4 PM23709 5 PIN, REFERENCE ピン 基準 FE
5 PM085L6 1 RAIL レール FE
5.1 PM09WC4 1 RAIL レール FE Thin
p
anel o
p
tion
6 H5289A 4 BOLT, HEX SOCKET ボルト 六角穴 M04X012 FE
7 W1011A 4 WASHER, CONICAL ワッシャ 皿 M-4-L FE
8 PT01225 2 GUIDE ガイド FE
9 K5255T 4 SCREW, HEX SOCKET BUTTON 小ネジ 六角穴ボタン M03X006 FE
11 PT01214 2 GUIDE ガイド FE
12 K5255T 4 SCREW, HEX SOCKET BUTTON 小ネジ 六角穴ボタン M03X006 FE
14 H3170B 2 PLUNGER, BALL
プ
ランジャ ボール SBP-4 OT
15 2MGTCA001000 2 SEAL シール OT
16 2AGTCA000702 4 PULLEY
プ
ーリ OT
16.1 AB07600 4 PULLEY
プ
ーリ OT Thin
p
anel o
p
tion
17 2AGTCA000602 4 PULLEY
プ
ーリ OT
18 PM92403 2 BKT, SENSOR BKT センサ FE
19 2MGTCA004801 1 GUIDE ガイド OT
20 PS03151 1 SHEET シート OT
21 H67813 2 BOLT, HEX SOCKET ボルト 六角穴 M03X008テイトウ(3カ シロ) FE
22 2MGTCA004801 1 GUIDE ガイド OT
23 PS03151 1 SHEET シート OT
24 H67813 2 BOLT, HEX SOCKET ボルト 六角穴 M03X008テイトウ(3カ シロ) FE
25 2MGTCA002600 2 SENSOR, FIBER センサ ファイバ OT SET
26 T63140 2 TUBE, MARKER チュー
ブ
マーカ
φ
2.8(内径)X0.4(キイロ) OT
26.1 T63141 2 TUBE, MARKER チュー
ブ
マーカ
φ
2.8(内径)X0.4(シロ) OT
27 H54250 8 BOLT, HEX SOCKET ボルト 六角穴 M03X005(3カ シロ) FE
28 W1106C 8 WASHER, LOCK ワッシャ ス
プ
リン
グ
3M
/
M(3カ シロ) FE
29 2MGKCA031200 4 PLATE
プ
レート FE
31 PM05AC1 4 GUIDE ガイド FE
32 PP02472 4 SPACER スペーサ FE
33 H54254 4 BOLT, HEX SOCKET ボルト 六角穴 M03X012(3カ シロ) FE
34 W1010A 4 WASHER, CONICAL ワッシャ 皿 M-3-L FE
35 PM92393 2 BKT, SENSOR BKT センサ FE
36 2MGTCA004901 1 GUIDE ガイド OT
37 PS03151 1 SHEET シート OT
38 H67813 2 BOLT, HEX SOCKET ボルト 六角穴 M03X008テイトウ(3カ シロ) FE
39 2MGTCA004901 1 GUIDE ガイド OT
40 PS03151 1 SHEET シート OT
41 H67813 2 BOLT, HEX SOCKET ボルト 六角穴 M03X008テイトウ(3カ シロ) FE
42 PM050M6 1 PLATE
プ
レート FE
43 2MGTCB004500 1 PLATE
プ
レート FE
44 2MGKCA024000 2 GUIDE, BELT ガイド ベルト AL
45 H5426L 8 BOLT, HEX SOCKET ボルト 六角穴 M04X010(3カ シロ) FE
46 W1011A 8 WASHER, CONICAL ワッシャ 皿 M-4-L FE
47 2MGKCA025601 2 CONVEYOR, BELT コンベア ベルト OT
47.1 2MGKCA026100 2 CONVEYOR, BELT コンベア ベルト OT Thin
p
anel o
p
tion
48 PM059T4 2 PLATE, GUIDE
プ
レート ガイド FE
49 2MGTCB005601 2 PLATE, CLAMPING
プ
レート クラン
プ
FE
50 K5255A 8 SCREW, HEX SOCKET BUTTON 小ネジ 六角穴ボタン M03X004 FE
323
PTS-NXT3c-01JE