NXTIIIC partlist.pdf - 第353页
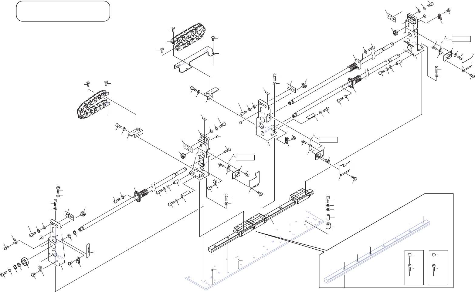
M3 IIIc-DOUBLE CONVEYOR 5/8 M3 IIIc-ダブルコンベア 5/8 2UGZCB000106 No. Dr g .No. & Code No. QTY Descri p tion Ratin g Materials Remarks 番号 図番 & コード番号 個数 品名 規 格材 質 備 考 1 H2096H 3 PIN, PARALLEL ピン 平行 φ 03X06 B種(h8) ステンレ…

:LGWKFKDQJHGULYHD[LV
ᖜ᭰㥑ື㍈
C
C
C
C
D
D
D
D
S2
S2
Ref.6/
S1
S1
Ref.6/
S3
S3
Ref.6/
A
A
B
B
㸨㹁㹂㸱㹔㸿ࠉ㸯㸰㸱㸲㸳㸴㸨
A
A
B
B
A
A
B
B
A
A
A
A
B
B
A
A
2
21
41
61
33
32
30
8
27
66
46
85
89
90
88
98
72
71
9
28
47
67
119
86
31
12
3
6
22
25
42
45
62
65
51
50
10
11
4
5
84
87
68
69
70
43
44
23
24
63
64
1
36
37
38
53
54
55
113
114
114
112
112
111
106
107
108
109
110
81
82
81
82
81
82
81
82
21.1
41.1
115
116
85
86
84
87
88
89
90
13
14
48
49
39
56
57
16
15
16
15
35
34
73
74
94
95
4.1
12.1
23.1
43.1
63.1
96
97
96
97
79
80
79
80
79
80
120
130
101
102
100
100
101
102
103
104
105
121
122
121
123
131
131
2UGZCB000106
0,,,Fࢲࣈࣝࢥࣥ࣋
0,,,F'28%/(&219(<25
352
PTS-NXT3c-01JE

M3 IIIc-DOUBLE CONVEYOR 5/8
M3 IIIc-ダブルコンベア 5/8
2UGZCB000106
No. Dr
g
.No. & Code No. QTY Descri
p
tion Ratin
g
Materials Remarks
番号 図番 & コード番号 個数 品名
規
格材質 備考
1 H2096H 3 PIN, PARALLEL ピン 平行
φ
03X06 B種(h8) ステンレス OT
2 2MGTCB006603 1 BKT BKT FE
3 2MGTCB002900 1 SHEET シート OT
4 H54269 2 BOLT, HEX SOCKET ボルト 六角穴 M05X010(3カシロ) FE
4.1 PM015W0 2 BOLT, HEX SOCKET ボルト 六角穴 FE Thin
p
anel o
p
tion
5 W1012A 2 WASHER, CONICAL ワッシャ 皿 M-5-L FE
6 PJ12922 2 WASHER ワッシャ OT
8 H54272 2 BOLT, HEX SOCKET ボルト 六角穴 M06X020(3カシロ) FE
9 W1106F 2 WASHER, LOCK ワッシャ ス
プ
リン
グ
6M
/
M(3カシロ) FE
10 H5426X 1 BOLT, HEX SOCKET ボルト 六角穴 M04X025(3カ シロ) FE
11 W1106D 1 WASHER, LOCK ワッシャ ス
プ
リン
グ
4M
/
M(3カ シロ) FE
12 2MGZCB000101 1 SEAL, BAR CODE シール バーコード OT unit serial number
12.1 2MGZCB000300 1 SEAL, BAR CODE シール バーコード OT Thin
p
anel o
p
tion, unit serial number
13 H1137D 2 BAND, TIE バンド 結束 AB-4N(100P) OT
14 K5172L 2 SCREW, C
/
R TRUSS 小ネジ 十穴トラス M04X006(3カ シロ) FE
15 S2025A 2 SHEET シート CTAM1 OT
16 K5172L 2 SCREW, C
/
R TRUSS 小ネジ 十穴トラス M04X006(3カ シロ) FE
21 2MGTCB006502 1 BKT BKT FE
21.1 PS03990 1 SHEET シート OT
22 2MGTCB002900 1 SHEET シート OT
23 H54269 2 BOLT, HEX SOCKET ボルト 六角穴 M05X010(3カシロ) FE
23.1 PM015W0 2 BOLT, HEX SOCKET ボルト 六角穴 FE Thin
p
anel o
p
tion
24 W1012A 2 WASHER, CONICAL ワッシャ 皿 M-5-L FE
25 PJ12922 2 WASHER ワッシャ OT
27 H5289R 4 BOLT, HEX SOCKET ボルト 六角穴 M04X014(3カ シロ) FE
28 W1106D 4 WASHER, LOCK ワッシャ ス
プ
リン
グ
4M
/
M(3カ シロ) FE
30 PB06KY0 1 BKT, SENSOR BKT センサ FE
31 K5357L 2 SCREW, HEX SOCKET COUNTERSUNK 小ネジ 六角穴皿 M03X006(3カ シロ) FE
32 2MGTCB007000 1 RETAINER, WIRING 押え 配線 FE
33 K5258C 2 SCREW, HEX SOCKET BUTTON 小ネジ 六角穴ボタン M03X004(3カ シロ) FE
34 S2025A 1 SHEET シート CTAM1 OT
35 K5172L 1 SCREW, C
/
R TRUSS 小ネジ 十穴トラス M04X006(3カ シロ) FE
36 PB90471 1 BKT BKT FE
37 H54251 2 BOLT, HEX SOCKET ボルト 六角穴 M03X006(3カ シロ) FE
38 W1106C 2 WASHER, LOCK ワッシャ ス
プ
リン
グ
3M
/
M(3カ シロ) FE
39 H67814 1 BOLT, HEX SOCKET ボルト 六角穴 M03X006テイトウ(3カ シロ) FE
41 2MGTCB006401 1 BKT BKT FE
41.1 PS03990 1 SHEET シート OT
42 2MGTCB002900 1 SHEET シート OT
43 H54269 2 BOLT, HEX SOCKET ボルト 六角穴 M05X010(3カシロ) FE
43.1 PM015W0 2 BOLT, HEX SOCKET ボルト 六角穴 FE Thin
p
anel o
p
tion
44 W1012A 2 WASHER, CONICAL ワッシャ 皿 M-5-L FE
45 PJ12922 2 WASHER ワッシャ OT
46 H5289R 4 BOLT, HEX SOCKET ボルト 六角穴 M04X014(3カ シロ) FE
47 W1106D 4 WASHER, LOCK ワッシャ ス
プ
リン
グ
4M
/
M(3カ シロ) FE
48 PB06KZ0 1 BKT, SENSOR BKT センサ FE
49 K5357L 2 SCREW, HEX SOCKET COUNTERSUNK 小ネジ 六角穴皿 M03X006(3カ シロ) FE
50 2MGTCB007100 1 RETAINER, WIRING 押え 配線 FE
51 K5258C 2 SCREW, HEX SOCKET BUTTON 小ネジ 六角穴ボタン M03X004(3カ シロ) FE
53 PB90481 1 BKT BKT FE
54 H54251 2 BOLT, HEX SOCKET ボルト 六角穴 M03X006(3カ シロ) FE
353
PTS-NXT3c-01JE

M3 IIIc-DOUBLE CONVEYOR 5/8
M3 IIIc-ダブルコンベア 5/8
2UGZCB000106
No. Dr
g
.No. & Code No. QTY Descri
p
tion Ratin
g
Materials Remarks
番号 図番 & コード番号 個数 品名
規
格材質 備考
55 W1106C 2 WASHER, LOCK ワッシャ ス
プ
リン
グ
3M
/
M(3カ シロ) FE
56 S2025A 1 SHEET シート CTAM1 OT
57 K5173G 1 SCREW, C
/
R TRUSS 小ネジ 十穴トラス M04X010(3カ シロ) FE
61 2MGTCB006302 1 BKT BKT FE
62 2MGTCB002900 1 SHEET シート OT
63 H54269 2 BOLT, HEX SOCKET ボルト 六角穴 M05X010(3カシロ) FE
63.1 PM015W0 2 BOLT, HEX SOCKET ボルト 六角穴 FE Thin
p
anel o
p
tion
64 W1012A 2 WASHER, CONICAL ワッシャ 皿 M-5-L FE
65 PJ12922 2 WASHER ワッシャ OT
66 H5289R 4 BOLT, HEX SOCKET ボルト 六角穴 M04X014(3カ シロ) FE
67 W1106D 4 WASHER, LOCK ワッシャ ス
プ
リン
グ
4M
/
M(3カ シロ) FE
68 PP03291 1 BKT, SENSOR BKT センサ FE
69 K5258E 2 SCREW, HEX SOCKET BUTTON 小ネジ 六角穴ボタン M03X006(3カ シロ) FE
70 W1106C 2 WASHER, LOCK ワッシャ ス
プ
リン
グ
3M
/
M(3カ シロ) FE
71 PP02501 1 RETAINER, WIRING 押え 配線 FE
72 K5258C 2 SCREW, HEX SOCKET BUTTON 小ネジ 六角穴ボタン M03X004(3カ シロ) FE
73 S2025A 1 SHEET シート CTAM1 OT
74 K5172L 1 SCREW, C
/
R TRUSS 小ネジ 十穴トラス M04X006(3カ シロ) FE
79 2MGTCA002500 3 SENSOR センサ OT SET
80 K64898 6 SCREW, C
/
R PAN 小ネジ 十穴鍋 M02X005 0バン3シュ(ステンレス) FE
81 2AGTCA000602 4 PULLEY
プ
ーリ OT
82 N10790 4 NUT, SQUARE ナット 四角 M04 P=0.7(3カシロ) FE
84 PM081R1 2 COLLAR カラー FE
85 H5426X 2 BOLT, HEX SOCKET ボルト 六角穴 M04X025(3カ シロ) FE
86 W1106D 2 WASHER, LOCK ワッシャ ス
プ
リン
グ
4M
/
M(3カ シロ) FE
87 W1108S 2 WASHER, FLAT ワッシャ 平 4M
/
MX0.8X9(1W-4)(3カシロ) FE
88 PP02521 2 RETAINER, WIRING 押え 配線 FE
89 H5426K 2 BOLT, HEX SOCKET ボルト 六角穴 M04X008(3カ シロ) FE
90 W1106D 2 WASHER, LOCK ワッシャ ス
プ
リン
グ
4M
/
M(3カ シロ) FE
94 H54269 3 BOLT, HEX SOCKET ボルト 六角穴 M05X010(3カシロ) FE
95 W1012A 3 WASHER, CONICAL ワッシャ 皿 M-5-L FE
96 S1031A 6 CIR-CLIP サークリッ
プ
STW 10 OT
97 W10049 6 WASHER ワッシャ LRB10-1.0 OT
98 H4202Z 3 BEARING ベアリン
グ
6900ZZ1CM J OT
100 2MGZCB001002 2 SCREW ネジ OT
101 H67812 4 BOLT, HEX SOCKET ボルト 六角穴 M04X010テイトウ(3カ シロ) FE
102 W1011A 4 WASHER, CONICAL ワッシャ 皿 M-4-L FE
103 2MGZCB001102 1 SCREW ネジ OT
104 H67812 2 BOLT, HEX SOCKET ボルト 六角穴 M04X010テイトウ(3カ シロ) FE
105 W1011A 2 WASHER, CONICAL ワッシャ 皿 M-4-L FE
106 2MGTCA006000 1 STOPPER ストッパ OT
107 PM082R0 1 COLLAR カラー FE
108 H5426T 1 BOLT, HEX SOCKET ボルト 六角穴 M04X020(3カ シロ) FE
109 W1106D 1 WASHER, LOCK ワッシャ ス
プ
リン
グ
4M
/
M(3カ シロ) FE
110 W1108S 1 WASHER, FLAT ワッシャ 平 4M
/
MX0.8X9(1W-4)(3カシロ) FE
111 K4131H 1 FLEXIBLE TRACK ケー
ブ
ルベア 07.10-018-0-11-060.10.12 OT
112 K5357L 4 SCREW, HEX SOCKET COUNTERSUNK 小ネジ 六角穴皿 M03X006(3カ シロ) FE
113 K4131H 1 FLEXIBLE TRACK ケー
ブ
ルベア 07.10-018-0-11-060.10.12 OT
114 K5357L 4 SCREW, HEX SOCKET COUNTERSUNK 小ネジ 六角穴皿 M03X006(3カ シロ) FE
115 2MGZCB000800 1 DUCT, WIRING ダクト 配線 FE
116 K5172L 2 SCREW, C
/
R TRUSS 小ネジ 十穴トラス M04X006(3カ シロ) FE
354
PTS-NXT3c-01JE