NXTIIIC partlist.pdf - 第405页
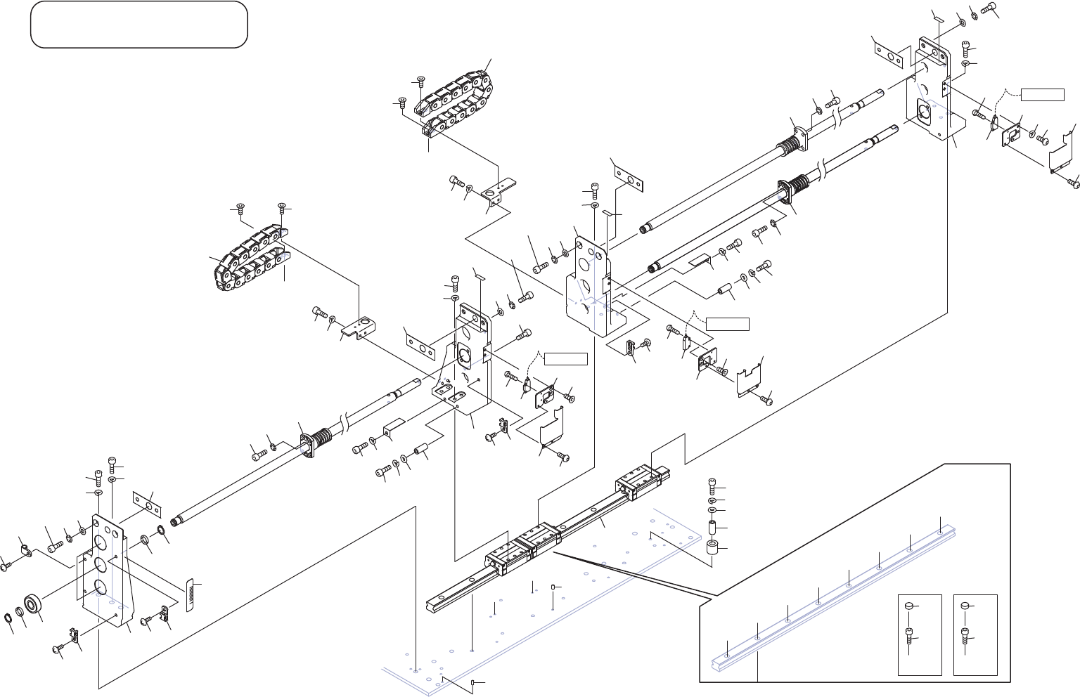
M6 IIIc-DOUBLE CONVEYOR 5/8 M6 IIIc-ダブルコンベア 5/8 2UGZCF000106 No. Dr g .No. & Code No. QTY Descri p tion Ratin g Materials Remarks 番号 図番 & コード番号 個数 品名 規 格材 質 備 考 1 H2096H 3 PIN, PARALLEL ピン 平行 φ 03X06 B種(h8) ステンレ…

:LGWKFKDQJHGULYHD[LV
ᖜ᭰㥑ື㍈
C
C
D
D
C
C
D
D
S1
S1
Ref.6/
S2
S2
Ref.6/
S3
S3
Ref.6/
A
A
B
B
㸨㹁㹂㸴㹔㸿ࠉ㸯㸰㸱㸲㸳㸴㸨
A
A
B
B
A
A
B
B
A
A
A
A
B
B
A
A
2
21
41
61
8
27
66
46
85
85
86
98
39
9
28
47
67
119
86
12
3
6
22
25
42
45
62
65
10
11
4
5
84
87
84
87
43
44
23
24
63
64
1
36
37
38
53
54
55
113
114
114
112
112
111
89
90
88
88
89
90
21.1
41.1
33
32
30
31
51
50
48
49
72
71
68
69
70
13
14
106
107
108
109
110
4.1
12.1
23.1
43.1
63.1
61.1
16
15
16
15
35
34
56
57
96
97
96
97
100
101
102
103
104
105
79
80
79
80
79
80
100
101
102
120
130
121
122
121
123
131
131
0,,,Fࢲࣈࣝࢥࣥ࣋
0,,,F'28%/(&219(<25
2UGZCF000106
404
PTS-NXT3c-01JE

M6 IIIc-DOUBLE CONVEYOR 5/8
M6 IIIc-ダブルコンベア 5/8
2UGZCF000106
No. Dr
g
.No. & Code No. QTY Descri
p
tion Ratin
g
Materials Remarks
番号 図番 & コード番号 個数 品名
規
格材質 備考
1 H2096H 3 PIN, PARALLEL ピン 平行
φ
03X06 B種(h8) ステンレス OT
2 2MGTCF004401 1 BKT BKT FE
3 2MGTCF001600 1 SHEET シート OT
4 H54269 2 BOLT, HEX SOCKET ボルト 六角穴 M05X010(3カシロ) FE
4.1 PM015W0 2 BOLT, HEX SOCKET ボルト 六角穴 FE Thin
p
anel o
p
tion
5 W1012A 2 WASHER, CONICAL ワッシャ 皿 M-5-L FE
6 PJ12922 2 WASHER ワッシャ OT
8 H54272 2 BOLT, HEX SOCKET ボルト 六角穴 M06X020(3カシロ) FE
9 W1106F 2 WASHER, LOCK ワッシャ ス
プ
リン
グ
6M
/
M(3カシロ) FE
10 H54275 1 BOLT, HEX SOCKET ボルト 六角穴 M06X030(3カ シロ) FE
11 W1106F 1 WASHER, LOCK ワッシャ ス
プ
リン
グ
6M
/
M(3カシロ) FE
12 2MGZCF000101 1 SEAL, BAR CODE シール バーコード OT unit serial number
12.1 2MGZCF000300 1 SEAL, BAR CODE シール バーコード OT Thin
p
anel o
p
tion, unit serial number
13 H1137D 2 BAND, TIE バンド 結束 AB-4N(100P) OT
14 K5172L 2 SCREW, C
/
R TRUSS 小ネジ 十穴トラス M04X006(3カ シロ) FE
15 S2025A 2 SHEET シート CTAM1 OT
16 K5172L 2 SCREW, C
/
R TRUSS 小ネジ 十穴トラス M04X006(3カ シロ) FE
21 2MGTCF004300 1 BKT BKT FE
21.1 PS03990 1 SHEET シート OT
22 2MGTCF001600 1 SHEET シート OT
23 H54269 2 BOLT, HEX SOCKET ボルト 六角穴 M05X010(3カシロ) FE
23.1 PM015W0 2 BOLT, HEX SOCKET ボルト 六角穴 FE Thin
p
anel o
p
tion
24 W1012A 2 WASHER, CONICAL ワッシャ 皿 M-5-L FE
25 PJ12922 2 WASHER ワッシャ OT
27 H5289R 4 BOLT, HEX SOCKET ボルト 六角穴 M04X014(3カ シロ) FE
28 W1106D 4 WASHER, LOCK ワッシャ ス
プ
リン
グ
4M
/
M(3カ シロ) FE
30 PB06KY0 1 BKT, SENSOR BKT センサ FE
31 K5357L 2 SCREW, HEX SOCKET COUNTERSUNK 小ネジ 六角穴皿 M03X006(3カ シロ) FE
32 2MGTCB007000 1 RETAINER, WIRING 押え 配線 FE
33 K5258C 2 SCREW, HEX SOCKET BUTTON 小ネジ 六角穴ボタン M03X004(3カ シロ) FE
34 S2025A 1 SHEET シート CTAM1 OT
35 K5172L 1 SCREW, C
/
R TRUSS 小ネジ 十穴トラス M04X006(3カ シロ) FE
36 PB90471 1 BKT BKT FE
37 H54251 2 BOLT, HEX SOCKET ボルト 六角穴 M03X006(3カ シロ) FE
38 W1106C 2 WASHER, LOCK ワッシャ ス
プ
リン
グ
3M
/
M(3カ シロ) FE
39 H67814 1 BOLT, HEX SOCKET ボルト 六角穴 M03X006テイトウ(3カ シロ) FE
41 2MGTCF004200 1 BKT BKT FE
41.1 PS03990 1 SHEET シート OT
42 2MGTCF001600 1 SHEET シート OT
43 H54269 2 BOLT, HEX SOCKET ボルト 六角穴 M05X010(3カシロ) FE
43.1 PM015W0 2 BOLT, HEX SOCKET ボルト 六角穴 FE Thin
p
anel o
p
tion
44 W1012A 2 WASHER, CONICAL ワッシャ 皿 M-5-L FE
45 PJ12922 2 WASHER ワッシャ OT
46 H5289R 4 BOLT, HEX SOCKET ボルト 六角穴 M04X014(3カ シロ) FE
47 W1106D 4 WASHER, LOCK ワッシャ ス
プ
リン
グ
4M
/
M(3カ シロ) FE
48 PB06KZ0 1 BKT, SENSOR BKT センサ FE
49 K5357L 2 SCREW, HEX SOCKET COUNTERSUNK 小ネジ 六角穴皿 M03X006(3カ シロ) FE
50 2MGTCB007100 1 RETAINER, WIRING 押え 配線 FE
51 K5258C 2 SCREW, HEX SOCKET BUTTON 小ネジ 六角穴ボタン M03X004(3カ シロ) FE
53 PB90481 1 BKT BKT FE
54 H54251 2 BOLT, HEX SOCKET ボルト 六角穴 M03X006(3カ シロ) FE
405
PTS-NXT3c-01JE

M6 IIIc-DOUBLE CONVEYOR 5/8
M6 IIIc-ダブルコンベア 5/8
2UGZCF000106
No. Dr
g
.No. & Code No. QTY Descri
p
tion Ratin
g
Materials Remarks
番号 図番 & コード番号 個数 品名
規
格材質 備考
55 W1106C 2 WASHER, LOCK ワッシャ ス
プ
リン
グ
3M
/
M(3カ シロ) FE
56 S2025A 1 SHEET シート CTAM1 OT
57 K5172L 1 SCREW, C
/
R TRUSS 小ネジ 十穴トラス M04X006(3カ シロ) FE
61 2MGTCF004100 1 BKT BKT FE
61.1 PS03990 1 SHEET シート OT
62 2MGTCF001600 1 SHEET シート OT
63 H54269 2 BOLT, HEX SOCKET ボルト 六角穴 M05X010(3カシロ) FE
63.1 PM015W0 2 BOLT, HEX SOCKET ボルト 六角穴 FE Thin
p
anel o
p
tion
64 W1012A 2 WASHER, CONICAL ワッシャ 皿 M-5-L FE
65 PJ12922 2 WASHER ワッシャ OT
66 H5289R 4 BOLT, HEX SOCKET ボルト 六角穴 M04X014(3カ シロ) FE
67 W1106D 4 WASHER, LOCK ワッシャ ス
プ
リン
グ
4M
/
M(3カ シロ) FE
68 PP03291 1 BKT, SENSOR BKT センサ FE
69 K5258E 2 SCREW, HEX SOCKET BUTTON 小ネジ 六角穴ボタン M03X006(3カ シロ) FE
70 W1106C 2 WASHER, LOCK ワッシャ ス
プ
リン
グ
3M
/
M(3カ シロ) FE
71 2MGTCB007000 1 RETAINER, WIRING 押え 配線 FE
72 K5258C 2 SCREW, HEX SOCKET BUTTON 小ネジ 六角穴ボタン M03X004(3カ シロ) FE
79 2MGTCA002500 3 SENSOR センサ OT SET
80 K64898 6 SCREW, C
/
R PAN 小ネジ 十穴鍋 M02X005 0バン3シュ(ステンレス) FE
84 PM081R1 2 COLLAR カラー FE
85 H5426X 2 BOLT, HEX SOCKET ボルト 六角穴 M04X025(3カ シロ) FE
86 W1106D 2 WASHER, LOCK ワッシャ ス
プ
リン
グ
4M
/
M(3カ シロ) FE
87 W1108S 2 WASHER, FLAT ワッシャ 平 4M
/
MX0.8X9(1W-4)(3カシロ) FE
88 PP02521 2 RETAINER, WIRING 押え 配線 FE
89 H5426K 2 BOLT, HEX SOCKET ボルト 六角穴 M04X008(3カ シロ) FE
90 W1106D 2 WASHER, LOCK ワッシャ ス
プ
リン
グ
4M
/
M(3カ シロ) FE
96 S1031A 6 CIR-CLIP サークリッ
プ
STW 10 OT
97 W10049 6 WASHER ワッシャ LRB10-1.0 OT
98 H4202Z 3 BEARING ベアリン
グ
6900ZZ1CM J OT
100 2MGZCB001002 2 SCREW ネジ OT
101 H67812 4 BOLT, HEX SOCKET ボルト 六角穴 M04X010テイトウ(3カ シロ) FE
102 W1011A 4 WASHER, CONICAL ワッシャ 皿 M-4-L FE
103 2MGZCB001102 1 SCREW ネジ OT
104 H67812 2 BOLT, HEX SOCKET ボルト 六角穴 M04X010テイトウ(3カ シロ) FE
105 W1011A 2 WASHER, CONICAL ワッシャ 皿 M-4-L FE
106 2MGTCA006000 1 STOPPER ストッパ OT
107 PM082R0 1 COLLAR カラー FE
108 H5426T 1 BOLT, HEX SOCKET ボルト 六角穴 M04X020(3カ シロ) FE
109 W1106D 1 WASHER, LOCK ワッシャ ス
プ
リン
グ
4M
/
M(3カ シロ) FE
110 W1108S 1 WASHER, FLAT ワッシャ 平 4M
/
MX0.8X9(1W-4)(3カシロ) FE
111 K4131H 1 FLEXIBLE TRACK ケー
ブ
ルベア 07.10-018-0-11-060.10.12 OT
112 K5357L 4 SCREW, HEX SOCKET COUNTERSUNK 小ネジ 六角穴皿 M03X006(3カ シロ) FE
113 K4131H 1 FLEXIBLE TRACK ケー
ブ
ルベア 07.10-018-0-11-060.10.12 OT
114 K5357L 4 SCREW, HEX SOCKET COUNTERSUNK 小ネジ 六角穴皿 M03X006(3カ シロ) FE
119 H2096H 5 PIN, PARALLEL ピン 平行
φ
03X06 B種(h8) ステンレス FE
120 XG01881 1 GUIDE, RAIL ガイド レール OT THK
121 K20089 8 CAP キャッ
プ
C4 OT THK
122 2MGTCA006501 5 BOLT, HEX SOCKET ボルト 六角穴 FE
123 H5426S 3 BOLT, HEX SOCKET ボルト 六角穴 M04X018(3カ シロ) FE
130 2MGZCB001200 1 GUIDE, RAIL ガイド レール OT HIWIN
131 . 8 CAP キャッ
プ
OT HIWIN, ACC-130
406
PTS-NXT3c-01JE