NXTIIIC partlist - 第460页
M3 M3 M3 M3 M3 M3 M6 M6 M6 M6 Pallet lock Pa llet lo ck release lever r el ease lever パレットロック パ レット ロ ック 解除レバー 解 除レ バ ー トオ。@ァi トオ。@ァi Pallet lock Pallet lock release lever rel ea se lever パレットロック パ レ ットロ ック 解除レバー 解 除レ バ …

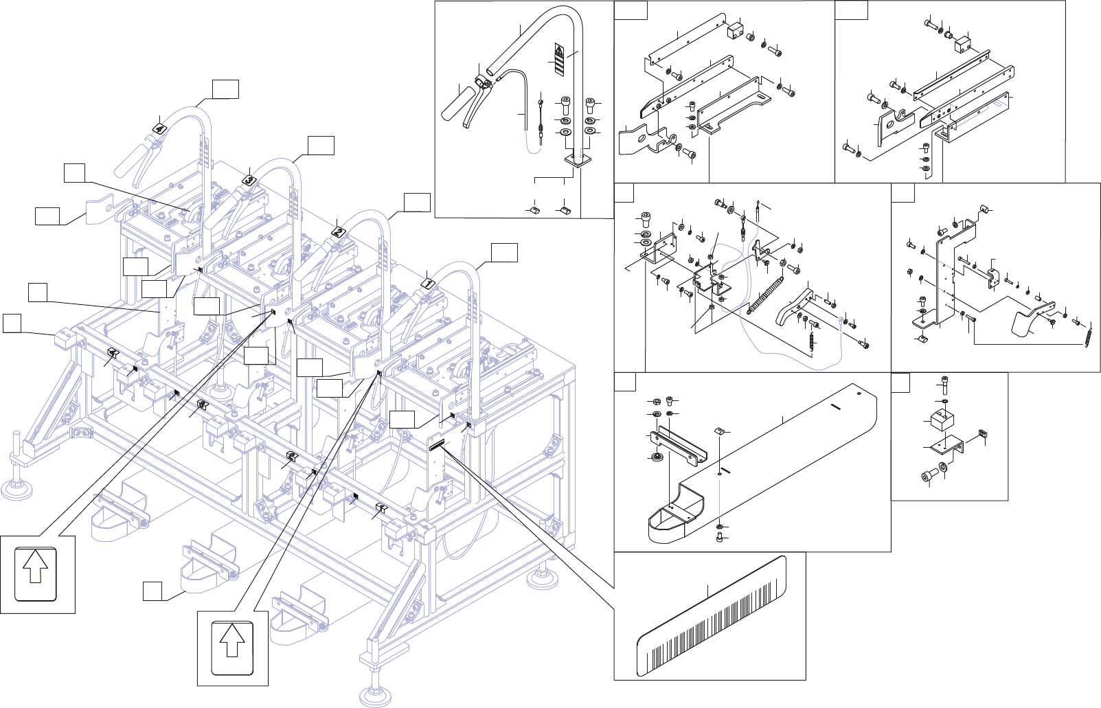
PSU IIc 2/5 (M3 STANDARD PALLET)
PSU IIc 2/5 (M3 標準パレット)
UK04707
No. Dr
g
.No. & Code No. QTY Descri
p
tion Ratin
g
Materials Remarks
番号 図番 & コード番号 個数 品名
規
格材質 備考
118 N1009C 6 NUT ナット HNTT8-8 FE
119 2MGLPT004201 3 BKT, ROLLER BKT ローラ FE
120 R60106 6 ROLLER ローラ UMBH6-28 FE
121 N1079Z 6 NUT, HEX ナット 六角 M06 3シュ(3カ シロ) FE
122 W1106F 6 WASHER, LOCK ワッシャ ス
プ
リン
グ
6M
/
M(3カシロ) FE
123 H54269 6 BOLT, HEX SOCKET ボルト 六角穴 M05X010(3カシロ) FE
124 W1106E 6 WASHER, LOCK ワッシャ ス
プ
リン
グ
5M
/
M(3カ シロ) FE
130 2MGLPT007701 4 BKT BKT FE
131 K1113Z 4 CAM FOLLOWER カムフォロア CF6-A FE
132 N1079D 4 NUT, HEX ナット 六角 M06 P=1.0 1シュ(3カシロ) FE
133 W1106F 4 WASHER, LOCK ワッシャ ス
プ
リン
グ
6M
/
M(3カシロ) FE
134 W1002H 4 WASHER ワッシャ WSSM12-6-3 FE
135 H5428G 8 BOLT, HEX SOCKET ボルト 六角穴 M08X016(3カ シロ) FE
136 W1106G 8 WASHER, LOCK ワッシャ ス
プ
リン
グ
8M
/
M(3カシロ) FE
137 N60563 8 NUT ナット HNTA8-8 FE
160 PX05951 8 SEAL シール PL
161 PX05961 4 SEAL シール PL
162 PX11710 1 SEAL, BAR CODE シール バーコード PL STANDARD PALLET, unit serial number
459
PTS-NXT3c-01JE

M3
M3
M3
M3
M3
M3
M6
M6
M6
M6
Pallet lock
Pa
llet
lo
ck
release lever
r
el
ease
lever
パレットロック
パ
レットロ
ック
解除レバー
解
除レ
バ
ー
トオ。@ァi
トオ。@ァi
Pallet lock
Pallet
lock
release lever
rel
ea
se
lever
パレットロック
パ
レ
ットロ
ック
解除レバー
解
除レ
バ
ー
トオ。@ァi
トオ。@ァi
B
B
B
M6
M6
M3
M3
M3
M3
M3
M3
M3
M3
M3
M3
Pallet lock
Pa
llet
lo
ck
release lever
release
leve
r
パレットロック
パ
レットロック
解除レバー
解
除
レ
バ
ー
トオ。@ァi
トオ。@ァi
*PD00J 123456*
*PD0
0J 1
2345
6*
M3
M3
M3
M3
M3
M3
M6
M6
M6
M6
M3
M3
M6
M6
M6
M6
B
M3
M3
M3
M3
M3
M3
Pallet lock
Pa
llet
lock
release lever
rel
ea
se
lever
パレットロック
パレ
ットロック
解除レバー
解
除レバ
ー
トオ。@ァi
トオ。@ァi
M3
M3
M6
M6
M6
M6
M3
M3
M3
M3
WARNING
W
ARNING
警 告
警 告
M6
M6
M3
M3
M3
M3
M3
M3
M3
M3
WARNING
W
ARNING
警 告
警 告
WARNING
W
AR
NING
警 告
警 告
WARNING
WARNING
警 告
警 告
M3
M3
M3
M3
M3
M3
M6
M6
M3
M3
M3
M3
M6
M6
M3
M3
A2
A2
C
C
A1
A1
A2
A2
A1
A1
H
H
E
E
L
L
㹋㸴
㹋㸱
E
E
F
F
L
L
㸨㹎㹂㸮㸮㹈ࠉ㸯㸰㸱㸲㸳㸴㸨
M3
M3
M3
M3
M3
M3
M3
M3
G1
G1
G1
G1
G2
G2
G1
G1
G2
G2
G2
G2
G1
G1
G2
G2
G2
G2
G1
G1
C
C
F
F
D
D
B
B
D
D
H
H
B
B
A1
A1
A2
A2
WARNING
警 告
Pallet lock
release lever
パレットロック
解除レバー
? ?
???????
??詈????
15
16
17
18
15
16
17
18
161
161
160
160
160
160
160
160
160
160
60
61
62
61
62
63
63
66
67
68
69
73
74
76
75
76
77
78
79
80
81
82
83
150
151
152
153
154
155
156
163
90
91
92
93
94
95
96
97.1
98
99
101
105
103
104
108
109
110
90
91
92
93
94
95
96
97
98
99
101
103
104
105
107
109
110
88
89
20
21
22
23
24
25
26
27
28
29
30
31
32
33
34
35
36
37
38
39
49.1
49.1
40
10.1
10.1
41
42
43
44
45
46
47
48
49
50
51
52
53
115
116
117
118
119
120
121
122
123
124
1
23
4
5
4
5
67
8
9
10
11
368,,F03$//(7:,7+%8&.(7
368,,F0ࣂࢣࢵࢺ
UK04907
460
PTS-NXT3c-01JE

PSU IIc 3/5 (M3 PALLET WITH BUCKET)
PSU IIc 3/5 (M3 バケット)
UK04907
No. Dr
g
.No. & Code No. QTY Descri
p
tion Ratin
g
Materials Remarks
番号 図番 & コード番号 個数 品名
規
格材質 備考
1 2MGLPT003502 4 HANDLE 取手 FE
2 H5428N 4 BOLT, HEX SOCKET ボルト 六角穴 M08X025(3カシロ) FE
3 H5428F 4 BOLT, HEX SOCKET ボルト 六角穴 M08X015(3カ シロ) FE
4 W1106G 8 WASHER, LOCK ワッシャ ス
プ
リン
グ
8M
/
M(3カシロ) FE
5 W1108K 8 WASHER, FLAT ワッシャ 平 M08(3カ シロ)8X17X1.6 FE
6 N1009C 2 NUT ナット HNTT8-8 FE
7 N60286 2 NUT ナット HNTC8-8 FE
8 R4012L 4 LEVER レバー LPレバークロ(ヒダリ) OT
9 N2117E 4 GRIP 握り C-57(02) PL
10 XW00523 4 WIRE ワイヤ OT
10.1 N1079C 8 NUT, HEX ナット 六角 M05 P=0.8 1シュ(3カシロ) FE
11 2MGKPT003500 4 SEAL シール PL
15 PX05912 2 SEAL シール PL
16 PX05922 2 SEAL シール PL
17 PX05932 2 SEAL シール PL
18 PX05942 2 SEAL シール PL
20 PJ10603 4 STOPPER ストッパ PL
21 N1079D 4 NUT, HEX ナット 六角 M06 P=1.0 1シュ(3カシロ) FE
22 H3170K 4 PLUNGER, BALL
プ
ランジャ ボール BPWL6 FE
23 H5120W 4 BOLT ボルト MSB6-10 FE
24 W1108F 4 WASHER, FLAT ワッシャ 平 4W-6(3カ シロ) FE
25 H5120Z 4 BOLT ボルト MSB8-15 FE
26 H5426M 4 BOLT, HEX SOCKET ボルト 六角穴 M04X012(3カ シロ) FE
27 N1079B 4 NUT, HEX ナット 六角 M04 P=0.7 1シュ(3カシロ) FE
28 W1040S 4 WASHER, FLAT ワッシャ 平 4M
/
MX0.8X9(1W-4)(3カクロ) FE
29 S3262S 4 SPRING, TENSION ス
プ
リン
グ
引
張
AWY8-40 FE
30 PB0ALG1 4 BKT, PIVOT BKT 支点 FE
31 H5428F 8 BOLT, HEX SOCKET ボルト 六角穴 M08X015(3カ シロ) FE
32 W1106G 8 WASHER, LOCK ワッシャ ス
プ
リン
グ
8M
/
M(3カシロ) FE
33 W1108G 8 WASHER, FLAT ワッシャ 平 4W-8(3カ シロ) FE
34 H5426K 4 BOLT, HEX SOCKET ボルト 六角穴 M04X008(3カ シロ) FE
35 W1011A 4 WASHER, CONICAL ワッシャ 皿 M-4-L FE
36 H5426L 4 BOLT, HEX SOCKET ボルト 六角穴 M04X010(3カ シロ) FE
37 W1011A 4 WASHER, CONICAL ワッシャ 皿 M-4-L FE
38 W1043C 4 WASHER, FLAT ワッシャ 平 4W- 4(3カシロ) FE
39 PB0ALF2 4 BKT BKT FE
40 H5426L 8 BOLT, HEX SOCKET ボルト 六角穴 M04X010(3カ シロ) FE
41 W1106D 8 WASHER, LOCK ワッシャ ス
プ
リン
グ
4M
/
M(3カ シロ) FE
42 2MGLPT007300 4 LEVER, CLAMP レバー クラン
プ
FE
43 PM93493 4 BOLT ボルト FE
44 N1079B 4 NUT, HEX ナット 六角 M04 P=0.7 1シュ(3カシロ) FE
45 W1106D 4 WASHER, LOCK ワッシャ ス
プ
リン
グ
4M
/
M(3カ シロ) FE
46 S3250G 4 SPRING, TENSION ス
プ
リン
グ
引
張
AWS6-60 FE
47 H54253 4 BOLT, HEX SOCKET ボルト 六角穴 M03X010(3カ シロ) FE
48 N10793 4 NUT, HEX ナット 六角 M03 P=0.5(3カシロ) FE
49 2MGKPT004900 4 WIRE ワイヤ OT
49.1 N1079C 8 NUT, HEX ナット 六角 M05 P=0.8 1シュ(3カシロ) FE
50 H5120W 4 BOLT ボルト MSB6-10 FE
51 W1108F 4 WASHER, FLAT ワッシャ 平 4W-6(3カ シロ) FE
52 N1079B 4 NUT, HEX ナット 六角 M04 P=0.7 1シュ(3カシロ) FE
53 W1106D 4 WASHER, LOCK ワッシャ ス
プ
リン
グ
4M
/
M(3カ シロ) FE
461
PTS-NXT3c-01JE