KE-750_KE-760-Rev07PDF - 第69页
- - REF.NO NOT E PART N O D E S C R I P T I O N Qty 1 E2600-725-0B0 F EED E R B A NK UNIT F ASM. 1 2 #01 E2600-725-CB0 F EEDER BANK UNIT F A S M.(ZC) 1 3 E2600-725-0A0 F EED E R B A NK SUB ASM. (1) 4 #01 E2600-725-AA 0…

- -
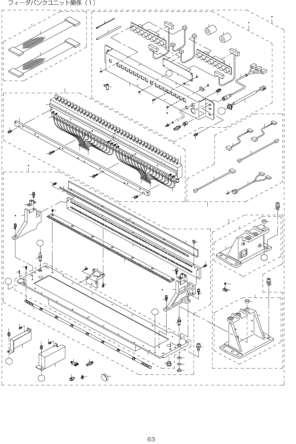
32.FEEDER BANK UNIT COMPONENTS (1)
3 9
3 8
3 7
4 2
4 0
4 1
3 6
4 2
A
3 5
3 4
3 3
8 0
5 4
6 5 6 6
7 8
6 0
6 8
6 7
7 9
5 6
5 5
7 5
6 1
7 8
5 8
5 9
7 4
9 9
5 2 5 3
6 9
7 1
5 7
6 2
B
B
6 3
7 0
6 4
7 2
7 3
7
2 9
3 1
1 2
3 2
1 3
3 1
1 4
1 5
1 6
1 7
1 8
1 9
2 0
2 2
2 3
2 1
6
2 9
5
3 4
9 1
9 3
9 2
8 3
1 2
8 2
2 5
8 4
8 5
2 4
3 0
8 1
2 7
8 9
1 0 1 1
2 8
8 6
8 7
2 9
2 6
2 8
2 7
9 8
A
7 6
7 7
8 9
9 0
1 0 1
8 8
1 0 0
9 4
9 7
D
C
9 6
9 6
9 5
9 5
D
C
4 4
4 6
4 8
4 3
4 5
5 0
4 9
5 1
4 8
4 7
4 7

- -
REF.NO NOTE PART NO D E S C R I P T I O N Qty
1 E2600-725-0B0 F EEDER BANK UNIT F ASM. 1
2 #01 E2600-725-CB0 FEEDER BANK UNIT F ASM.(ZC) 1
3 E2600-725-0A0 F EEDER BANK SUB ASM. (1)
4 #01 E2600-725-AA0 FEEDER BANK SUB ASM.(ZC) (1)
5 E2601-721-0B0 F EEDER BANK COMPL. (1)
6 E2601-721-000 FEEDER BANK (1)
7 E2602-721-000 BANK LOCATE BUSH A (2)
8 E2606-725-000 PLATE STAND L (1)
9
#01
E1171-725-000 PLATE STAND L (CE) (1)
10 E2605-725-000 PLATE STAND R (1)
11
#01
E1172-725-000 PLATE STAND R(CE) (1)
12 SL-6031242-TN SCR EW (9)
13 PS-0400142-KH SPRING PIN 4X14 (3)
14 E2607-721-000 ZIXING PLATE B (1)
15 SM-1040852-TP DISH SCREW (7)
16 E2608-721-000 PLATE SUPPORT (4)
17 SL-6041692-TN SCR EW (8)
18 SL-6031292-TN BOLT (12)
19 E2609-721-000 BANK LOCATE PIN A (1)
20 E2610-721-000 BANK LOCATE PIN B (1)
21 NM-6080003-SC NUT M8 (2)
22 WS-0820002-KN SPRING WASHER M8 (2)
23 WP-0841601-SC WASHER 8.4X17.4X1.6 (2)
24 E2611-721-000 POSITION LABEL A (1)
25 E2604-725-000 NUMBER PLATE (1)
26 SM-4030501-SN SCREW M3 L=5 (5)
27 E2601-725-0A0 MARK ASM. (2)
28 SL-6051292-TN BOLT (4)
29 SL-6052092-TN SCR EW (4)
30 E2515-729-000 FIXING PLATE (30) (1)
31 SL-6041292-TN SCR EW (5)
32 E2606-721-000 LOCK SHAFT (1)
33 E2621-721-0A0 BANK SUPPORT SUB ASM. (1)
34 E2621-721-0B0 BANK SUPPORT L LINK (1)
35 E2621-721-000 BANK SUPPORT L (1)
36 E2623-721-000 BANK LOCATE BUSH B (1)
37 E2622-721-0A0 BANK SUPPORT R LINK (1)
38 E2622-721-000 BANK SUPPORT R (1)
39 E2623-721-000 BANK LOCATE BUSH B (1)
40 HX-0029400-00 FIXED BASE (4)
41 SM-6030602-TN HEX SCREW M3 X 6 (4)
42 SL-6082592-TN BOLT (8)
43 400-00574 DRIVE CYLINDER ASSY (1)
44 400-00575 DRIVE CYLINDER L (1)
45 400-00576 DRIVE CYLINDER R (1)
46 400-08458 DRIVER SUPPORT (1)
47 SL-6052092-TN SCR EW (6)
48 SL-6051292-TN BOLT (2)
49 PV-1399050-00 3-PORT SOLENOID VALVE (80)
50 E2641-725-0A0 CONNECTOR BRACKET ASM. (1)
51 400-23687 DRIVE CYLINDER CABLE (2)
52
#01
E2641-725-AA0 C ON NECTOR BRACKET ASM. (CE) (1)
53 400-23687 DRIVE CYLINDER CABLE (4)
54 SM-4031201-SC SCREW M3 X 12 (4)
55 B4011-210-000 SPACER (4)
56 NM-6030003-SC NUT M3 (4)
57 E9378-721-0A0 FEEDER BANK CABLE 5 ASM (1)
58 E9379-721-0A0 FEEDER BANK CABLE 6 ASM. (1)
59 E9384-721-0A0 FEEDER BANK DC CABLE 5 ASM. (1)
60 E9385-721-0A0 FEEDER BANK DC CABLE 6 ASM. (1)
61 E9388-725-0A0 FEEDER BANK TRUNK CABLE 3 ASM. (1)
62 E9395-721-0A0 IC FULL TRUNK CABLE 3 ASM. (1)
63 SM-4020801-SC SCREW M2 X 8 (4)
64 HX-0029400-00 FIXED BASE (1)
65 SM-6030602-TN HEX SCREW M3 X 6 (1)
66
#01
SM-4030601-SC SCREW M3 X 6 (1)
67 PJ-3010651-06 KNIFE UNION (2)
68 E2904-700-000 SOCKET (2)
69 PJ-2300061-00 UNION 06 (1)
70 PJ-3050600-04 TEE (1)
71 PJ-0320090-05 NIPPLE (1)
72 BT-0600400-EC TUBE HOSE, BLUE (1.3)
73 EA-9500B01-00 CABL E BAND (4)
74 E2641-721-000 CONNECTOR BRACKET (1)
75 NM-6030003-SC NUT M3 (1)
76
#01
HN-0017900-0B NOISE FILTER (2)
77
#01
HN-0017900-0D FERR ITE CLAMP (1)
78 E8615-715-0A0 FEEDER BANK CIRCUIT BOARD ASM. (2)
79 E8618-721-0A0 FEEDER I/F BOARD ASM. (1)
80 SM-4860601-SC SCREW M2.6 L=6 (16)
81 E2692-725-0A0 HARNESS F ASM. (1)
82 E9380-725-0A0 FEEDER BANK DC CABLE 1 ASM. (1)
83 E9381-725-0A0 FEEDER BANK DC CABLE 2 ASM. (1)
84 E9386-725-0A0 TRUNK CABLE 1 ASM. (1)
85 SL-4030881-SC SCR EW M3X8 (2)
86 E9374-725-0A0 FEEDER BANK CABLE ASM. (1)
87 E9375-725-0A0 FEEDER BANK CABLE 2 ASM. (1)
88 E2904-700-000 SOCKET (1)
89 HX-0041100-00 CABLE PART S (3)
90 HX-0032600-0M DOME PLUG (1)
91 E2691-725-0A0 DRIV CYLINDER HARN ESS F ASM. (1)
92 E9370-725-0A0 FEEDER 1 CABLE ASM. (1)
93 E9371-725-0A0 FEEDER 2 CABLE ASM. (1)
94
#01
E1173-725-000 PLATE STAND COVER L (CE) (1)
95
#01
SL-6040892-TN BOLT (2)
96
#01
SL-6051092-TN BOLT (2)
97
#01
E1174-725-000 PLATE STAND COVER R (CE) (1)
98 SL-6082592-TN BOLT (4)
99 SM-0050801-SC SCREW (4)
100 PJ-3080600-03 Y UNION (2)
101 PJ-3010651-06 KNIFE UNION (1)

- -
33.FEEDER BANK UNIT COMPONENTS (2)
3 5
8 3
8 4
8 5
8 2
8 7
8 8
3 6
4 3
4 4
5 5 5 6
6 5
5 0
5 8
5 7
6 9
4 6
4 5
6 6
5 1
6 5
4 8
4 9
6 4
9 9
4 1 4 2
5 9
6 1
4 7
5 2
A
A
5 3
6 0
5 4
6 3
6 2
7
3 3
1 0
1 2
1 1
1 3
1 0
1 4
1 5
1 6
1 7
1 8
1 9
2 0
2 2
2 3
2 1
8
3 3
6
4 5
3 4
8 0
8 1
9 1
7 9
9 0
9 2
9 4
9 3
7 4
1 3
3 8
3 8
7 3
2 5
7 5 7 8
3 7
7 6
2 4
9
2 7
2 9 3 0
3 1 3 2
2 8
7 7
7 2
3 3
2 6
2 8
2 7
7 0 7 1
8 9
3 9
3 9
6 8
6 7
4 0
9 5
9 8
D
C
9 7
9 7
9 6
9 6
C
D
8 6