YS24_mpl_je - 第71页
KKE-1204 Rev . :It is the parts which a change was in in the past. Please be careful at the time of the parts ordering. Rev.: 過去に変更が入った部品を示します。部品発注時は注意してください。 No. Part No. Part Name Q’ty Remarks Rev . Rank Level No. Part…

KKE-1204
1
1
31
31
33
3
9
11
11
17
22
34
32
32
17
29
29
12
20
29
29
29
13
18
30
37
14
14
23
23
35
11
10
10
10
10
15
27
27
27
27
27
23
26
23
27
25
25
15
10
15
27
19
23
26
27
23
27
27
16
15
15
16
15
10
10
10
28
28
28
28
28
28
28
28
4
7
8
21
21
8
7
7
21
6
33
2
24
35
36
12
12
13
23
35
5
3
29
29
27
27
27
3
11
12
20
29
29
23
35
7
6
26
27
21
8
4
30
18
37
30
37
38
9
5
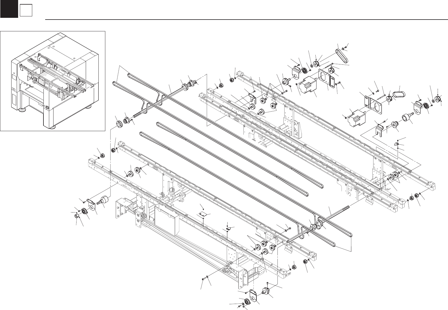
Board Transport
Conveyor Unit (Dual Lane)

KKE-1204
Rev. :It is the parts which a change was in in the past. Please be careful at the time of the parts ordering.
Rev.: 過去に変更が入った部品を示します。部品発注時は注意してください。
No. Part No. Part Name Q’ty Remarks Rev. Rank Level No. Part No. Part Name Q’ty Remarks Rev. Rank Level
1
KKV-M9111-00 BRKT., CONV.MOTOR
2 /
Í
38
KHY-M9135-10 PLATE,EDGE 3 4
/
2
KKT-M9114-00 BRKT.1, SPLINE
1
/
Í
39
3
KKV-M9115-00 BRKT.1, SPLINE
3 /
Í
40
4
KKT-M9117-00 SPLINE 1
2 /
Í
41
5
KKV-M9119-00 SHAFT
1 /
Í
42
6
KKT-M9127-50 BELT 1, CONVEYOR
4
EXT. (L=3255mm)
A
43
KKT-M9127-00 BELT 1, CONVEYOR
4
S.T.D (L=2677mm)
A
44
7
KG2-M9108-11 COLLAR CONVEYOR
4
/
Í
45
8
KGT-M9135-00 PULLEY 1, SPLINE
2
/
Í
46
9
KGT-M915U-00 PULLEY DRIVE, F
1 /
Í
47
10
KGY-M9140-A0 PULLEY, CONV. ASSY
8 /
48
11
KH2-M9105-11 PULLEY, MOTOR:P30-3GT
4 /
Í
49
12
KH2-M9121-00 BEARING
4 /
Í
50
13
KHY-M9157-00 SHAFT, MOTOR
2 /
Í
51
14
KKE-M9118-00 BRACKET, COLLAR
2 /
Í
52
15
KKE-M9119-A0 PULLEY CONV. ASSY.
8 /
53
16
KKE-M9120-A0 PULLEY CONV. ASSY
4 /
54
17
KKE-M9128-00 BELT 222-3GT-9
2
/
Í
55
18
KKE-M9135-00 PLATE, EDGE 2
36
/
56
19
KKE-M917J-00 PULLEY 1, MOTOR
1
/
Í
57
20
90990-41J006
COLLAR
2 58
21
91312-03010 BOLT HEX. SOCKET HEAD
16 59
22
91312-04008 BOLT HEX. SOCKET HEAD
1 60
23
91312-04010 BOLT HEX. SOCKET HEAD
26 61
24
91312-04012 BOLT HEX. SOCKET HEAD
1 62
25
91312-05012 BOLT HEX. SOCKET HEAD
12 63
26
91312-05020 BOLT HEX. SOCKET HEAD
4 64
27
92902-05200 WASHER, PLAIN
27 65
28
92902-05600 WASHER, PLAIN
8 66
29
92A08-04303 SCREW, SET
22 67
30
95302-03700 NUT, HEXAGON
80 68
31
KGK-M9170-00 DC MOTOR ASSY.
2 /
Í
69
32
91312-04055 BOLT HEX. SOCKET HEAD
8 70
33
KGT-M9193-00 NUT PLATE
8 /
Í
71
34
90990-28J070 WASHER, PLAIN
1 72
35
91312-04005 BOLT HEX. SOCKET HEAD
8 73
36
90990-28J076 WASHER
1 74
37
98702-03005 SCREW FLAT HEAD
80 75
9
5
Board Transport
Conveyor Unit (Dual Lane)

KKE-1010
PCB FLOW
PCB FLOW
5
789
13
15
15
15
14
15
14
14
15
15
13
13
13
10
11
12
15
14
14
14
15
15
15
14
14
15
15
15
15
6
1
3
2
4
11
1
2
4
13
15
15
15
15
14
15
14
15
15
15
13
15
14
14
14
15
15
14
14
15
15
14
12
15
15
13
13
6
10
5
9
15
7
8
3
12
15
15
9
6
Sensor-1 (S.T.D)
Conveyor Unit (Dual Lane)