KE-2070_80_80R_Operation_Manual2_Rev10_C - 第34页
操作手册Ⅱ 1-22 基板下面 基板下面 サポートピン 設置不可範囲 基板搬送方向 31.5mm 17.5mm 91mm 4mm 262.5mm(右左流れは 220.5mm) 22mm 20mm 61mm 7mm 13mm 17.5mm 21mm 22mm ストッパ設置位置 0 ~ 185mm(L-wide 基板仕様、手前基準) 0 ~ 145mm(L-wide 基板仕様、奥基準) 0 ~ 210mm(E 基板仕様) 搬送レール固定側 …

操作手册Ⅱ
1-21
(2) 支撑销不可设定的范围(基板背面图)
【基板下面不可设置范围(M,L 基板规格,基板下面图)】
基板下面
基板下面
サポートピン
設置不可範囲
基板搬送方向
34mm
17.5mm
91mm
4mm
265mm(右左流れは223mm)
22mm
20mm
63.5mm
7mm
15.5mm
17.5mm
21mm
22mm
ストッパ設置位置
0 ~ 210mm
搬送レール固定側
11mm
14mm
【基板下面不可设置范围(E 规格基板、基板下面图)】
基板传送方向如为反向(向左)时,支撑销的设置附加范围与图左右对称。
注意
基板下面
基板传送方向 支撑销不可设置范围
164mm
(
M
基板规格
)
244mm(L 基板规格)
挡块设置位置
4mm
7mm
■
20mm
22mm
63.5mm
25mm
17.5mm
17.5mm
34mm
91mm
39.5mm
21mm
22mm
0~90mm (M 基板规格、前面基准)
0~50mm (M 基板规格、后面基准)
0~185mm(L 基板规格、前面基准)
0~145mm(L 基板规格、后面基准)
传送轨道固定侧
■
■
■
■
■
注意
基板下面
基板传送方向
支撑销不可设置范围
挡块设置位置
传送轨道固定侧
右左流向为

操作手册Ⅱ
1-22
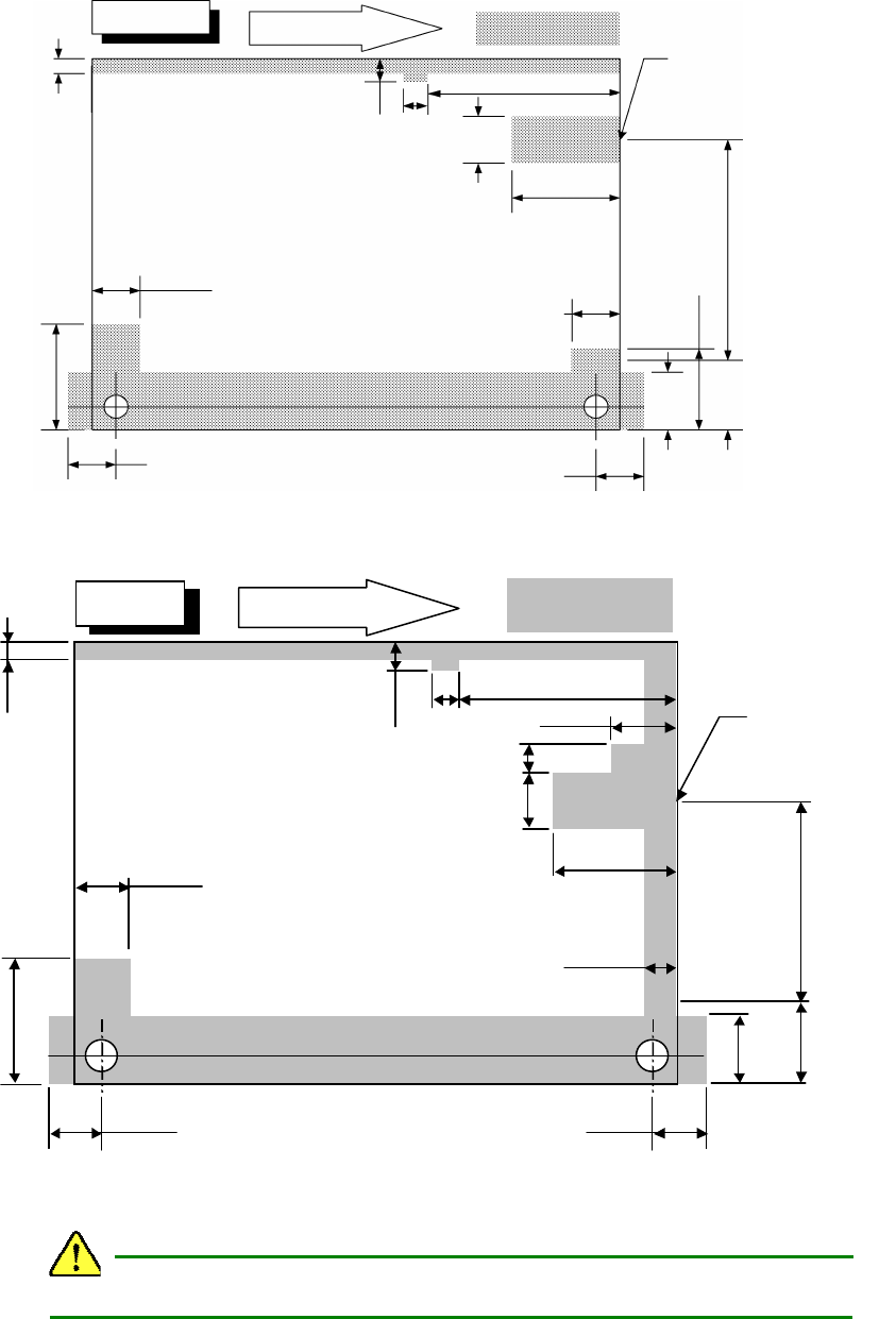
基板下面
基板下面
サポートピン
設置不可範囲
基板搬送方向
31.5mm
17.5mm
91mm
4mm
262.5mm(右左流れは 220.5mm)
22mm
20mm
61mm
7mm
13mm
17.5mm
21mm
22mm
ストッパ設置位置
0 ~ 185mm(L-wide 基板仕様、手前基準)
0 ~ 145mm(L-wide 基板仕様、奥基準)
0 ~ 210mm(E 基板仕様)
搬送レール固定側
【基板下面不可设置范围(E、L-wide 基板规格、基板下面图)】
基板传送方向如为反向(向左)时,支撑销的设置附加范围与图左右对称。
(3) 贴片元件高度即基板背面传送高度范围
【贴片元件高度及基板背面传送高度范围】
表 1-3 元件高度规格
机型 元件高度规格 h
1
元件高度(mm)
SC 规格 6 KE-2070
KE-2070C
NC 规格 12
NC 规格 12
HC 规格 20
KE-2080
KE-2080R
EC 规格 25
3
基板背面
可贴装范围
最大
40mm
基板
元件
h1:尺寸请参见下表(1-3)
3
注意
基板下面
基板传送方向
支撑销不可设置范围
传送轨道固定侧
挡块设置位置
基板规格、前面基准)
基板规格、后面基准)
基板规格)
(
右左流向为

操作手册Ⅱ
1-23
3. 识别用标记
请按下述条件制作识别用标记。
但形状推荐使用均匀带色的圆形。
此外,标记周围的空白区域的制作方法请参照下面的「4.间隙」。
A
C
C
A
B
A
B
B
三角形
A
B
A
B
C
C
B
B
B
正方形
中抜き正方形
菱形
中抜き菱形
円形
中抜き円形
B
A
C
B
A
C
B
B
中抜き三角形 逆三角形 中抜き逆三角形
市松模様(1)
市松模様(2)
十字
【识别标记形状】
1. 识别时,标记为上述方向的角度。
但非矩阵基板指定为“使用每一电路的标记”时,基准电路的标记为上述方向的角度,
以90°为单位配置的电路均为可识别标记。
2. 一张基板内的基准领域标记,建议使用同一形状和同一大小的标记。
3. 可识别铜箔及镀锡。
4. 最大登录数
基板标记 1组(2个标记或3个标记)
IC标记 50组(2对标记~3对标记)
5. 可注册项目
标记编号、重心检测窗、检测时正色/反色的区別
标记形状、外形尺寸、投射有效值、统一性
6. 如无识别用标记,通过注册用户指定的模板,可进行标记识别。
7. 使用长尺寸基板对应选购项基板2次传送时,每一次传送时必须有可检测的2处或3处的基板基
准标记(合计4处或6处)。
4. 间隙
请确保各识别标记周围没有导体图案、
低温焊接保护层、标记等其他元件。
此外,该间隙区域的尺寸,请设定为识别标记外围
0.5mm以上的大正方形。
【识别标记的间隙区域】
A和C尺寸 :
0.5~3.0mm±10%以上
B尺寸:
0.2mm 以上
0.5 mm 以上
0.5mm 以上
间隙区域
识别标记
注意 :
0.5 mm 以上
正方形
中空正方形
菱形 中空菱形
三角形 三角形 中空三角形 倒三角形 中空倒三角形
圆形 中空圆形 格子状(1) 格子状(2) 十字